Stay Family Park

Eladó családi ház
Gyál

+ 8 kép 1/11
168 000 000 Ft168 M Ft 1 158 621 Ft/m2
4 szoba
145 m2
építés éve:2026

Részletes adatok

Telekméret: 638 m2
Fűtés: Egyéb
Parkolás: Garázs
Energetikai besorolás: Nem adta meg a hirdető

Az OTP Bank lakáshitel ajánlataFizetett hirdetés

+36 70 743
Ivanics Anita
referens

Érdekel az OTP Bank kedvezményes lakáshitel ajánlata? *

* A kérdésre „Igen” válasz bejelölése esetén, az „Üzenet küldése” gombra kattintva kijelentem, hogy az OTP Bank Nyrt. Adatkezelési tájékoztatójának tartalmát megismertem és tudomásul vettem.

Eladó családi ház leírása

ÚJÉPÍTÉSŰ PRÉMIUM ÖNÁLLÓ CSALÁDI HÁZ GYÁLON – EGRESSY UTCA
Modern megjelenés | Magas műszaki színvonal | Energiatakarékos otthon | Csendes környezet

Eladó Gyál egyik gyorsan fejlődő utcájában, az Egressy utcában egy egyszintes, új építésű, prémium önálló Családiház . 3 Szoba + amerikai konyhás nappali . A környék új házakkal beépülő, biztonságos, családbarát terület, Budapest 10 perc alatt elérhető. Referencia munka a szomszéd ház .

Telekválasztási lehetőség:
•Nagy telekkel: 168.000.000 Ft
•Kisebb telekkel (-145 m²): 158.000.000 Ft

Budapest és Pest megyei építési telek beszámítása lehetséges!
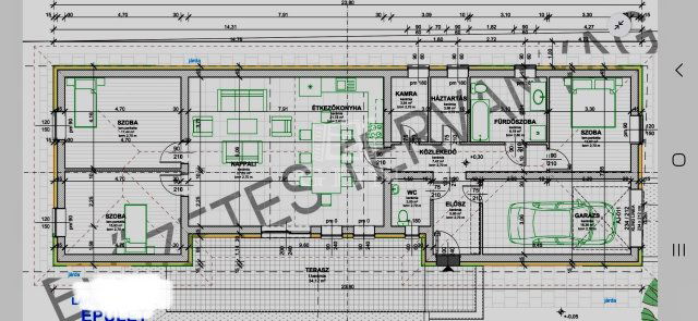
A ház főbb adatai:
•Telek: 639m² (nagy telek opció)
•Nettó Lakóterület: 145,72 m²
•Beépítés: oldalhatáros
•Átadás: 2026. június – augusztus
•Utca: 2027-re új aszfaltburkolat, modern kis lakóövezet
Magas műszaki tartalom:
•Porotherm 30 N+F tégla falazat
•15 cm homlokzati hőszigetelés
•Terrán Carbon antracit tetőcserép
•Hőszivattyús fűtési rendszer (energiatakarékos)
•5–6 légkamrás műanyag nyílászárók
•Antracit ereszcsatorna és modern szürke homlokzati díszcsíkok
•Modern külső hideg LED világítás előkészítve
•Elektromos garázskapu benne az árban
•Elektromos kapubeálló előkészítve
•Riasztó és kamerarendszer előkészítve
•1 db klíma az árban

Belső kialakítás – választható burkolatokkal!

A vevő saját ízlésére szabhatja otthonát, mert a burkolatok és szaniterek szabadon választhatók:

Burkolatok
Választható értékhatár (benne az árban)
Hidegburkolat (járólap)
8.000 Ft/m²-ig
Oldalfali csempe
6.000 Ft/m²-ig
Melegburkolat
5.000 Ft/m²-ig
Szaniterek
15.000–20.000 Ft/m²-ig
Beltéri ajtók
70.000 Ft
Eddig az értékhatárig a kivitelező állja a költséget, a vevő saját maga választhatja ki a burkolatokat!
Igény esetén magasabb kategóriájú burkolatok is rendelhetők felár ellenében!
Elektromos redőny kérhető megbeszélés alapján.

Elérhető vagyok a nap bármely szakaszában akár hétvégén is ! ...TOVÁBBI, TÖBBEZRES INGATLAN KÍNÁLAT: www.gdn-ingatlan.hu - GDN azonosító: 390055

Hirdetés feltöltve: 2025. 11. 26.

4 szobás családi házak ára Gyálon

Ebből az összehasonlításból megtudhatod, hogyan viszonyul a lakás ára a környékbeli családi házak átlagos árához. Ez nem azt jelenti, hogy ennyivel olcsóbb vagy drágább, mint amennyit a lakás ér, hanem hogy ennyivel tér el a környékbeli átlagtól.

Ennek a m² ára
Gyál m² ár
1159 e Ft
1003 e Ft -15%
Ennek az ára
Gyál átlagár
168 M Ft m Ft
103.6 m Ft -62%

Az ingatlan elhelyezkedése

Cím: Gyál

Eladó családi házak a környékről

Eladó családi ház
Eladó családi ház

Tápiószentmárton

48 M Ft
5 szoba
180 m2
Eladó családi ház
Eladó családi ház

Gyál

475 M Ft
10 szoba
620 m2
Eladó családi ház
Eladó családi ház

Dunavarsány

46.9 M Ft
3 + 2 szoba
130 m2
Eladó családi ház
Eladó családi ház

Kerepes

199 M Ft
6 szoba
360 m2
Eladó családi ház
Eladó családi ház

Gyál

180 M Ft
7 szoba
350 m2
Eladó családi ház
Eladó családi ház

Gyál

114 M Ft
7 szoba
160 m2
Eladó családi ház
Eladó családi ház

Gyál, Árpád utca

89 M Ft
3 szoba
95 m2
Eladó családi ház
Eladó családi ház

Gyál

69.9 M Ft
4 szoba
117 m2
Eladó családi ház
Eladó családi ház

Tápiószentmárton

7.9 M Ft
2 + 1 szoba
86 m2
Eladó családi ház
Eladó családi ház

Gyál

89 M Ft
3 szoba
95 m2
Eladó családi ház
Eladó családi ház

Gyál

89 M Ft
3 szoba
95 m2
Eladó családi ház
Eladó családi ház

Budakeszi, Budakeszi kertváros

229 M Ft
10 szoba
450 m2
Eladó családi ház
Eladó családi ház

Budakeszi

130 M Ft
5 szoba
30 m2
Eladó családi ház
Eladó családi ház

Gyál

475 M Ft
10 szoba
620 m2
Eladó családi ház
Eladó családi ház

Remeteszőlős

399.9 M Ft
5 + 2 szoba
260 m2
Eladó családi ház
Eladó családi ház

Sződ, Rátóti utca

149.99 M Ft
11 szoba
270 m2
Eladó családi ház
Eladó családi ház

Dunakeszi

250 M Ft
4 szoba
180 m2
Eladó családi ház
Eladó családi ház

Tahitótfalu

188 M Ft
7 szoba
280 m2
Eladó családi ház
Eladó családi ház

Gyál

159.9 M Ft
5 szoba
158 m2
Eladó családi ház
Eladó családi ház

Budakeszi, Budakeszi kertváros

140 M Ft
2 szoba
55 m2
Eladó családi ház
Eladó családi ház

Pécel, Reményik Sándor utca

296 M Ft
6 szoba
396 m2
Eladó családi ház
Eladó családi ház

Budaörs, Városközpont utca

119.5 M Ft
5 + 1 szoba
140 m2
Eladó családi ház
Eladó családi ház

Gyál

95 M Ft
3 szoba
92 m2
Eladó családi ház
Eladó családi ház

Gyál

94.9 M Ft
5 szoba
135 m2

Falusi CSOK ingatlanok

Eladó családi ház
Eladó családi ház

Simontornya

26 M Ft
3 szoba
60 m2
Eladó családi ház
Eladó családi ház

Ságvár

64.9 M Ft
3 szoba
70 m2
Eladó családi ház
Eladó családi ház

Nagybörzsöny

79.9 M Ft
4 szoba
149 m2
Eladó családi ház
Eladó családi ház

Kaposgyarmat

695 M Ft
6 szoba
610 m2
Eladó ikerház
Eladó ikerház

Balatonakali

165 M Ft
4 szoba
138 m2
Eladó családi ház
Eladó családi ház

Dombrád

8 M Ft
2 szoba
85 m2
Eladó családi ház
Eladó családi ház

Uraiújfalu

15.9 M Ft
4 szoba
100 m2
Eladó családi ház
Eladó családi ház

Tömörkény

8.9 M Ft
2 szoba
80 m2