Eladó családi ház
Gyál

+ 14 kép 1/17
249 900 000 Ft249.9 M Ft 876 842 Ft/m2
6 szoba
285 m2
építés éve:2025

Részletes adatok

Telekméret: 700 m2
Fűtés: Egyéb
Energetikai besorolás: Nem adta meg a hirdető

Az OTP Bank lakáshitel ajánlataFizetett hirdetés

+36 1 690
Balázs István Jácint
Duna House Kispest

Érdekel az OTP Bank kedvezményes lakáshitel ajánlata? *

* A kérdésre „Igen” válasz bejelölése esetén, az „Üzenet küldése” gombra kattintva kijelentem, hogy az OTP Bank Nyrt. Adatkezelési tájékoztatójának tartalmát megismertem és tudomásul vettem.

Eladó családi ház leírása

Igazi luxus Gyálon!

Gyál egyik kedvelt részén kínálunk megvételre egy modern, tágas otthont, amely ideális választás nagycsaládosoknak és mindazoknak, akik a fényes, nagy tereket részesítik előnyben.

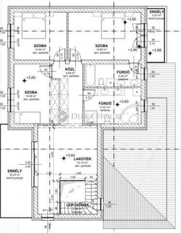
Telek mérete: 663 m²
Hasznos alapterület: nettó 222,3 m² (bruttó 285,78 m²)
Szintek száma: 2

Ez az önálló családi ház egy tökéletes választás Nappali+4 hálószobával rendelkezik, melyből kettő szülői hálóként lett tervezve saját fürdőszobával és gardróbbal, egy a földszinten egy pedig az emeleten.
További 2 fürdőszoba is a rendelkezésre áll egy a földszinten a vendégek számára egy pedig az emeleten a család többi részének.
Mind kivitelben mind a tervezéskor a legnagyobb kényelemre ügyelt a tulajdonos, hogy egy kivételes otthont tudjon építeni!

Műszaki tartalom:

-30-as Leier falazat 10 cm grafitos szigeteléssel
- lábazat 15 cm XPS szigeteléssel
-belső falak 10 cm Leier téglából
-20 cm kőzetgyapot födémszigetelés
-hőszivattyú mely padlófűtéssel adja le a hőt
-3 rétegű, energiatakarékos nyílászárók
-elektromos kapu
-napelem-előkészítés
-beépített kamerarendszer és riasztó
-klíma a nappaliban, előkészítés igény esetén minden szoba

A vételár tartalmazza:

Melegburkolat 5.000 Ft/m² értékben
Hidegburkolat 5.000 Ft/m² értékben
Beltéri ajtó kilinccsel: 80.000 Ft/db
Kád tartozékaival: 80.000 Ft/db
Csaptelepek: 20.000 Ft/db
Mosdók: 20.000 Ft/db
Plusz vízkiállás: 50.000 Ft/db
Villanykiállás: 30.000 Ft/db
Kerti csap szerelve: 100.000 Ft/db

(A szaniterek és belső ajtók választhatók az aktuális készültségi foktól függően. Extra igények, módosítások előzetes egyeztetéssel kérhetők.

Kivitelező:

A házat egy megbízható, tapasztalt kivitelező építi, aki számos referenciamunkával rendelkezik a környéken. A korábbi projektek személyesen is megtekinthetők, így az érdeklődők saját szemükkel győződhetnek meg a minőségről.

Finanszírozás és átadás:

3%-os hitelre is alkalmas

Várható átadás: 2025. december 31.

Teljes körű segítség: független hitelszakértő és megbízható ügyvédi háttér.

Hívjon a hét bármely napján, ha már látja magát ebben a csodás otthonban!
A Duna House teljes kínálatával kapcsolatban segítségére tudok lenni.
Amennyiben telefonon nem ér el, kérem küldjön érdeklődő üzenetet.
Szükség esetén román nyelven is tudok segíteni

Referencia szám: HZ010678

Hirdetés feltöltve: 2025. 10. 03. Utoljára módosítva: 2025. 10. 03.

Az ingatlan elhelyezkedése

Cím: Gyál

Eladó családi házak a környékről

Eladó családi ház
Eladó családi ház

Gyál

84 M Ft
3 szoba
92 m2
Eladó családi ház
Eladó családi ház

Budaörs, Városközpont utca

119.5 M Ft
5 + 1 szoba
140 m2
Eladó családi ház
Eladó családi ház

Gyál

125 M Ft
5 szoba
135 m2
Eladó családi ház
Eladó családi ház

Dunavarsány

69.9 M Ft
3 + 1 szoba
140 m2
Eladó családi ház
Eladó családi ház

Kerepes

199 M Ft
6 szoba
360 m2
Eladó családi ház
Eladó családi ház

Tápiószele

37.9 M Ft
4 szoba
141 m2
Eladó családi ház
Eladó családi ház

Budakeszi, Makkosmária

100 M Ft
1 szoba
10 m2
Eladó családi ház
Eladó családi ház

Szigetszentmiklós, Városközpont, Tököli út közeli utca

120 M Ft
7 szoba
525 m2
Eladó családi ház
Eladó családi ház

Leányfalu

237 M Ft
9 szoba
800 m2
Eladó családi ház
Eladó családi ház

Érd

164.9 M Ft
5 szoba
192 m2
Eladó családi ház
Eladó családi ház

Gyál

89 M Ft
3 szoba
95 m2
Eladó családi ház
Eladó családi ház

Gyál

180 M Ft
7 szoba
350 m2
Eladó családi ház
Eladó családi ház

Pécel, Reményik Sándor utca

296 M Ft
6 szoba
396 m2
Eladó családi ház
Eladó családi ház

Tápiószentmárton

7.9 M Ft
2 + 1 szoba
86 m2
Eladó családi ház
Eladó családi ház

Gyál

139 M Ft
5 szoba
149 m2
Eladó családi ház
Eladó családi ház

Érd

382 M Ft
6 szoba
420 m2
Eladó családi ház
Eladó családi ház

Gyál

99.9 M Ft
5 szoba
160 m2
Eladó családi ház
Eladó családi ház

Tápiógyörgye

19.9 M Ft
3 szoba
65 m2
Eladó családi ház
Eladó családi ház

Gyál

103.5 M Ft
5 szoba
180 m2
Eladó családi ház
Eladó családi ház

Gyál, Árpád utca

89 M Ft
3 szoba
95 m2
Eladó családi ház
Eladó családi ház

Gyál

475 M Ft
10 szoba
620 m2
Eladó családi ház
Eladó családi ház

Gyál

475 M Ft
10 szoba
620 m2
Eladó családi ház
Eladó családi ház

Budakeszi

130 M Ft
5 szoba
30 m2
Eladó családi ház
Eladó családi ház

Gyál

139.9 M Ft
6 szoba
440 m2

Falusi CSOK ingatlanok

Eladó családi ház
Eladó családi ház

Kéthely

17.9 M Ft
4 szoba
113 m2
Eladó családi ház
Eladó családi ház

Bábolna

90.3 M Ft
5 szoba
100 m2
Eladó családi ház
Eladó családi ház

Tihany

345 M Ft
6 szoba
347 m2
Eladó családi ház
Eladó családi ház

Csokonyavisonta

20.5 M Ft
5 szoba
124 m2
Eladó családi ház
Eladó családi ház

Tápiószőlős

69 M Ft
3 szoba
77 m2
Eladó családi ház
Eladó családi ház

Somogyszob

5.9 M Ft
3 szoba
75 m2
Eladó családi ház
Eladó családi ház

Koppányszántó, Fő u 211

9.9 M Ft
2 szoba
55 m2
Eladó családi ház
Eladó családi ház

Badacsonytomaj

199.8 M Ft
3 szoba
166 m2