Avico Greentop

Eladó családi ház
Gödöllő

+ 15 kép 1/18
169 000 000 Ft169 M Ft 1 024 242 Ft/m2
5 szoba
165 m²
építés éve:1981

Részletes adatok

Állapot: Felújított
Telekméret: 744 m2
Fűtés: Gázkazán
Parkolás: Garázs
Energetikai besorolás: Nem adta meg a hirdető

Az OTP Bank lakáshitel ajánlataFizetett hirdetés

+36 30 960
Ludas Judit
referens

Érdekel az OTP Bank kedvezményes lakáshitel ajánlata? *

* A kérdésre „Igen” válasz bejelölése esetén, az „Üzenet küldése” gombra kattintva kijelentem, hogy az OTP Bank Nyrt. Adatkezelési tájékoztatójának tartalmát megismertem és tudomásul vettem.

Eladó családi ház leírása

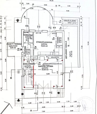
Gödöllő legkedveltebb kertvárosi részén, igényes környezetben eladó egy kiváló állapotú, 150 m²-es, tetőtér-beépítéses, 5 szobás, duplakomfortos (2 fürdőszobás) családi ház, 744 m²-es, gyönyörűen rendezett sarok telken.

A ház ideális családoknak: nappali + 4 külön nyíló hálószoba, praktikus elrendezéssel.
A földszinten napfényes, teraszkapcsolatos konyha-étkező fedett terasszal, kamra, nappali, és fürdőszoba található, míg az emeleten 4 hálószoba, fürdőszoba és dolgozósarok kapott helyet.

Fűtése kondenzációs gázkazán padlófűtés + radiátoros hőleadással, ezen kívül +2 db hűtő-fűtő klíma és kandalló biztosítja a megfelelő hőmérsékletet télen-nyáron.
Az alacsony rezsit 5 kW-os napelemes rendszer segíti, amely még 2031-ig szaldó elszámolású.

A ház szigetelt, a tető újszerű állapotú.

Garázs, fedett kocsibeálló, pince tartozik az ingatlanhoz.

A szépen gondozott kert automata öntöző rendszerrel ellátott.
Egy kerti szerszámos faház és kültéri kemence található a 744 nm-es udvaron.

A telket impozáns tégla - kovácsoltvas kerítés veszi körbe.

Csendes, barátságos környezet, kiváló közlekedés, a belváros könnyen elérhető,

Ajánlom 2-3 gyermekes családoknak, vagy azt tervezőknek, biztos nem fognak csalódni ebben a barátságos és praktikus otthonban.

Pénzügyi támogató csapatunk segít megtalálni a hiányzó forrásokat, amennyiben erre szüksége van.

Várom megtisztelő hívását.

ID:394647 ...TOVÁBBI, TÖBBEZRES INGATLAN KÍNÁLAT: www.gdn-ingatlan.hu - GDN azonosító: 394647

Hirdetés feltöltve: 2026. 04. 16. Utoljára módosítva: 2026. 05. 06.

5 szobás családi házak ára Gödöllőn

Ebből az összehasonlításból megtudhatod, hogyan viszonyul a lakás ára a környékbeli családi házak átlagos árához. Ez nem azt jelenti, hogy ennyivel olcsóbb vagy drágább, mint amennyit a lakás ér, hanem hogy ennyivel tér el a környékbeli átlagtól.

Ennek a m² ára
Gödöllő m² ár
1024 e Ft
782 e Ft -31%
Ennek az ára
Gödöllő átlagár
169 M Ft m Ft
177.4 m Ft 5%

Az ingatlan elhelyezkedése

Cím: Gödöllő

Eladó családi házak a környékről

Gödöllő
Eladó családi ház

Gödöllő

105.5 M Ft
3 szoba
95 m²
Érd
Eladó családi ház

Érd

164.9 M Ft
5 szoba
192 m²
Gödöllő
Eladó családi ház

Gödöllő

169 M Ft
7 szoba
262 m²
Gödöllő
Eladó családi ház

Gödöllő

169 M Ft
7 szoba
262 m²
Őrbottyán
Eladó családi ház

Őrbottyán

154 M Ft
4 + 1 szoba
115 m²
Gödöllő
Eladó családi ház

Gödöllő

47 M Ft
4 szoba
70 m²
Dunakeszi
Eladó családi ház

Dunakeszi

250 M Ft
4 szoba
180 m²
Gödöllő
Eladó családi ház

Gödöllő

269 M Ft
5 szoba
292 m²
Nagykáta
Eladó családi ház

Nagykáta

130 M Ft
3 szoba
203 m²
Gödöllő
Eladó családi ház

Gödöllő

269 M Ft
5 szoba
292 m²
Tápiószentmárton
Eladó családi ház

Tápiószentmárton

48 M Ft
5 szoba
180 m²
Tápiószele
Eladó családi ház

Tápiószele

37.9 M Ft
4 szoba
141 m²
Tápiószőlős
Eladó családi ház

Tápiószőlős

34.9 M Ft
5 szoba
210 m²
Kerepes
Eladó családi ház

Kerepes

199 M Ft
6 szoba
360 m²
Gödöllő, Királytelep, Alkotmány utca
Eladó családi ház

Gödöllő

165 M Ft
8 szoba
275 m²
Gödöllő
Eladó családi ház

Gödöllő

165 M Ft
8 szoba
275 m²
Gödöllő
Eladó családi ház

Gödöllő

249.9 M Ft
8 + 1 szoba
295 m²
Budakeszi, Makkosmária
Eladó családi ház

Budakeszi

100 M Ft
1 szoba
10 m²
Gödöllő
Eladó családi ház

Gödöllő

169 M Ft
7 szoba
262 m²
Tápiószentmárton
Eladó családi ház

Tápiószentmárton

16.5 M Ft
3 szoba
50 m²
Tápiógyörgye
Eladó családi ház

Tápiógyörgye

19.9 M Ft
3 szoba
65 m²
Budaörs
Eladó családi ház

Budaörs

400 M Ft
12 szoba
583 m²
Gödöllő
Eladó családi ház

Gödöllő

199.9 M Ft
10 szoba
390 m²
Gödöllő
Eladó családi ház

Gödöllő

208 M Ft
8 szoba
341 m²

Falusi CSOK ingatlanok

Csátalja, Dózsa György utca
Eladó családi ház

Csátalja

30.5 M Ft
3 szoba
110 m²
Nagybörzsöny
Eladó családi ház

Nagybörzsöny

49.76 M Ft
3 szoba
110 m²
Tornyiszentmiklós
Eladó családi ház

Tornyiszentmiklós

29.9 M Ft
3 szoba
110 m²
Balatonakali
Eladó ikerház

Balatonakali

560 M Ft
4 szoba
140 m²
Hegyeshalom, Margaréta utca 12
Eladó téglalakás

Hegyeshalom

32.89 M Ft
1 szoba
27 m²
Badacsonytomaj
Eladó családi ház

Badacsonytomaj

285 M Ft
4 szoba
230 m²
Pécsvárad
Eladó családi ház

Pécsvárad

189 M Ft
7 szoba
618 m²
Bag
Eladó családi ház

Bag

110 M Ft
5 szoba
320 m²