Eladó családi ház
Gödöllő

+ 12 kép 1/15
123 000 000 Ft123 M Ft 591 346 Ft/m2
4 szoba
208 m2
építés éve:1985

Részletes adatok

Telekméret: 823 m2
Fűtés: Gázkazán
Parkolás: Garázs
Közmű: Gáz, Villany, Csatorna
Energetikai besorolás: Nem adta meg a hirdető

Az OTP Bank lakáshitel ajánlataFizetett hirdetés

+36 70 465
Lippai Gabriella
referens

Érdekel az OTP Bank kedvezményes lakáshitel ajánlata? *

* A kérdésre „Igen” válasz bejelölése esetén, az „Üzenet küldése” gombra kattintva kijelentem, hogy az OTP Bank Nyrt. Adatkezelési tájékoztatójának tartalmát megismertem és tudomásul vettem.

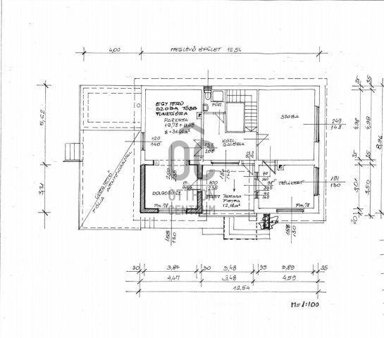
Eladó családi ház leírása

Eladóvá vált Gödöllő egyik csendes, kertvárosi részén egy kétszintes, kb 200 m²-es családi ház, amely családok és vállalkozók számára is jó választás!
Az udvarban még három épület található ami akásként lett kialakítva, jelenleg is bérlőkkel.
Főbb jellemzők:
a fő épületben...
- 4 szoba, nappali-hall, étkező és konyha
- Két fürdőszoba,
- fedett, de nyitható emeleti terasz a földszintin kívül
- Modern, elektromos redőnyökkel felszerelt ablakok
- kazánház
- három külön szoba- konyhás-fürdőszobás épület
és garázs
- Méretes, 823 m²-es telek,
- Csendes utca, barátságos szomszédság
Kiváló választás családoknak:
- Tágas terek, több generáció számára is alkalmas
- Közeli iskola, óvoda, játszótér és bolt
- Nyugodt, biztonságos környék

Ideális vállalkozóknak is:
- nagy terek a főépületben
- 4 külön lakáscélú ingatlan
- Külön mérőórák, parkolási lehetőség az udvarban
- Könnyű megközelíthetőség – M3 autópálya, HÉV, buszjáratok
Az épület szerkezetileg kiváló állapotban van, felújjítással, modernizálással a saját igényekre szabható.

Az épület hitelre megvásárolható, hitelügyintézésben segítünk!
Megtekintés miatt kérem telefonon keressen!
H504875

Hirdetés feltöltve: 2025. 07. 25. Utoljára módosítva: 2025. 10. 03.

4 szobás családi házak ára Gödöllőn

Ebből az összehasonlításból megtudhatod, hogyan viszonyul a lakás ára a környékbeli családi házak átlagos árához. Ez nem azt jelenti, hogy ennyivel olcsóbb vagy drágább, mint amennyit a lakás ér, hanem hogy ennyivel tér el a környékbeli átlagtól.

Ennek a m² ára
Gödöllő m² ár
591 e Ft
933 e Ft 37%
Ennek az ára
Gödöllő átlagár
123 M Ft m Ft
147.6 m Ft 17%

Az ingatlan elhelyezkedése

Cím: Gödöllő

Eladó családi házak a környékről

Eladó családi ház
Eladó családi ház

Gödöllő

47 M Ft
5 szoba
70 m2
Eladó családi ház
Eladó családi ház

Kerepes

199 M Ft
6 szoba
360 m2
Eladó családi ház
Eladó családi ház

Gödöllő

79 M Ft
3 szoba
90 m2
Eladó családi ház
Eladó családi ház

Tápiógyörgye

19.9 M Ft
3 szoba
65 m2
Eladó családi ház
Eladó családi ház

Gödöllő

199.9 M Ft
10 szoba
390 m2
Eladó családi ház
Eladó családi ház

Budaörs, Odvshegy utca

268.9 M Ft
5 szoba
235 m2
Eladó családi ház
Eladó családi ház

Gödöllő

165 M Ft
8 szoba
275 m2
Eladó családi ház
Eladó családi ház

Gödöllő

149.9 M Ft
8 + 1 szoba
295 m2
Eladó családi ház
Eladó családi ház

Gödöllő

47 M Ft
4 szoba
70 m2
Eladó családi ház
Eladó családi ház

Kerepes

81.99 M Ft
5 szoba
102 m2
Eladó családi ház
Eladó családi ház

Budakeszi, Budakeszi kertváros

140 M Ft
2 szoba
55 m2
Eladó családi ház
Eladó családi ház

Pécel, Reményik Sándor utca

296 M Ft
6 szoba
396 m2
Eladó családi ház
Eladó családi ház

Budakeszi, Makkosmária

100 M Ft
1 szoba
10 m2
Eladó családi ház
Eladó családi ház

Budakeszi, Budakeszi kertváros

229 M Ft
10 szoba
450 m2
Eladó családi ház
Eladó családi ház

Gödöllő

199 M Ft
14 szoba
516 m2
Eladó családi ház
Eladó családi ház

Budaörs, Városközpont utca

119.5 M Ft
5 + 1 szoba
140 m2
Eladó családi ház
Eladó családi ház

Dunavarsány

69.9 M Ft
3 + 1 szoba
140 m2
Eladó családi ház
Eladó családi ház

Budaörs, Bányász utca

385 M Ft
6 szoba
300 m2
Eladó családi ház
Eladó családi ház

Gödöllő

134.9 M Ft
5 + 3 szoba
236 m2
Eladó családi ház
Eladó családi ház

Gödöllő

280 M Ft
7 szoba
336 m2
Eladó családi ház
Eladó családi ház

Budakeszi

130 M Ft
5 szoba
30 m2
Eladó családi ház
Eladó családi ház

Tápiószentmárton

7.9 M Ft
2 + 1 szoba
86 m2
Eladó családi ház
Eladó családi ház

Gödöllő, Haraszt, Táncsics Mihály út 74

169 M Ft
4 szoba
226 m2
Eladó családi ház
Eladó családi ház

Gödöllő

89.9 M Ft
6 szoba
200 m2

Falusi CSOK ingatlanok

Eladó családi ház
Eladó családi ház

Nagyhegyes

47.9 M Ft
2 szoba
72 m2
Eladó családi ház
Eladó családi ház

Zsámbok

45 M Ft
2 szoba
60 m2
Eladó családi ház
Eladó családi ház

Nagykarácsony, Jókai utca 31

17.27 M Ft
1 + 1 szoba
103 m2
Eladó családi ház
Eladó családi ház

Szalánta

149.9 M Ft
10 szoba
301 m2
Eladó családi ház
Eladó családi ház

Kerkaszentkirály, Béke utca 80

21.05 M Ft
1 + 1 szoba
165 m2
Eladó családi ház
Eladó családi ház

Tök

125.4 M Ft
4 szoba
135 m2
Eladó családi ház
Eladó családi ház

Galgagyörk

46.9 M Ft
4 szoba
105 m2
Eladó családi ház
Eladó családi ház

Makád

32.8 M Ft
4 szoba
141 m2