Seven Pearl

Eladó családi ház
Gödöllő

+ 17 kép 1/20
169 000 000 Ft169 M Ft 474 719 Ft/m2
9 + 1 szoba
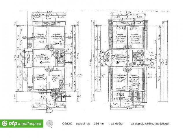
356 m²
építés éve:1995

Részletes adatok

Állapot: Felújítandó
Telekméret: 3784 m2
Fűtés: Gázkazán
Energetikai besorolás: Nem adta meg a hirdető

Az OTP Bank lakáshitel ajánlataFizetett hirdetés

+36 70 572
Hohol Róbert
THN-TAMUS Kft.

Érdekel az OTP Bank kedvezményes lakáshitel ajánlata? *

* A kérdésre „Igen” válasz bejelölése esetén, az „Üzenet küldése” gombra kattintva kijelentem, hogy az OTP Bank Nyrt. Adatkezelési tájékoztatójának tartalmát megismertem és tudomásul vettem.

Eladó családi ház leírása

ELADÓ GÖDÖLLŐN 356 NM-ES, TÖBB LEHETŐSÉGET REJTŐ INGATLAN 3784 NM-ES TELKEN

Gödöllő egyik nyugodt, mégis jól megközelíthető részén kínálok megvételre egy összesen 356 nm alapterületű, két épületből álló ingatlant, 3784 nm-es, teraszos kialakítású telken.

A főépület 1994?95-ben épült, három szinten: alagsor, magasföldszint és emelet. Mindhárom szinten önálló konyha, fürdő és WC található, így a szintek külön egységként is használhatók.
- Magasföldszint: 3 tágas, napfényes szoba, tágas konyha, fürdő, WC
- Emelet: 4 tágas szoba, konyha, fürdőszoba WC-vel
- Alagsor: külön lakrész saját kis konyhával, fürdővel + akár 2 beállós garázs

A szintek jelenleg belső átjárással is kapcsolódnak, amely igény szerint megtartható vagy leválasztható - így az ingatlan könnyedén átalakítható többgenerációs otthonná de akár társasházzá is.

A melléképület jelenleg önálló lakóegység: nagy szoba, előszoba, konyha, fürdő, kamra. Ideális vendégház, de irodának, műhelynek vagy kiadható lakásnak is ideális.

Az épületek statikailag stabilak, szerkezetileg jó állapotúak. Jelenleg nem lakott, ezért esztétikai és gépészeti korszerűsítés javasolt - ami egyben lehetőség is: a kialakítás teljes mértékben az új tulajdonos igényeire szabható.

A 3784 nm-es, teraszos kialakítású telek korábban művelt volt, a gyümölcsfák még ma is megtalálhatók. A méret és az adottságok további fejlesztési potenciált hordoznak.

Kinek ajánljuk? Nagycsaládosoknak, több generáció együttélésére, vagy vállalkozóknak, akik az otthont és munkahelyet egy helyen képzelik el, de kiváló lehetőség befektetőknek is, akik több lakásos kialakításban gondolkodnak, akár eladásra, akár kiadásra.

Megtekintéssel kapcsolatban keressen bizalommal, rugalmasan tudom mutatni előzetes egyeztetés alapján. Ingatlanvásárláshoz az OTP Bank pénzügyi szolgáltatásait ajánlom (CSOK Plusz, Babaváró, piaci hitelek), melyek kedvezményes igénylésében szintén segítek!

Hirdetés feltöltve: 2026. 03. 17. Utoljára módosítva: 2026. 04. 27.

Az ingatlan elhelyezkedése

Cím: Gödöllő

Eladó családi házak a környékről

Gödöllő
Eladó családi ház

Gödöllő

199 M Ft
14 szoba
516 m²
Remeteszőlős
Eladó családi ház

Remeteszőlős

399.9 M Ft
5 + 2 szoba
260 m²
Gödöllő
Eladó családi ház

Gödöllő

123 M Ft
4 szoba
208 m²
Gödöllő
Eladó családi ház

Gödöllő

169 M Ft
7 szoba
262 m²
Tápiószele
Eladó családi ház

Tápiószele

11.9 M Ft
3 szoba
62 m²
Gödöllő
Eladó családi ház

Gödöllő

330 M Ft
7 szoba
300 m²
Tápiószentmárton
Eladó családi ház

Tápiószentmárton

48 M Ft
5 szoba
180 m²
Gödöllő, Haraszt, Táncsics Mihály út 74
Eladó családi ház

Gödöllő

149 M Ft
4 szoba
290 m²
Őrbottyán
Eladó családi ház

Őrbottyán

154 M Ft
4 + 1 szoba
115 m²
Gödöllő
Eladó családi ház

Gödöllő

249.9 M Ft
8 + 1 szoba
295 m²
Gödöllő
Eladó családi ház

Gödöllő

47 M Ft
4 szoba
70 m²
Tápiószele
Eladó családi ház

Tápiószele

37.9 M Ft
4 szoba
141 m²
Tápiószentmárton
Eladó családi ház

Tápiószentmárton

7.9 M Ft
2 + 1 szoba
86 m²
Budaörs
Eladó családi ház

Budaörs

400 M Ft
12 szoba
583 m²
Tápiószele
Eladó családi ház

Tápiószele

32.9 M Ft
4 szoba
200 m²
Érd
Eladó családi ház

Érd

164.9 M Ft
5 szoba
192 m²
Gödöllő
Eladó családi ház

Gödöllő

149 M Ft
5 szoba
226 m²
Budakeszi, Budakeszi kertváros
Eladó családi ház

Budakeszi

229 M Ft
10 szoba
450 m²
Gödöllő
Eladó családi ház

Gödöllő

208 M Ft
8 szoba
341 m²
Gödöllő, Királytelep, Alkotmány utca
Eladó családi ház

Gödöllő

165 M Ft
8 szoba
275 m²
Tápiószele
Eladó családi ház

Tápiószele

18.9 M Ft
4 szoba
68 m²
Gödöllő
Eladó családi ház

Gödöllő

89.9 M Ft
6 szoba
200 m²
Zebegény
Eladó családi ház

Zebegény

69.9 M Ft
6 szoba
245 m²
Tápiógyörgye
Eladó családi ház

Tápiógyörgye

19.9 M Ft
3 szoba
65 m²

Falusi CSOK ingatlanok

Izsófalva
Eladó családi ház

Izsófalva

22.9 M Ft
3 szoba
105 m²
Pókaszepetk, Petőfi Sándor utca
Eladó családi ház

Pókaszepetk

22 M Ft
2 szoba
83 m²
Tabdi
Eladó családi ház

Tabdi

95 M Ft
45 szoba
1490 m²
Hosszúhetény, Petőfi Sándor utca 10
Eladó családi ház

Hosszúhetény

20.65 M Ft
4 + 2 szoba
133 m²
Taszár
Eladó családi ház

Taszár

58.9 M Ft
2 + 1 szoba
91 m²
Kaposgyarmat
Eladó családi ház

Kaposgyarmat

695 M Ft
6 szoba
610 m²
Bag
Eladó családi ház

Bag

16.9 M Ft
6 szoba
160 m²
Perkáta
Eladó családi ház

Perkáta

38.95 M Ft
1 + 2 szoba
72 m²