Astora Olive Club House

Eladó családi ház
Gárdony

+ 13 kép 1/16
69 800 000 Ft69.8 M Ft 606 957 Ft/m2
3 + 1 szoba
115 m²
építés éve:1980

Részletes adatok

Állapot: Felújítandó
Telekméret: 346 m2
Fűtés: Gázkonvektor
Energetikai besorolás: C

Az OTP Bank lakáshitel ajánlataFizetett hirdetés

+36 20 487
Darnai Henrietta
referens

Érdekel az OTP Bank kedvezményes lakáshitel ajánlata? *

* A kérdésre „Igen” válasz bejelölése esetén, az „Üzenet küldése” gombra kattintva kijelentem, hogy az OTP Bank Nyrt. Adatkezelési tájékoztatójának tartalmát megismertem és tudomásul vettem.

Eladó családi ház leírása

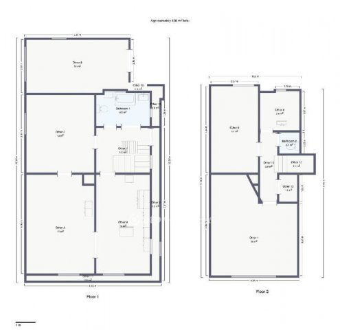
Gárdony csendes részén eladó egy 115 nm-es, téglaépítésű családi ház, amely kiváló lehetőséget kínál saját igények szerinti felújításra és átalakításra.

Az 346 nm-es telken elhelyezkedő ingatlan praktikus elosztású: a földszinten konyha?nappali, fürdőszoba és egy szoba, míg az emeleten három külön nyíló szoba, valamint külön zuhanyzó és mosdóhelyiség található, így ideális akár nagyobb család számára is.

A fűtésről gáz-konvektorok gondoskodnak, emellett az ingatlanban cserépkályha is helyet kapott, amely kellemes hangulatot és alternatív fűtési lehetőséget biztosít (cserépkályha működését meg kell vizsgálnia a leendő vevőnek).

Az ingatlan felújításra szorul, így új tulajdonosa saját elképzelései szerint alakíthatja ki otthonát vagy akár befektetési célra is kiváló választás lehet.

Hirdetés feltöltve: 2026. 02. 13. Utoljára módosítva: 2026. 05. 10.

4 szobás családi házak ára Gárdonyban

Ebből az összehasonlításból megtudhatod, hogyan viszonyul a lakás ára a környékbeli családi házak átlagos árához. Ez nem azt jelenti, hogy ennyivel olcsóbb vagy drágább, mint amennyit a lakás ér, hanem hogy ennyivel tér el a környékbeli átlagtól.

Ennek a m² ára
Gárdony m² ár
607 e Ft
804 e Ft 25%
Ennek az ára
Gárdony átlagár
69.8 M Ft m Ft
112.6 m Ft 38%

Az ingatlan elhelyezkedése

Cím: Gárdony

Eladó családi házak a környékről

Gárdony
Eladó családi ház

Gárdony

154.9 M Ft
7 szoba
196 m²
Gárdony
Eladó családi ház

Gárdony

154.9 M Ft
4 szoba
173 m²
Gárdony
Eladó családi ház

Gárdony

163 M Ft
5 + 4 szoba
200 m²
Felcsút, Rákóczi Ferenc utca
Eladó családi ház

Felcsút

32 M Ft
2 + 1 szoba
55 m²
Bicske, Baboshegy
Eladó családi ház

Bicske

26.9 M Ft
1 szoba
30 m²
Velence, Liget utca
Eladó családi ház

Velence

99.8 M Ft
2 + 1 szoba
134 m²
Gánt, Gánti út
Eladó családi ház

Gánt

29.9 M Ft
2 + 1 szoba
40 m²
Bakonycsernye
Eladó családi ház

Bakonycsernye

39 M Ft
3 szoba
350 m²
Gárdony
Eladó családi ház

Gárdony

73 M Ft
7 szoba
120 m²
Csákvár
Eladó családi ház

Csákvár

29.9 M Ft
4 szoba
120 m²
Gárdony
Eladó családi ház

Gárdony

115 M Ft
4 szoba
116 m²
Gárdony
Eladó családi ház

Gárdony

150 M Ft
5 + 5 szoba
300 m²
Gárdony
Eladó családi ház

Gárdony

150 M Ft
5 + 5 szoba
300 m²
Székesfehérvár
Eladó családi ház

Székesfehérvár

69.9 M Ft
3 szoba
95 m²
Etyek
Eladó családi ház

Etyek

160 M Ft
6 szoba
228 m²
Gárdony
Eladó családi ház

Gárdony

255 M Ft
10 szoba
280 m²
Gárdony
Eladó családi ház

Gárdony

89.9 M Ft
4 + 1 szoba
102 m²
Gárdony
Eladó családi ház

Gárdony

154.9 M Ft
4 szoba
207 m²
Szabadbattyán
Eladó családi ház

Szabadbattyán

357.518 M Ft
9 + 2 szoba
1053 m²
Kulcs
Eladó családi ház

Kulcs

148 M Ft
5 szoba
195 m²
Gárdony
Eladó családi ház

Gárdony

89.5 M Ft
2 + 2 szoba
100 m²
Gárdony, Álmos Vezér utca
Eladó családi ház

Gárdony

95.6 M Ft
3 + 2 szoba
111 m²
Adony
Eladó családi ház

Adony

8 M Ft
2 szoba
30 m²
Gárdony
Eladó családi ház

Gárdony

154.9 M Ft
5 + 3 szoba
200 m²

Falusi CSOK ingatlanok

Örkény
Eladó családi ház

Örkény

34 M Ft
2 + 1 szoba
85 m²
Segesd
Eladó családi ház

Segesd

15.8 M Ft
3 szoba
100 m²
Mencshely
Eladó családi ház

Mencshely

99 M Ft
3 szoba
126 m²
Balatonfenyves, Örvös utca
Eladó családi ház

Balatonfenyves

424.8 M Ft
4 szoba
330 m²
Bodajk
Eladó ikerház

Bodajk

69.4 M Ft
5 szoba
108 m²
Balatonszemes
Eladó téglalakás

Balatonszemes

119.9 M Ft
2 szoba
0 m²
Fertőd
Eladó családi ház

Fertőd

140.91 M Ft
4 + 2 szoba
190 m²
Dunaegyháza
Eladó családi ház

Dunaegyháza

29.49 M Ft
3 szoba
70 m²