Seven Pearl

Eladó családi ház
Galgahévíz

Figyelem!

Ez az ingatlan a 2019.07.01-től induló falusi CSOK által támogatott településen található

+ 9 kép 1/12
38 000 000 Ft38 M Ft 376 238 Ft/m2
3 szoba
101 m²
építés éve:1987

Részletes adatok

Állapot: Átlagos
Telekméret: 474 m2
Fűtés: Gázkazán
Komfort: Összkomfortos
Energetikai besorolás: Nem adta meg a hirdető

Az OTP Bank lakáshitel ajánlataFizetett hirdetés

+36 20 329
Burik Katalin
referens

Érdekel az OTP Bank kedvezményes lakáshitel ajánlata? *

* A kérdésre „Igen” válasz bejelölése esetén, az „Üzenet küldése” gombra kattintva kijelentem, hogy az OTP Bank Nyrt. Adatkezelési tájékoztatójának tartalmát megismertem és tudomásul vettem.

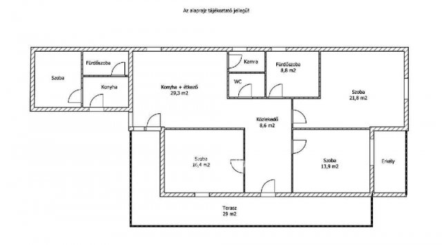
Eladó családi ház leírása

Tágas családi ház eladó Galgahévízen kétgenerációs lehetőséggel!

Megvételre kínálok Galgahévízen, egy csendes mellékutcában található, 101 nm-es alapterületű családi házat, 474 nm-es telken. Az ingatlan 1987-ben épült szilikát falazattal, szerkezetileg stabil, belső részek felújítandó állapotúak, így új tulajdonosa saját igényei szerint alakíthatja.

A főépületben 3 kényelmes hálószoba található, a belső terek tágasak és jól kihasználhatók.

A telken külön melléképület is található, amelyben egy önálló, egyszobás lakás került kialakításra. Ez ideális megoldás lehet két generáció együttélésére, vendéglakásként, vagy akár kiadásra is.

Műszaki jellemzők:
- Fűtés: gázkazán radiátoros hőleadással
- Alternatív fűtés: vegyestüzelésű kazán
- Összközműves ingatlan: víz, villany, gáz, csatorna
- Falazat: szilikát
- Állapot: felújítandó
- Tetőtér beépíthető
- Födémen 25 cm szigetelés

Főbb előnyök:
- 101 nm-es lakótér + különálló lakrész
- 474 nm-es telek, könnyen gondozható méret
- Kétgenerációs elrendezés lehetősége
- Csendes, nyugodt környezet
- Egyéni igényekre szabható kialakítás

Ne hagyja ki ezt a kiváló adottságú ingatlant, amely remek lehetőséget kínál akár nagyobb családok, akár befektetők számára!

Az ingatlan jelenleg csak Falusi CSOK-ra és Piaci hitelre alkalmas!

További információért és megtekintésért keressen bizalommal, akár hétvégén is!

Referencia szám: M323755

Hirdetés feltöltve: 2026. 04. 10. Utoljára módosítva: 2026. 05. 25.

Az ingatlan elhelyezkedése

Cím: Galgahévíz

Eladó családi házak a környékről

Galgahévíz, Dózsa György utca
Eladó családi ház

Galgahévíz

45 M Ft
3 + 1 szoba
100 m²
Tápiószentmárton
Eladó családi ház

Tápiószentmárton

16.5 M Ft
3 szoba
50 m²
Galgahévíz
Eladó családi ház

Galgahévíz

43 M Ft
3 szoba
115 m²
Tápiószentmárton
Eladó családi ház

Tápiószentmárton

7.9 M Ft
2 + 1 szoba
86 m²
Galgahévíz
Eladó családi ház

Galgahévíz

35.8 M Ft
3 + 1 szoba
108 m²
Galgahévíz
Eladó családi ház

Galgahévíz

59.9 M Ft
4 szoba
223 m²
Galgahévíz
Eladó családi ház

Galgahévíz

38 M Ft
3 szoba
101 m²
Galgahévíz
Eladó családi ház

Galgahévíz

45 M Ft
3 + 1 szoba
100 m²
Galgahévíz
Eladó családi ház

Galgahévíz

38 M Ft
3 szoba
101 m²
Galgahévíz
Eladó családi ház

Galgahévíz

23.9 M Ft
1 + 1 szoba
0 m²
Őrbottyán
Eladó családi ház

Őrbottyán

154 M Ft
4 + 1 szoba
115 m²
Tápiószele
Eladó családi ház

Tápiószele

11.9 M Ft
3 szoba
62 m²
Tápiószele
Eladó családi ház

Tápiószele

32.9 M Ft
4 szoba
200 m²
Galgahévíz
Eladó családi ház

Galgahévíz

94 M Ft
4 szoba
125 m²
Galgahévíz
Eladó családi ház

Galgahévíz

23.9 M Ft
1 + 1 szoba
50 m²
Budakeszi, Budakeszi kertváros
Eladó családi ház

Budakeszi

229 M Ft
10 szoba
450 m²
Budakeszi
Eladó családi ház

Budakeszi

130 M Ft
5 szoba
30 m²
Galgahévíz
Eladó családi ház

Galgahévíz

45 M Ft
3 + 1 szoba
100 m²
Galgahévíz
Eladó családi ház

Galgahévíz

94 M Ft
4 szoba
380 m²
Tápiószőlős
Eladó családi ház

Tápiószőlős

34.9 M Ft
5 szoba
210 m²
Galgahévíz
Eladó családi ház

Galgahévíz

79.9 M Ft
4 szoba
188 m²
Budakeszi, Makkosmária
Eladó családi ház

Budakeszi

100 M Ft
1 szoba
10 m²
Tápiószentmárton
Eladó családi ház

Tápiószentmárton

48 M Ft
5 szoba
180 m²
Kerepes
Eladó családi ház

Kerepes

81.99 M Ft
5 szoba
102 m²

Falusi CSOK ingatlanok

Sormás
Eladó családi ház

Sormás

105 M Ft
4 szoba
188 m²
Egerbakta
Eladó családi ház

Egerbakta

43.9 M Ft
5 + 1 szoba
160 m²
Mencshely
Eladó családi ház

Mencshely

99 M Ft
3 szoba
126 m²
Fülöpszállás
Eladó családi ház

Fülöpszállás

69.9 M Ft
4 szoba
190 m²
Szabadbattyán
Eladó családi ház

Szabadbattyán

62 M Ft
5 szoba
210 m²
Somlóvásárhely
Eladó családi ház

Somlóvásárhely

41.9 M Ft
3 szoba
103 m²
Újlengyel
Eladó családi ház

Újlengyel

75.9 M Ft
4 szoba
0 m²
Nagykarácsony
Eladó családi ház

Nagykarácsony

34.9 M Ft
3 szoba
112 m²

Falusi CSOK ingatlanok

Tápiószőlős
Eladó családi ház

Tápiószőlős

39.9 M Ft
4 szoba
120 m²
Szentmártonkáta
Eladó családi ház

Szentmártonkáta

53 M Ft
2 szoba
120 m²
Hegyeshalom, Margaréta utca 12
Eladó téglalakás

Hegyeshalom

32.89 M Ft
1 szoba
27 m²
Hévízgyörk
Eladó családi ház

Hévízgyörk

94.8 M Ft
8 szoba
254 m²
Táborfalva
Eladó családi ház

Táborfalva

34.9 M Ft
3 szoba
49 m²
Badacsonytomaj
Eladó családi ház

Badacsonytomaj

285 M Ft
4 szoba
230 m²
Örkény
Eladó családi ház

Örkény

37.9 M Ft
2 szoba
62 m²
Balatonszemes
Eladó téglalakás

Balatonszemes

119.9 M Ft
2 szoba
0 m²