Metrodom

Eladó családi ház
Érd

+ 17 kép 1/20
114 900 000 Ft114.9 M Ft 999 130 Ft/m2
4 szoba
115 m2
építés éve:2006

Részletes adatok

Telekméret: 685 m2
Fűtés: Gázkazán
Energetikai besorolás: Nem adta meg a hirdető

Az OTP Bank lakáshitel ajánlataFizetett hirdetés

+36 30 989
Keszthelyi László
Szigetszentmiklós OTP Ip

Érdekel az OTP Bank kedvezményes lakáshitel ajánlata? *

* A kérdésre „Igen” válasz bejelölése esetén, az „Üzenet küldése” gombra kattintva kijelentem, hogy az OTP Bank Nyrt. Adatkezelési tájékoztatójának tartalmát megismertem és tudomásul vettem.

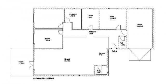
Eladó családi ház leírása

Egyszintes négyszobás családi ház, medencével, garázzsal,Érd csendes, de frekventált Dombosvárosi részén!

Eladó gondosan megtervezett, nappali + 3 szobás családi ház, amely egy csendes, 675 m2-es, összközműves saroktelken fekszik. A tökéletes DNY-i tájolás garantálja, hogy a kerti medence mellett töltött délutánok a legnaposabbak legyenek!

Főbb Jellemzők és Extrák:
115 m2-es, Tágas Élettér: Egy valódi családi fészek, ahol a nappali és a 3 kényelmes hálószoba mindenki számára biztosítja a privát szférát.
Két Fürdőszoba , dupla Komfortszint:
Szülői Master Bedroom: Saját, exkluzív fürdőszobával (zuhanyzó és kád), ami igazi luxus érzetet nyújt a mindennapokban.
Második Fürdőszoba: Zuhanyzóval és WC-vel felszerelt, a többi szoba kényelmét szolgálja.
Beépített Medence: A telek ékköve! A forró nyári napok garantált felfrissülése a saját, parkosított kertben.
Energiatakarékos Fűtés: Modern kondenzációs gázcirkó gondoskodik az otthon melegéről, lapradiátoros hőleadókkal. Alacsony rezsi, magas hatékonyság!
Kényelmi Funkciók: Műanyag nyílászárók redőnnyel és szúnyoghálóval felszerelve, a nyugodt éjszakákért és a rovarmentes szellőztetésért.
Fűtött Garázs: Az autó biztonságban tudható, közvetlen bejárattal a házba.
Ideális választás

A CSENDES KERTES ÉLETET ÉS A KÖNNYŰ BUDAPESTI ELÉRHETŐSÉGET KERESŐ CSALÁDOK SZÁMÁRA!

Ne maradjon le erről a páratlan lehetőségről! Tekintse meg még ma, és kezdje meg az életét ott, ahol a nyaralás érzése a mindennapok része!Csendes mellékutcában,új építésű házak szomszédságában, infrastruktúra szempontjából is megfelelő helyen található, 1 km-en belül távolsági busz, bevásárlási lehetőség, különféle szolgáltató létesítmények, de autóval 5 perc alatt elérhető óvoda, iskola, játszótér.

Hirdetés feltöltve: 2026. 01. 10. Utoljára módosítva: 2026. 01. 10.

4 szobás családi házak ára Érden

Ebből az összehasonlításból megtudhatod, hogyan viszonyul a lakás ára a környékbeli családi házak átlagos árához. Ez nem azt jelenti, hogy ennyivel olcsóbb vagy drágább, mint amennyit a lakás ér, hanem hogy ennyivel tér el a környékbeli átlagtól.

Ennek a m² ára
Érd m² ár
999 e Ft
985 e Ft -1%
Ennek az ára
Érd átlagár
114.9 M Ft m Ft
139 m Ft 17%

Az ingatlan elhelyezkedése

Cím: Érd

Eladó családi házak a környékről

Eladó családi ház
Eladó családi ház

Érd

195 M Ft
5 szoba
150 m2
Eladó családi ház
Eladó családi ház

Dunakeszi

250 M Ft
4 szoba
180 m2
Eladó családi ház
Eladó családi ház

Érd

95 M Ft
5 szoba
226 m2
Eladó családi ház
Eladó családi ház

Érd

120 M Ft
5 szoba
190 m2
Eladó családi ház
Eladó családi ház

Budaörs, Odvshegy utca

268.9 M Ft
5 szoba
235 m2
Eladó családi ház
Eladó családi ház

Érd

164.9 M Ft
5 szoba
192 m2
Eladó családi ház
Eladó családi ház

Érd

249.99 M Ft
6 szoba
210 m2
Eladó családi ház
Eladó családi ház

Tápiószele

37.9 M Ft
4 szoba
141 m2
Eladó családi ház
Eladó családi ház

Kerepes

199 M Ft
6 szoba
360 m2
Eladó családi ház
Eladó családi ház

Érd

225.5 M Ft
6 szoba
503 m2
Eladó családi ház
Eladó családi ház

Érd

84.9 M Ft
4 szoba
172 m2
Eladó családi ház
Eladó családi ház

Érd

67 M Ft
3 szoba
81 m2
Eladó családi ház
Eladó családi ház

Érd

224 M Ft
5 szoba
171 m2
Eladó családi ház
Eladó családi ház

Pécel, Reményik Sándor utca

296 M Ft
6 szoba
396 m2
Eladó családi ház
Eladó családi ház

Budakeszi, Makkosmária

100 M Ft
1 szoba
10 m2
Eladó családi ház
Eladó családi ház

Tápiószőlős

34.9 M Ft
5 szoba
210 m2
Eladó családi ház
Eladó családi ház

Érd

250 M Ft
6 szoba
210 m2
Eladó családi ház
Eladó családi ház

Tápiószentmárton

7.9 M Ft
2 + 1 szoba
86 m2
Eladó családi ház
Eladó családi ház

Érd

67 M Ft
3 + 1 szoba
100 m2
Eladó családi ház
Eladó családi ház

Érd

189.7 M Ft
5 szoba
204 m2
Eladó családi ház
Eladó családi ház

Érd

250 M Ft
6 szoba
207 m2
Eladó családi ház
Eladó családi ház

Érd

198 M Ft
5 szoba
216 m2
Eladó családi ház
Eladó családi ház

Tápiógyörgye

19.9 M Ft
3 szoba
65 m2
Eladó családi ház
Eladó családi ház

Érd

230 M Ft
5 szoba
175 m2

Falusi CSOK ingatlanok

Eladó családi ház
Eladó családi ház

Gógánfa

22.99 M Ft
3 szoba
93 m2
Eladó családi ház
Eladó családi ház

Herend

119.6 M Ft
5 szoba
108 m2
Eladó családi ház
Eladó családi ház

Pánd

31.5 M Ft
4 szoba
74 m2
Eladó családi ház
Eladó családi ház

Gáborján

5.5 M Ft
2 szoba
68 m2
Eladó családi ház
Eladó családi ház

Zengővárkony

30.999 M Ft
3 szoba
87 m2
Eladó családi ház
Eladó családi ház

Törtel

74.9 M Ft
6 szoba
143 m2
Eladó családi ház
Eladó családi ház

Berkesd

39.5 M Ft
5 szoba
175 m2
Eladó családi ház
Eladó családi ház

Murony

19.9 M Ft
3 szoba
94 m2