Kedves Felhasználónk! Rendszerfrissítés miatt az oldalunk 2026. február 9-én 12 órától várhatóan 20 óráig nem lesz elérhető. Köszönjük megértésed!
BAM Living

Eladó családi ház
Érd

+ 3 kép 1/6
129 900 000 Ft129.9 M Ft 895 862 Ft/m2
5 szoba
145 m2
építés éve:2025

Részletes adatok

Telekméret: 670 m2
Fűtés: Egyéb
Energetikai besorolás: Nem adta meg a hirdető

Az OTP Bank lakáshitel ajánlataFizetett hirdetés

+36 30 942
Szekeres Tünde
OTPIP I. kerület Zsolt utcai iroda

Érdekel az OTP Bank kedvezményes lakáshitel ajánlata? *

* A kérdésre „Igen” válasz bejelölése esetén, az „Üzenet küldése” gombra kattintva kijelentem, hogy az OTP Bank Nyrt. Adatkezelési tájékoztatójának tartalmát megismertem és tudomásul vettem.

Eladó családi ház leírása

Kiváló lokáció, magas szintű kivitelezés!
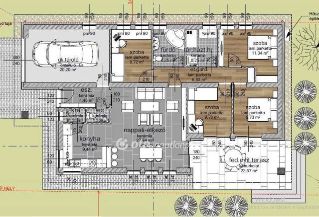
Dombosváros központjában, csendes, aszfaltozott utcában, igényes házak környezetében eladó egy újépítésű, 145m2-es, nappali + 4 hálószobás, garázsos, fedett teraszos, önálló családi ház. A lakóterület mérete: 122,59m2 + 22,57m2 fedett és nyitott terasz.
A projekt 2025. év végén indul, várható átadás 2026. ősz. A házhoz tartozó telek területe 670m2, önálló helyrajzi számon.
A családi ház falazata tégla lesz, szigetelve, a műanyag nyílászárók 3 rétegű üvegezéssel lesznek ellátva. Modern, hőszivattyús fűtésrendszer, a tetőn cserépfedés kerül megvalósításra. A belső burkolatok, ajtók választhatóak, de a projekt jelen szakaszában még a belső elosztás végső kialakításába is beleszólhat az új tulajdonos!
A tervek alapján a családi ház helyiségei: amerikai konyhás-étkezős nappali + 4 hálószoba, fürdőszoba és háztartási helyiség, vendégmosdó, tágas, fedett terasz, valamint zárt garázs.
Az infrastruktúra kiváló, közelben iskola, óvoda, orvosi rendelő, bevásárlási lehetőségek, a buszmegálló 5 perc sétával elérhető, ahonnan 20 perc alatt beér Budapestre az Etele térre! Autóval az M0, M1, M7 autópálya 10 perc alatt elérhető.
Az OTP Bankcsoport teljes körű ügyintézéssel áll az eladók és a vevők rendelkezésére! A kínálatunkból választott ingatlan finanszírozásához kedvezményes hitelkonstrukciókat kínálunk. Az adásvételi szerződés megkötéséhez igény szerint megbízható ügyvédi közreműködést biztosítunk, és segítséget nyújtunk az adásvételhez kapcsolódó ügyek intézéséhez.

Referencia szám: M302788

Hirdetés feltöltve: 2025. 11. 28. Utoljára módosítva: 2026. 01. 13.

5 szobás családi házak ára Érden

Ebből az összehasonlításból megtudhatod, hogyan viszonyul a lakás ára a környékbeli családi házak átlagos árához. Ez nem azt jelenti, hogy ennyivel olcsóbb vagy drágább, mint amennyit a lakás ér, hanem hogy ennyivel tér el a környékbeli átlagtól.

Ennek a m² ára
Érd m² ár
896 e Ft
897 e Ft 0%
Ennek az ára
Érd átlagár
129.9 M Ft m Ft
175.1 m Ft 26%

Az ingatlan elhelyezkedése

Cím: Érd

Eladó családi házak a környékről

Eladó családi ház
Eladó családi ház

Kerepes

81.99 M Ft
5 szoba
102 m2
Eladó családi ház
Eladó családi ház

Érd, Érdliget - Kutyavár, Érd-liget

230 M Ft
7 szoba
280 m2
Eladó családi ház
Eladó családi ház

Érd

67 M Ft
3 + 1 szoba
100 m2
Eladó családi ház
Eladó családi ház

Budakeszi

130 M Ft
5 szoba
30 m2
Eladó családi ház
Eladó családi ház

Tápiószentmárton

16.5 M Ft
3 szoba
50 m2
Eladó családi ház
Eladó családi ház

Érd

164.9 M Ft
5 szoba
192 m2
Eladó családi ház
Eladó családi ház

Érd

150 M Ft
3 szoba
159 m2
Eladó családi ház
Eladó családi ház

Érd

250 M Ft
6 szoba
210 m2
Eladó családi ház
Eladó családi ház

Tápiószele

37.9 M Ft
4 szoba
141 m2
Eladó családi ház
Eladó családi ház

Tápiógyörgye

19.9 M Ft
3 szoba
65 m2
Eladó családi ház
Eladó családi ház

Budaörs

400 M Ft
12 szoba
583 m2
Eladó családi ház
Eladó családi ház

Érd

160 M Ft
7 szoba
250 m2
Eladó családi ház
Eladó családi ház

Érd

120 M Ft
5 szoba
190 m2
Eladó családi ház
Eladó családi ház

Érd

129 M Ft
5 szoba
175 m2
Eladó családi ház
Eladó családi ház

Budakeszi, Budakeszi kertváros

140 M Ft
2 szoba
55 m2
Eladó családi ház
Eladó családi ház

Nagykáta

130 M Ft
3 szoba
203 m2
Eladó családi ház
Eladó családi ház

Budakeszi, Makkosmária

100 M Ft
1 szoba
10 m2
Eladó családi ház
Eladó családi ház

Érd

224 M Ft
5 szoba
171 m2
Eladó családi ház
Eladó családi ház

Érd

79.9 M Ft
5 szoba
152 m2
Eladó családi ház
Eladó családi ház

Érd, Érdliget - Kutyavár, Liliom utca

300 M Ft
3 szoba
184 m2
Eladó családi ház
Eladó családi ház

Érd

99.9 M Ft
4 szoba
98 m2
Eladó családi ház
Eladó családi ház

Remeteszőlős

399.9 M Ft
5 + 2 szoba
260 m2
Eladó családi ház
Eladó családi ház

Kerepes

199 M Ft
6 szoba
360 m2
Eladó családi ház
Eladó családi ház

Érd

115 M Ft
122 m2

Falusi CSOK ingatlanok

Eladó családi ház
Eladó családi ház

Gátér, Dózsa György utca 43

21.62 M Ft
1 + 1 szoba
153 m2
Eladó panellakás
Eladó panellakás

Pétfürdő

49.9 M Ft
3 szoba
71 m2
Eladó családi ház
Eladó családi ház

Iklad

70 M Ft
5 szoba
150 m2
Eladó családi ház
Eladó családi ház

Illocska

15 M Ft
2 szoba
105 m2
Eladó családi ház
Eladó családi ház

Kenyeri

21.8 M Ft
2 szoba
75 m2
Eladó téglalakás
Eladó téglalakás

Balatonszemes

119.9 M Ft
2 szoba
81 m2
Eladó családi ház
Eladó családi ház

Kaposgyarmat

695 M Ft
6 szoba
610 m2
Eladó családi ház
Eladó családi ház

Bakonyszentkirály

99.99 M Ft
5 szoba
126 m2