Seven Pearl

Eladó családi ház
Érd

+ 17 kép 1/20
530 000 000 Ft530 M Ft 1 514 286 Ft/m2
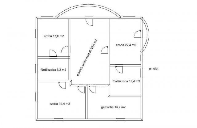
6 szoba
350 m2
építés éve:1998

Részletes adatok

Állapot: Felújított
Telekméret: 1604 m2
Fűtés: Egyéb
Energetikai besorolás: Nem adta meg a hirdető

Az OTP Bank lakáshitel ajánlataFizetett hirdetés

+36 20 393
Pásztor Gabriella
OTPip - Érd Bajcsy-Zsilinszky út 160 - OTP Ingatlanpont Iroda

Érdekel az OTP Bank kedvezményes lakáshitel ajánlata? *

* A kérdésre „Igen” válasz bejelölése esetén, az „Üzenet küldése” gombra kattintva kijelentem, hogy az OTP Bank Nyrt. Adatkezelési tájékoztatójának tartalmát megismertem és tudomásul vettem.

Eladó családi ház leírása

Érden eladó luxus, energiahatékony családi ház fűthető medencével és 0 Ft áramszámlával

Eladásra kínálok Érden, aszfaltos, rendezett utcában egy kiváló műszaki és esztétikai állapotban lévő, prémium felszereltségű, déli tájolású családi házat, amely minden részletében a minőséget képviseli. Az ingatlan egy ütemben épült 1998-ban, azóta folyamatosan karbantartott és korszerűsített: a külső felújítás 15 éve, a belső 5 éve történt.

Főbb jellemzők:
Falazat: 38 cm porotherm tégla + 15 cm hungarocell szigetelés
Falvastagság: kb. 62 cm (tégla + vakolat + kőburkolat)
Tetőszigetelés: kőzetgyapot
Kémény: bélelt
Tájolás: déli világos, napfényes terek
Közművek: minden elérhető (víz, villany, gáz, csatorna)
Napelem rendszer: 14 MWh/év teljesítménnyel az áramszámla gyakorlatilag nulla
Fűtés: gázkazán, háromoldalú kandalló és inverteres klíma többzónás, energiatakarékos rendszer
Ablakok: gáztöltésű, hőszigetelt üvegek

Belső tér és minőség:
A belső terek kiemelkedő minőségű anyagokkal és berendezésekkel készültek:
Padlóburkolat: Hafro tölgyfa parketta
Beltéri ajtók: Westag német márka
Konyha: Sykora prémium konyhabútor beépített gépekkel
Fürdőszobák: Porcelanosa és Villeroy & Boch burkolatok, szaniterek és bútorok
Az épület energiatudatos tervezésének és a modern technológiáknak köszönhetően az éves energiaköltség rendkívül alacsony, miközben a fűtés és hűtés teljes mértékben komfortos.

Külső és kert:
A ház körbejárható telken helyezkedik el, előkerttel, nyílt és zárt kocsibeállóval, valamint Biohort osztrák lemez tárolóval (35 év garancia).
A gondozott kert fűthető, fedett medencével, automata öntözőrendszerrel és robotfűnyíróval felszerelt.
A biztonságról infrasorompós riasztórendszer gondoskodik, míg a kerti világítás és elektromos csatlakozók a kényelmet és a hangulatot szolgálják.
A telken gyümölcsfák (cseresznye, szilva) is találhatók.

Környezet és elhelyezkedés:
Az ingatlan Érd egyik legkedveltebb utcájában található, csendes, családi házas övezetben, mégis minden fontos szolgáltatás könnyen elérhető.
Oktatás: több iskola, óvoda és bölcsőde 5,10 percen belül
Bevásárlás: közeli Interspar, Lidl, Aldi, Tesco, helyi pékségek és piac
Sport és szabadidő: edzőtermek, futópályák, teniszpályák, parkok és játszóterek a közelben
Tömegközlekedés: buszmegálló és vasútállomás pár percre, az M7 autópálya gyorsan elérhető, Budapest 20 perc alatt megközelíthető

Ez az ingatlan ideális választás azok számára, akik modern, időtálló és energiatakarékos otthont keresnek csendes, biztonságos környezetben, prémium minőségben.
A ház azonnal költözhető, teljes dokumentációval, rendezett jogi háttérrel rendelkezik.

Megtekintés előzetes egyeztetéssel lehetséges.
Ne hagyja ki ezt a különleges lehetőséget ez a ház valóban egyedülálló Érd kínálatában! M315635

Hirdetés feltöltve: 2025. 11. 13.

Az ingatlan elhelyezkedése

Cím: Érd

Eladó családi házak a környékről

Eladó családi ház
Eladó családi ház

Tápiószentmárton

7.9 M Ft
2 + 1 szoba
86 m2
Eladó családi ház
Eladó családi ház

Érd

129 M Ft
4 szoba
150 m2
Eladó családi ház
Eladó családi ház

Érd

120 M Ft
5 szoba
190 m2
Eladó családi ház
Eladó családi ház

Érd

249.99 M Ft
6 szoba
210 m2
Eladó családi ház
Eladó családi ház

Érd, Érdliget - Kutyavár, Érd-liget

230 M Ft
7 szoba
280 m2
Eladó családi ház
Eladó családi ház

Érd

164.9 M Ft
5 szoba
192 m2
Eladó családi ház
Eladó családi ház

Érd, Érdliget - Kutyavár, 2030.ÉRDLIGET, KÖVIRÓZSA

649 M Ft
6 szoba
380 m2
Eladó családi ház
Eladó családi ház

Érd

189.7 M Ft
5 szoba
204 m2
Eladó családi ház
Eladó családi ház

Tápiószentmárton

48 M Ft
5 szoba
180 m2
Eladó családi ház
Eladó családi ház

Budakeszi, Budakeszi kertváros

229 M Ft
10 szoba
450 m2
Eladó családi ház
Eladó családi ház

Érd

164.9 M Ft
5 szoba
192 m2
Eladó családi ház
Eladó családi ház

Kerepes

81.99 M Ft
5 szoba
102 m2
Eladó családi ház
Eladó családi ház

Érd

149.9 M Ft
7 szoba
280 m2
Eladó családi ház
Eladó családi ház

Érd

99.9 M Ft
4 szoba
98 m2
Eladó családi ház
Eladó családi ház

Érd

198 M Ft
5 szoba
216 m2
Eladó családi ház
Eladó családi ház

Érd

89.9 M Ft
4 szoba
130 m2
Eladó családi ház
Eladó családi ház

Pécel, Reményik Sándor utca

296 M Ft
6 szoba
396 m2
Eladó családi ház
Eladó családi ház

Érd

95 M Ft
5 szoba
226 m2
Eladó családi ház
Eladó családi ház

Érd

224 M Ft
5 szoba
171 m2
Eladó családi ház
Eladó családi ház

Tápiógyörgye

19.9 M Ft
3 szoba
65 m2
Eladó családi ház
Eladó családi ház

Érd

230 M Ft
5 szoba
175 m2
Eladó családi ház
Eladó családi ház

Érd

179.9 M Ft
8 szoba
236 m2
Eladó családi ház
Eladó családi ház

Budakeszi

130 M Ft
5 szoba
30 m2
Eladó családi ház
Eladó családi ház

Sződ, Rátóti utca

149.99 M Ft
11 szoba
270 m2

Falusi CSOK ingatlanok

Eladó családi ház
Eladó családi ház

Devecser

64.9 M Ft
5 szoba
180 m2
Eladó családi ház
Eladó családi ház

Seregélyes

75 M Ft
6 szoba
160 m2
Eladó családi ház
Eladó családi ház

Kaposgyarmat

5.9 M Ft
1 szoba
40 m2
Eladó családi ház
Eladó családi ház

Szeremle

18 M Ft
2 szoba
87 m2
Eladó családi ház
Eladó családi ház

Nyékládháza, Mátyás király utca

36.9 M Ft
2 szoba
88 m2
Eladó családi ház
Eladó családi ház

Alattyán

45 M Ft
4 + 1 szoba
186 m2
Eladó családi ház
Eladó családi ház

Tápióság

12.9 M Ft
1 szoba
50 m2
Eladó családi ház
Eladó családi ház

Pécsvárad

140 M Ft
3 szoba
95 m2