Aerogate Homes

Eladó családi ház
Érd

+ 15 kép 1/18
64 900 000 Ft64.9 M Ft 865 333 Ft/m2
3 szoba
75 m2
építés éve:1980

Részletes adatok

Állapot: Átlagos
Telekméret: 535 m2
Fűtés: Gázkonvektor
Parkolás: Garázs
Energetikai besorolás: Nem adta meg a hirdető

Az OTP Bank lakáshitel ajánlataFizetett hirdetés

+36 70 370
Dora Kriszta
referens

Érdekel az OTP Bank kedvezményes lakáshitel ajánlata? *

* A kérdésre „Igen” válasz bejelölése esetén, az „Üzenet küldése” gombra kattintva kijelentem, hogy az OTP Bank Nyrt. Adatkezelési tájékoztatójának tartalmát megismertem és tudomásul vettem.

Eladó családi ház leírása

--- ÉRDLIGETEN, CSENDES MELLÉK UTCÁBAN, VASUTHOZ, BUSZOKHOZ ÉS MINDENHEZ IS KÖZEL, JÓ ADOTTSÁGÚ TELEK, FELUJITANDÓ HÁZZAL ---

AZ INGATLAN ÉRDLIGET VASUTÁLLOMÁSTÓL PÁR UTCÁNYIRA TALÁLHATÓ, CSENDES MELLÉK UTCÁBAN.

A telek sík, 20 méteres utcafrontja van.

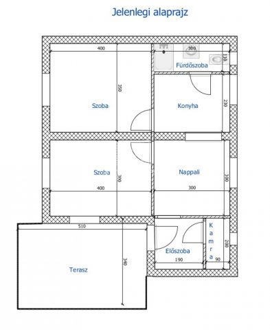
A telken található egy 55 nm-s tégla ház terasszal és egy különálló 20 nm-es, szintén tégla építésű, különálló épület.

A HÁZ elrendezése 2 szoba, konyha, étkező, fürdőszoba, előszoba.
Fűtése gázkonvektorral és kandallóval megoldott.

A KISHÁZAT nyárikonyhaként használták. Ide is be vannak vezetve a közművek. Ez az épület egy helyiségből és egy toalettből áll.
Térképen mindkét épület fel van tüntetve.

A ház és a kisház is szerkezetileg stabil, nincsenek repedések, felázás vagy penészesedés.

A telek összközműves, víz, gáz, csatorna, villany bevezetve.
A kertben fúrt kút is van.

A TELEK Vt-1/l ÖVEZETBEN TALÁLHATÓ.
Ha nagyobb ingatlanra vágyik, a meglévő ház elbontható, vagy bővíthető.

Vt-1/l övezeti besorolású telkek:
- beépítési módja: szabadon álló
- legnagyobb beépíthetősége: 50 %
- zöldfelületi aránya: 30 %
- homlokzat magassága: 7,5 m

A jelenleg érvényben lévő építési korlátozások miatt, csak önálló családi ház építhető rá, vagy a jelenlegi bővíthető.

AZ INGATLAN IRÁNYÁRA 64,9 M Ft

AMENNYIBEN JÓ HELYEN LÉVŐ TELKET KERES, EZ AZ.

További részletekkel, megtekintéssel kapcsolatban, keressen bizalommal!

AMENNYIBEN NEM RENDELKEZIK A TELJES VÉTELÁRRAL, segítünk Önnek megtalálni a legjobb megoldást!
BANKFÜGGETLEN hitelcentrumunk minden elérhető bank és hitelintézet ajánlatát versenyezteti az Ön kedvéért, ráadásul díjmentesen. Önnek nincs más dolga, mint elbeszélgetni munkatársunkkal, aki a hallott információk alapján versenyre hívja a bankokat, hogy Ön hosszú távon is a legjobb konstrukciót kaphassa. A legjobb ajánlatokból végül Ön választhatja ki a nyertest. Munkatársaink sokéves szakmai tapasztalattal várják Önt, előre egyeztetve akár a normál munkaidő után is. ...TOVÁBBI, TÖBBEZRES INGATLAN KÍNÁLAT: www.gdn-ingatlan.hu - GDN azonosító: 382914

Hirdetés feltöltve: 2025. 05. 30. Utoljára módosítva: 2025. 12. 22.

3 szobás családi házak ára Érden

Ebből az összehasonlításból megtudhatod, hogyan viszonyul a lakás ára a környékbeli családi házak átlagos árához. Ez nem azt jelenti, hogy ennyivel olcsóbb vagy drágább, mint amennyit a lakás ér, hanem hogy ennyivel tér el a környékbeli átlagtól.

Ennek a m² ára
Érd m² ár
865 e Ft
937 e Ft 8%
Ennek az ára
Érd átlagár
64.9 M Ft m Ft
103.1 m Ft 37%

Az ingatlan elhelyezkedése

Cím: Érd

Eladó családi házak a környékről

Eladó családi ház
Eladó családi ház

Dunavarsány

69.9 M Ft
3 + 1 szoba
140 m2
Eladó családi ház
Eladó családi ház

Budaörs, Odvshegy utca

268.9 M Ft
5 szoba
235 m2
Eladó családi ház
Eladó családi ház

Budakeszi

130 M Ft
5 szoba
30 m2
Eladó családi ház
Eladó családi ház

Leányfalu

237 M Ft
9 szoba
800 m2
Eladó családi ház
Eladó családi ház

Budaörs, Városközpont utca

119.5 M Ft
5 + 1 szoba
140 m2
Eladó családi ház
Eladó családi ház

Tápiószentmárton

7.9 M Ft
2 + 1 szoba
86 m2
Eladó családi ház
Eladó családi ház

Tápiógyörgye

19.9 M Ft
3 szoba
65 m2
Eladó családi ház
Eladó családi ház

Érd, Érdliget - Kutyavár, Érd-liget

230 M Ft
7 szoba
280 m2
Eladó családi ház
Eladó családi ház

Érd

99.9 M Ft
4 szoba
98 m2
Eladó családi ház
Eladó családi ház

Budakeszi, Budakeszi kertváros

140 M Ft
2 szoba
55 m2
Eladó családi ház
Eladó családi ház

Érd

69.9 M Ft
4 szoba
90 m2
Eladó családi ház
Eladó családi ház

Érd

189.7 M Ft
5 szoba
204 m2
Eladó családi ház
Eladó családi ház

Dunakeszi

250 M Ft
4 szoba
180 m2
Eladó családi ház
Eladó családi ház

Érd, Cserhalmi és Csobánci utca között utca

98 M Ft
5 + 2 szoba
200 m2
Eladó családi ház
Eladó családi ház

Tápiószentmárton

48 M Ft
5 szoba
180 m2
Eladó családi ház
Eladó családi ház

Érd

198 M Ft
5 szoba
216 m2
Eladó családi ház
Eladó családi ház

Kerepes

199 M Ft
6 szoba
360 m2
Eladó családi ház
Eladó családi ház

Tápiószele

32.9 M Ft
4 szoba
200 m2
Eladó családi ház
Eladó családi ház

Érd, Érdliget - Kutyavár, 2030.ÉRDLIGET, KÖVIRÓZSA

649 M Ft
6 szoba
380 m2
Eladó családi ház
Eladó családi ház

Érd

95 M Ft
5 szoba
226 m2
Eladó családi ház
Eladó családi ház

Érd

115 M Ft
122 m2
Eladó családi ház
Eladó családi ház

Tápiószele

37.9 M Ft
4 szoba
141 m2
Eladó családi ház
Eladó családi ház

Budakeszi, Budakeszi kertváros

229 M Ft
10 szoba
450 m2
Eladó családi ház
Eladó családi ház

Veresegyház, Salamon utca

119.9 M Ft
4 szoba
160 m2

Falusi CSOK ingatlanok

Eladó családi ház
Eladó családi ház

Nyáregyháza

63.9 M Ft
1 + 1 szoba
79 m2
Eladó családi ház
Eladó családi ház

Kamut

29 M Ft
3 szoba
100 m2
Eladó családi ház
Eladó családi ház

Gyulaj, Árpád u

9.9 M Ft
2 szoba
69 m2
Eladó családi ház
Eladó családi ház

Vásárosdombó

14.99 M Ft
2 szoba
69 m2
Eladó családi ház
Eladó családi ház

Mályi

84.9 M Ft
4 szoba
100 m2
Eladó téglalakás
Eladó téglalakás

Nyáregyháza

61.5 M Ft
4 szoba
91 m2
Eladó ikerház
Eladó ikerház

Balatonakali

165 M Ft
4 szoba
138 m2
Eladó családi ház
Eladó családi ház

Fülöpszállás

299 M Ft
14 + 5 szoba
680 m2