Oasis Residence

Eladó családi ház
Ercsi

+ 17 kép 1/20
215 000 000 Ft215 M Ft 1 137 566 Ft/m2
4 szoba
189 m²
építés éve:1985

Részletes adatok

Állapot: Felújított
Telekméret: 1308 m2
Fűtés: Gázkazán
Energetikai besorolás: Nem adta meg a hirdető

Az OTP Bank lakáshitel ajánlataFizetett hirdetés

+36 70 599
Marczi Aletta
Szigetszentmiklós OTP Ip

Érdekel az OTP Bank kedvezményes lakáshitel ajánlata? *

* A kérdésre „Igen” válasz bejelölése esetén, az „Üzenet küldése” gombra kattintva kijelentem, hogy az OTP Bank Nyrt. Adatkezelési tájékoztatójának tartalmát megismertem és tudomásul vettem.

Eladó családi ház leírása

BEFEKTETŐK ÁLMA ERCSIBEN, FELÚJÍTOTT CSALÁDI HÁZ + 2 ÜZLET + HAVI 500.000 FT PASSZÍV BEVÉTEL

Ercsi frekventált, főút melletti részén eladó egy kivételes adottságú, többfunkciós ingatlanegyüttes, amely azonnal költözhető családi otthon és stabil, kiszámítható hozamot biztosító befektetés egyben.

A telken felújított tégla családi ház, két külön bejáratú, működő üzlethelyiség, több garázs és melléképület található. A teljes ingatlan a jelenlegi bérlők által nettó kb. 500.000 Ft passzív havi bevételt termel, mindezt hosszú távra tervezhető, stabil működéssel.

AZ INGATLAN FŐBB ADATAI:
Telek mérete: 1308 m2
Építés éve: 1985
Felújítás éve: 5 éve teljes körűen
Szerkezet: 30 cm vastag tégla
Szigetelés: külső hungarocell
Tető: jó állapotú, cseréptető, szigetelt
Nyílászárók: újszerű, hőszigetelt
Kémény: kiváló állapotú
Közművek: víz, villany, gáz, csatorna bevezetve
Napelem: igen, rezsiköltség minimális
Tájolás: délnyugati napfényes ház
Beázás, penész: nincs
Állapot: 1 hónapon belül költözhető

A PASSZÍV BEVÉTEL RÉSZLETEZÉSE, HAVI 500.000 Ft NETTÓ
1. Működő nemzeti dohánybolt
Konténerből épített, hivatalos működési engedéllyel
Stabil törzsvásárlói kör
Jelentős havonta termelt tiszta nyereség
Főút közelsége miatt folyamatos forgalom

2. Különálló kisbolt saját parkolóval
Jelenleg bérbe adva
Alacsony rezsi, magas bérleti díjpotenciál
Teljesen különálló működés
Aktív bérlő, folyamatos havi bevétel
Az ingatlan így azonnal hozamot termel, a vevő már az első naptól kezdve élvezheti a bevételt.

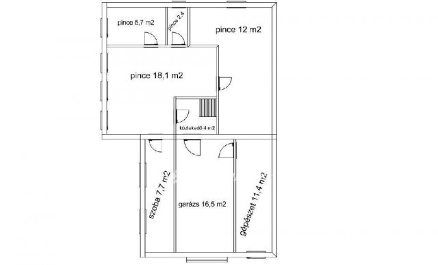
A HÁZ ÉS MELLÉKÉPÜLETEK
Felújított, szuterén/hobbitér
78 m2-es hátsó garázs, 3 db elektromos távirányítós kapuval
20 m2-es első garázs
27 m2-es fedett terasz, beépített kinti konyhával
Rendezett kert: füvesített, gyümölcsfákkal

KÖRNYEZETI ELŐNYÖK
Nincs nagyfeszültség, vonat, ipari zajforrás, szemétégető vagy szennyvíztelep a közelben
Aszfaltos utca
Több parkolóterület az üzletek és a ház előtt
Családi házas, biztonságos környezet
Óvoda, iskola, boltok, gyógyszertár, pékség, buszmegálló néhány perc sétára
Budapest kb. 25, 30 perc autóval

JOGI ÉS ADMINISZTRATÍV ADATOK
A tulajdoni lap szerint: kivett lakóház, udvar, gazdasági épület
Telekalakítási eljárás megindítva, értéknövelő fejlesztési lehetőség
Két tulajdonos, teljes egyetértéssel értékesítik
Építési engedélyek rendben
Birtokba adás: szerződéskötéstől számított 1 hónap
Az ingatlan nem terhelt problémás jogokkal (normál jelzálog szerepel, amely adásvétellel rendezhető)

MIÉRT PÁRATLAN EZ AZ INGATLAN?
Felújított, újszerű állapotú családi ház
Két működő üzlethelyiség már meglévő bérlőkkel
Stabil, nettó 500.000 Ft/hó passzív jövedelem
Napelem rendszer, rezsicsökkentett fenntartás
Nagy telek, három garázs, melléképületek
Frekventált, mégis csendes környék
Ideális befektetőknek vagy nagycsaládosoknak
Azonnal költözhető / azonnal hozamot termel.

Hirdetés feltöltve: 2026. 04. 09. Utoljára módosítva: 2026. 04. 09.

4 szobás családi házak ára Ercsiben

Ebből az összehasonlításból megtudhatod, hogyan viszonyul a lakás ára a környékbeli családi házak átlagos árához. Ez nem azt jelenti, hogy ennyivel olcsóbb vagy drágább, mint amennyit a lakás ér, hanem hogy ennyivel tér el a környékbeli átlagtól.

Ennek a m² ára
Ercsi m² ár
1138 e Ft
688 e Ft -65%
Ennek az ára
Ercsi átlagár
215 M Ft m Ft
93.7 m Ft -129%

Az ingatlan elhelyezkedése

Cím: Ercsi

Eladó családi házak a környékről

Ercsi, Petőfi Sándor utca 44. 2. B
Eladó családi ház

Ercsi

26.92 M Ft
2 szoba
85 m²
Velence
Eladó családi ház

Velence

42.9 M Ft
1 szoba
40 m²
Mór
Eladó családi ház

Mór

110 M Ft
12 szoba
340 m²
Ercsi
Eladó családi ház

Ercsi

89.95 M Ft
5 + 2 szoba
220 m²
Velence
Eladó családi ház

Velence

80 M Ft
6 szoba
200 m²
Ercsi
Eladó családi ház

Ercsi

105 M Ft
6 szoba
350 m²
Adony
Eladó családi ház

Adony

8 M Ft
2 szoba
30 m²
Ercsi
Eladó családi ház

Ercsi

24.9 M Ft
3 szoba
70 m²
Csákvár, Kossuth utca
Eladó családi ház

Csákvár

76 M Ft
1 szoba
181 m²
Szabadbattyán
Eladó családi ház

Szabadbattyán

357.518 M Ft
9 + 2 szoba
1053 m²
Felcsút, Rákóczi Ferenc utca
Eladó családi ház

Felcsút

32 M Ft
2 + 1 szoba
55 m²
Iváncsa, Táncsics Mihály utca
Eladó családi ház

Iváncsa

86 M Ft
4 szoba
120 m²
Lepsény, Róka sétány
Eladó családi ház

Lepsény

64.9 M Ft
5 + 1 szoba
203 m²
Tabajd
Eladó családi ház

Tabajd

22 M Ft
3 szoba
75 m²
Ercsi
Eladó családi ház

Ercsi

78.9 M Ft
6 szoba
151 m²
Kulcs
Eladó családi ház

Kulcs

180 M Ft
8 szoba
167 m²
Székesfehérvár
Eladó családi ház

Székesfehérvár

59 M Ft
3 szoba
100 m²
Etyek
Eladó családi ház

Etyek

160 M Ft
6 szoba
228 m²
Ercsi
Eladó családi ház

Ercsi

30.9 M Ft
2 szoba
76 m²
Pusztaszabolcs
Eladó családi ház

Pusztaszabolcs

143.9 M Ft
4 szoba
149 m²
Ercsi
Eladó családi ház

Ercsi

137 M Ft
4 szoba
145 m²
Gánt, Gánti út
Eladó családi ház

Gánt

29.9 M Ft
2 + 1 szoba
40 m²
Ercsi, Árpád utca 8
Eladó családi ház

Ercsi

59.9 M Ft
4 + 2 szoba
170 m²
Ercsi
Eladó családi ház

Ercsi

143 M Ft
7 + 1 szoba
170 m²

Falusi CSOK ingatlanok

Izsófalva
Eladó családi ház

Izsófalva

22.9 M Ft
3 szoba
105 m²
Tákos
Eladó családi ház

Tákos

20 M Ft
3 szoba
84 m²
Elek
Eladó családi ház

Elek

18 M Ft
4 szoba
180 m²
Bag
Eladó családi ház

Bag

16.9 M Ft
6 szoba
160 m²
Balatonkeresztúr, Kanizsai utca
Eladó ikerház

Balatonkeresztúr

32.9 M Ft
3 szoba
30 m²
Tápiószőlős
Eladó családi ház

Tápiószőlős

29.8 M Ft
3 szoba
75 m²
Sződ
Eladó családi ház

Sződ

116 M Ft
5 szoba
136 m²
Újlengyel
Eladó családi ház

Újlengyel

110 M Ft
4 szoba
121 m²