Metrodom

Eladó családi ház
Eger

149 000 000 Ft149 M Ft 1 211 382 Ft/m2
3 szoba
123 m2
építés éve:1950

Részletes adatok

Állapot: Felújított
Telekméret: 164 m2
Fűtés: Egyéb
Energetikai besorolás: Nem adta meg a hirdető

Az OTP Bank lakáshitel ajánlataFizetett hirdetés

+36 20 849
Hoffmann-né Budai Anna Mária
referens

Érdekel az OTP Bank kedvezményes lakáshitel ajánlata? *

* A kérdésre „Igen” válasz bejelölése esetén, az „Üzenet küldése” gombra kattintva kijelentem, hogy az OTP Bank Nyrt. Adatkezelési tájékoztatójának tartalmát megismertem és tudomásul vettem.

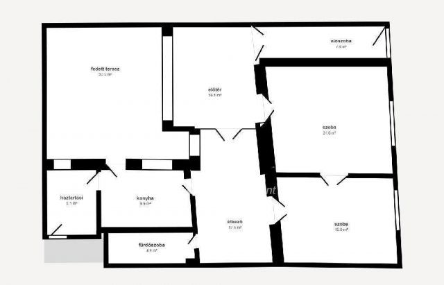
Eladó családi ház leírása

Heves vármegye, Eger belvárosnak közelében egy 140 m2-es elegáns és modern kényelmi megoldásokkal felszerelt családi ház eladó.
Az ingatlan a Deák Ferenc utcában található, rendezett környezetben. A házban előszoba, fényes nappali, 2 tágas hálószoba, étkező, konyha, zuhanyzós fürdőszoba WC-vel, valamint egy praktikus házimunka helyiség található, ahonnan a pince is megközelíthető. Az 50 m2-es, fűthető pince kis ablakkal rendelkezik, jelenleg klubszobaként van kialakítva. A házhoz tartozik továbbá egy 60 m2-es fedett terasz, amely ideális szabadtéri pihenésre és vendégfogadásra. A fürdőszoba járólappal, a többi helyiség pedig laminált padlóval burkolt. Az otthon melegét hőszivattyús rendszer biztosítja, alternatívaként gáz-cirkó és kályha is rendelkezésre áll.

Az ingatlan néhány éve jelentős felújításon esett át: hőszivattyús fűtési-hűtési rendszer kiépítése, 10 kW-os napelemrendszer telepítése a tetőre, a teljes villamos hálózat korszerűsítése, elektromos redőnyök, kamera-, riasztó- és beléptetőrendszer telepítése, az eredeti fa ablakokat felújítása, hőszigetelt üvegezéssel.

A ház előtt saját, 4-5 autó számára kényelmes parkoló áll rendelkezésre.
Az ingatlan minden részlete átgondolt, jól megtervezett és magas minőséget képvisel. Nemcsak családi háznak, de vendégháznak, elegáns orvosi rendelőnek vagy irodának is kiváló választás.
A ház jelenlegi berendezéssel együtt eladó, így akár azonnal költözhető. A bútorzat a vételár részét képezi, de igény esetén megállapodás tárgyát képezheti.
További információért hívjon bizalommal, akár hétvégén is. Ügyfeleink számára igény esetén kedvező hitellehetőséget, megbízható ügyvédi közreműködést és irodai hátteret biztosítunk a szerződéskötéshez. Kérem, érdeklődéskor hivatkozzon az M317855 számra.

Referencia szám: M317855-ZE

Hirdetés feltöltve: 2026. 01. 14. Utoljára módosítva: 2026. 01. 14.

3 szobás családi házak ára Egerben

Ebből az összehasonlításból megtudhatod, hogyan viszonyul a lakás ára a környékbeli családi házak átlagos árához. Ez nem azt jelenti, hogy ennyivel olcsóbb vagy drágább, mint amennyit a lakás ér, hanem hogy ennyivel tér el a környékbeli átlagtól.

Ennek a m² ára
Eger m² ár
1211 e Ft
682 e Ft -78%
Ennek az ára
Eger átlagár
149 M Ft m Ft
84.9 m Ft -76%

Az ingatlan elhelyezkedése

Cím: Eger

Eladó családi házak a környékről

Eladó családi ház
Eladó családi ház

Eger

109 M Ft
4 szoba
100 m2
Eladó családi ház
Eladó családi ház

Eger

79 M Ft
6 + 2 szoba
260 m2
Eladó családi ház
Eladó családi ház

Pétervására

4.5 M Ft
3 szoba
85 m2
Eladó családi ház
Eladó családi ház

Eger

249 M Ft
8 szoba
500 m2
Eladó családi ház
Eladó családi ház

Eger

115 M Ft
4 szoba
130 m2
Eladó családi ház
Eladó családi ház

Eger

89.9 M Ft
4 szoba
149 m2
Eladó családi ház
Eladó családi ház

Recsk

21 M Ft
4 szoba
220 m2
Eladó családi ház
Eladó családi ház

Eger

145 M Ft
5 szoba
230 m2
Eladó családi ház
Eladó családi ház

Eger, Mátyás király utca

74.9 M Ft
6 szoba
211 m2
Eladó családi ház
Eladó családi ház

Eger

83 M Ft
3 szoba
120 m2
Eladó családi ház
Eladó családi ház

Eger

440 M Ft
5 szoba
600 m2
Eladó családi ház
Eladó családi ház

Eger

58 M Ft
4 szoba
77 m2
Eladó családi ház
Eladó családi ház

Hatvan

97.95 M Ft
5 + 2 szoba
253 m2
Eladó családi ház
Eladó családi ház

Mátraderecske

74 M Ft
4 szoba
200 m2
Eladó családi ház
Eladó családi ház

Eger

150 M Ft
9 szoba
280 m2
Eladó családi ház
Eladó családi ház

Szarvaskő

230 M Ft
5 szoba
424 m2
Eladó családi ház
Eladó családi ház

Eger

440 M Ft
5 szoba
600 m2
Eladó családi ház
Eladó családi ház

Bükkszék

78.9 M Ft
2 + 1 szoba
160 m2
Eladó családi ház
Eladó családi ház

Ostoros

94.5 M Ft
3 szoba
96 m2
Eladó családi ház
Eladó családi ház

Eger

69 M Ft
3 szoba
120 m2
Eladó családi ház
Eladó családi ház

Eger

155 M Ft
5 + 1 szoba
260 m2
Eladó családi ház
Eladó családi ház

Eger

55.9 M Ft
2 szoba
105 m2
Eladó családi ház
Eladó családi ház

Andornaktálya

42 M Ft
4 szoba
116 m2
Eladó családi ház
Eladó családi ház

Eger

85.9 M Ft
5 + 1 szoba
140 m2

Falusi CSOK ingatlanok

Eladó családi ház
Eladó családi ház

Balatonszárszó

178 M Ft
6 szoba
260 m2
Eladó családi ház
Eladó családi ház

Csurgó

23.5 M Ft
4 szoba
80 m2
Eladó családi ház
Eladó családi ház

Szabadbattyán

67.5 M Ft
5 szoba
180 m2
Eladó családi ház
Eladó családi ház

Somogyszil

27.9 M Ft
3 szoba
140 m2
Eladó családi ház
Eladó családi ház

Homokbödöge

24.9 M Ft
3 szoba
102 m2
Eladó családi ház
Eladó családi ház

Szederkény

107.9 M Ft
6 szoba
224 m2
Eladó családi ház
Eladó családi ház

Szigliget

299 M Ft
3 szoba
95 m2
Eladó családi ház
Eladó családi ház

Magyarszék

48.5 M Ft
3 + 1 szoba
86 m2