NapForrás 20 - Buda

Eladó családi ház
Dunakeszi

1/1
169 900 000 Ft169.9 M Ft 1 464 655 Ft/m2
4 szoba
116 m²
építés éve:2026

Részletes adatok

Telekméret: 538 m2
Fűtés: Egyéb
Parkolás: Garázs
Közmű: Víz, Villany, Csatorna
Komfort: Duplakomfortos
Energetikai besorolás: Nem adta meg a hirdető

Az OTP Bank lakáshitel ajánlataFizetett hirdetés

+36 20 231
Bene Kriszti
referens

Érdekel az OTP Bank kedvezményes lakáshitel ajánlata? *

* A kérdésre „Igen” válasz bejelölése esetén, az „Üzenet küldése” gombra kattintva kijelentem, hogy az OTP Bank Nyrt. Adatkezelési tájékoztatójának tartalmát megismertem és tudomásul vettem.

Eladó családi ház leírása

Új építésű ingatlanokra vonatkozó kedvezmények, támogatott hitel, illeték kedvezmény igénybe vehető!!!

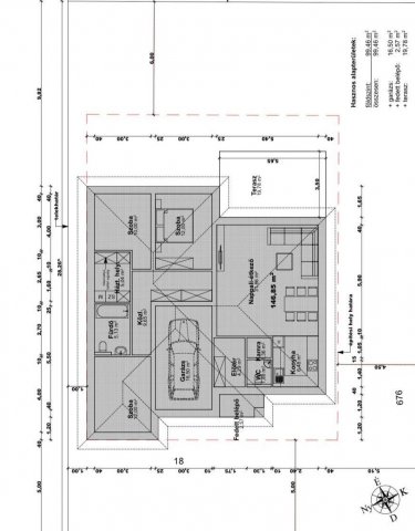
Dunakeszin Gyártelepi állomáshoz közel, kertvárosi részen eladó nettó 99,46 nm + garázsos, nagy teraszos, amerikai-konyhás-nappalis+3 szobás egy szintes családi ház!!!

A ház nettó: 99,46 nm
Garázs: 16,50 nm
Fedett belépő: 2,57 nm
Terasz: 19,78 nm
Telek: 538.00 nm

Kulcsrakész ár: 169,9 millió Ft

A ház elosztása:
fedett belépő 2,57 nm
előtér 4,29 nm
wc 1,88 nm
nappali+étkező 31,86 nm
konyha 6,48 nm
közlekedő 9,55 nm
szoba 12,00 nm
szoba 10,00 nm
házt.helyiség 5,04 nm
fürdőszoba 5,13 nm
szoba 12,00 nm
terasz 19,78 nm
garázs 16,50 nm

Műszaki tartalom:
-30 pth tégla
-10 cm válaszfal
-15 cm szigetelés
-beton cserép
-beton födém
-3 rétegű, hőszigetelt nyilászáró
-beépített rejtett tokos redőny
-elektromos kapu bevezetékelése
-riasztó bevezetékelése
Fűtés:
-hőszivattyú 8 kw-os
-padlófűtés
-törölközőszárítós radiátor
Burkolatok, szaniterek, beltéri ajtók a belső műszaki tartalom megadott összeghatárig választhatók, a felette lévő összeget a vevő fizeti.

Az ingatlan jelen pillanatban még alakítható!!!

A házat megbízható, számos referenciával rendelkező vállalkozó építi. Referenciák több településen megtekinthetők.

Infrastruktúrája:
Dunakeszin számos bölcsöde, ovóda, iskola, iskola komplesszum, gimnázium, sportolási lehetőségek, bankok, Sztk, bevásárlási lehetőségek /Aldi, Lidli, 2 Spar, Auchan, 2 Tesco, rengeteg családi program.
Az ingatlanhoz a Dunakeszi-Gyártelepi vonatmegálló néhány percre megtalálható, melllyel Budapest-Nyugati pu-ig lehet közlekedni. Illetve távolsági busszal Újpest-Városközpontig.

Az építkezést a hét bármely napján megtekinthető, előre egyeztetett időpontban.
Banki független tanácsadóval, ügyvédi, illetve Földhivatali ügyintézésben tudok segíteni.
Bene Kriszti 06-20-231-6450

Hirdetés feltöltve: 2026. 04. 30. Utoljára módosítva: 2026. 05. 12.

4 szobás családi házak ára Dunakeszin

Ebből az összehasonlításból megtudhatod, hogyan viszonyul a lakás ára a környékbeli családi házak átlagos árához. Ez nem azt jelenti, hogy ennyivel olcsóbb vagy drágább, mint amennyit a lakás ér, hanem hogy ennyivel tér el a környékbeli átlagtól.

Ennek a m² ára
Dunakeszi m² ár
1465 e Ft
1253 e Ft -17%
Ennek az ára
Dunakeszi átlagár
169.9 M Ft m Ft
176.7 m Ft 4%

Az ingatlan elhelyezkedése

Cím: Dunakeszi

Eladó családi házak a környékről

Dunakeszi
Eladó családi ház

Dunakeszi

172.5 M Ft
4 szoba
133 m²
Budakeszi, Makkosmária
Eladó családi ház

Budakeszi

100 M Ft
1 szoba
10 m²
Kerepes
Eladó családi ház

Kerepes

81.99 M Ft
5 szoba
102 m²
Érd, Érdliget - Kutyavár, Érd-liget
Eladó családi ház

Érd

230 M Ft
7 szoba
280 m²
Tápiószentmárton
Eladó családi ház

Tápiószentmárton

7.9 M Ft
2 + 1 szoba
86 m²
Dunakeszi
Eladó családi ház

Dunakeszi

490 M Ft
7 szoba
440 m²
Dunakeszi
Eladó családi ház

Dunakeszi

185 M Ft
7 szoba
255 m²
Pécel, Reményik Sándor utca
Eladó családi ház

Pécel

296 M Ft
6 szoba
396 m²
Dunakeszi
Eladó családi ház

Dunakeszi

199.9 M Ft
4 szoba
185 m²
Őrbottyán
Eladó családi ház

Őrbottyán

154 M Ft
4 + 1 szoba
115 m²
Tápiógyörgye
Eladó családi ház

Tápiógyörgye

19.9 M Ft
3 szoba
65 m²
Dunakeszi
Eladó családi ház

Dunakeszi

109.9 M Ft
4 szoba
137 m²
Érd
Eladó családi ház

Érd

164.9 M Ft
5 szoba
192 m²
Tápiószele
Eladó családi ház

Tápiószele

18.9 M Ft
4 szoba
68 m²
Dunakeszi, Fóti út
Eladó családi ház

Dunakeszi

250 M Ft
4 szoba
150 m²
Remeteszőlős
Eladó családi ház

Remeteszőlős

399.9 M Ft
5 + 2 szoba
260 m²
Dunakeszi
Eladó családi ház

Dunakeszi

249.9 M Ft
5 szoba
290 m²
Dunakeszi
Eladó családi ház

Dunakeszi

69.9 M Ft
3 szoba
50 m²
Dunakeszi
Eladó családi ház

Dunakeszi

59.99 M Ft
2 szoba
88 m²
Dunakeszi
Eladó családi ház

Dunakeszi

114.9 M Ft
4 szoba
94 m²
Tápiószele
Eladó családi ház

Tápiószele

11.9 M Ft
3 szoba
62 m²
Dunakeszi, Alag-felső, Juhász Gyula utca
Eladó családi ház

Dunakeszi

219 M Ft
8 szoba
280 m²
Dunakeszi, Városközpont, Tabán, Fő út
Eladó családi ház

Dunakeszi

139 M Ft
2 szoba
56 m²
Dunakeszi
Eladó családi ház

Dunakeszi

114.9 M Ft
3 + 1 szoba
94 m²

Falusi CSOK ingatlanok

Zsámbok
Eladó családi ház

Zsámbok

30 M Ft
2 szoba
58 m²
Ceglédbercel
Eladó családi ház

Ceglédbercel

67 M Ft
3 szoba
97 m²
Sumony
Eladó családi ház

Sumony

19 M Ft
4 szoba
120 m²
Hajós
Eladó családi ház

Hajós

49.5 M Ft
6 szoba
394 m²
Hegyeshalom, Margaréta utca 12
Eladó téglalakás

Hegyeshalom

50.09 M Ft
2 szoba
43 m²
Tápióság
Eladó családi ház

Tápióság

71.5 M Ft
4 szoba
72 m²
Hegyeshalom, Margaréta utca 12
Eladó téglalakás

Hegyeshalom

32.89 M Ft
1 szoba
27 m²
Tihany
Eladó családi ház

Tihany

180 M Ft
3 szoba
120 m²