Astora Art House

Eladó családi ház
Debrecen

71 990 000 Ft71.99 M Ft 712 772 Ft/m2
2 szoba
101 m2
építés éve:2025

Részletes adatok

Telekméret: 345 m2
Fűtés: Gázkazán
Energetikai besorolás: Nem adta meg a hirdető

Az OTP Bank lakáshitel ajánlataFizetett hirdetés

+36 30 250
Bakó-Nagy Fruzsina
Debrecen Kürtös utca

Érdekel az OTP Bank kedvezményes lakáshitel ajánlata? *

* A kérdésre „Igen” válasz bejelölése esetén, az „Üzenet küldése” gombra kattintva kijelentem, hogy az OTP Bank Nyrt. Adatkezelési tájékoztatójának tartalmát megismertem és tudomásul vettem.

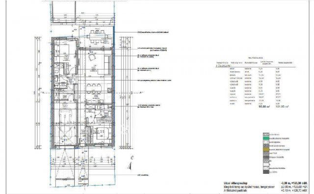
Eladó családi ház leírása

Debrecen közkedvelt, csendes, mégis kiváló közlekedésű részén, Csapókertben eladó egy új építésű, 102 nm-es, tégla-thermoblock falazatú, kiváló hőszigetelésű családi ház. Az elhelyezkedés páratlan: a belváros könnyen elérhető, ugyanakkor a környék nyugodt, családbarát hangulatot áraszt, így ideális választás azoknak, akik szeretnének modern otthonban élni, jó infrastruktúrával ellátott környezetben.

Az ingatlan elrendezése praktikus és tágas: 2 szoba, világos amerikai konyhás nappali, 2 fürdőszoba WC-vel, garázs valamint egy kényelmes, fedett terasz teszi teljessé az otthont.

Az ingatlan tehermentes, tulajdonviszonyai rendezettek, és 2025 év végétől akár birtokba vehető.

További információért hívjon bizalommal akár hétvégén is, megtekintés telefonos egyeztetést követően lehetséges. Irodánkban kedvezményes kamatozású lakásvásárlási és felújítási hitelek elérhetők az OTP hátterével.

Referencia szám: M312785

Hirdetés feltöltve: 2025. 11. 06. Utoljára módosítva: 2025. 11. 06.

2 szobás családi házak ára Debrecenben

Ebből az összehasonlításból megtudhatod, hogyan viszonyul a lakás ára a környékbeli családi házak átlagos árához. Ez nem azt jelenti, hogy ennyivel olcsóbb vagy drágább, mint amennyit a lakás ér, hanem hogy ennyivel tér el a környékbeli átlagtól.

Ennek a m² ára
Debrecen m² ár
713 e Ft
782 e Ft 9%
Ennek az ára
Debrecen átlagár
71.99 M Ft m Ft
42.4 m Ft -70%

Az ingatlan elhelyezkedése

Cím: Debrecen

Eladó családi házak a környékről

Eladó családi ház
Eladó családi ház

Debrecen

245 M Ft
5 + 1 szoba
275 m2
Eladó családi ház
Eladó családi ház

Sáránd

53.99 M Ft
2 + 1 szoba
150 m2
Eladó családi ház
Eladó családi ház

Debrecen

105 M Ft
3 szoba
120 m2
Eladó családi ház
Eladó családi ház

Hajdúszoboszló

8.49 M Ft
1 szoba
24 m2
Eladó családi ház
Eladó családi ház

Hajdúszoboszló

65 M Ft
7 szoba
250 m2
Eladó családi ház
Eladó családi ház

Debrecen

85 M Ft
4 szoba
100 m2
Eladó családi ház
Eladó családi ház

Balmazújváros

104.9 M Ft
3 szoba
172 m2
Eladó családi ház
Eladó családi ház

Debrecen

13.9 M Ft
2 szoba
56 m2
Eladó családi ház
Eladó családi ház

Debrecen

66.9 M Ft
3 szoba
85 m2
Eladó családi ház
Eladó családi ház

Debrecen

550 M Ft
16 szoba
967 m2
Eladó családi ház
Eladó családi ház

Debrecen

75 M Ft
4 szoba
96 m2
Eladó családi ház
Eladó családi ház

Hajdúsámson

81 M Ft
2 szoba
80 m2
Eladó családi ház
Eladó családi ház

Debrecen, Haláp Tanya

368.6 M Ft
10 szoba
500 m2
Eladó családi ház
Eladó családi ház

Debrecen, Lencztelep, Szeged utca

129.9 M Ft
7 szoba
240 m2
Eladó családi ház
Eladó családi ház

Debrecen, Postakert, Vajdahunyad utca 3

199 M Ft
5 szoba
170 m2
Eladó családi ház
Eladó családi ház

Debrecen

105 M Ft
3 szoba
120 m2
Eladó családi ház
Eladó családi ház

Püspökladány, Kiss Ferenc utca

49.8 M Ft
5 szoba
150 m2
Eladó családi ház
Eladó családi ház

Hajdúszoboszló

49.9 M Ft
5 szoba
160 m2
Eladó családi ház
Eladó családi ház

Hajdúszoboszló

99 M Ft
5 + 1 szoba
160 m2
Eladó családi ház
Eladó családi ház

Hajdúböszörmény

15.5 M Ft
2 szoba
45 m2
Eladó családi ház
Eladó családi ház

Debrecen, Méhészföld utca

26 M Ft
1 szoba
36 m2
Eladó családi ház
Eladó családi ház

Debrecen

150 M Ft
7 szoba
300 m2
Eladó családi ház
Eladó családi ház

Hajdúböszörmény

99 M Ft
2 + 1 szoba
142 m2
Eladó családi ház
Eladó családi ház

Debrecen

150 M Ft
7 szoba
300 m2

Falusi CSOK ingatlanok

Eladó téglalakás
Eladó téglalakás

Balatonszemes

202 M Ft
3 szoba
154 m2
Eladó családi ház
Eladó családi ház

Nyírmada

12.5 M Ft
2 szoba
88 m2
Eladó családi ház
Eladó családi ház

Kunágota

15.5 M Ft
2 + 1 szoba
102 m2
Eladó családi ház
Eladó családi ház

Magyarszék

48.5 M Ft
3 + 1 szoba
86 m2
Eladó családi ház
Eladó családi ház

Recsk

21 M Ft
4 szoba
220 m2
Eladó családi ház
Eladó családi ház

Tab, Rózsadomb utca

79 M Ft
3 szoba
93 m2
Eladó családi ház
Eladó családi ház

Kóny, Kazinczy utca

78.9 M Ft
3 szoba
170 m2
Eladó családi ház
Eladó családi ház

Törtel

14 M Ft
3 + 2 szoba
55 m2