Metrodom

Eladó családi ház
Csór

+ 17 kép 1/20
84 900 000 Ft84.9 M Ft 912 903 Ft/m2
3 szoba
93 m2
építés éve:2025

Részletes adatok

Telekméret: 1100 m2
Fűtés: Egyéb
Parkolás: Kocsibeálló
Energetikai besorolás: Nem adta meg a hirdető

Az OTP Bank lakáshitel ajánlataFizetett hirdetés

+36 20 583
Kruller Petra
referens

Érdekel az OTP Bank kedvezményes lakáshitel ajánlata? *

* A kérdésre „Igen” válasz bejelölése esetén, az „Üzenet küldése” gombra kattintva kijelentem, hogy az OTP Bank Nyrt. Adatkezelési tájékoztatójának tartalmát megismertem és tudomásul vettem.

Eladó családi ház leírása

Exkluzív, új építésű családi otthon lenyűgöző örökpanorámával Csór, Iszkaszőlőhegyen!

Vh-Csór, Iszkaszőlőhegy egyik legszebb részén, aszfaltozott úton könnyen megközelíthető, örökpanorámás telken ÚJÉPÍTÉSŰ, önálló családi ház ELADÓ, mely kulcsrakész állapotban várja új tulajdonosát.

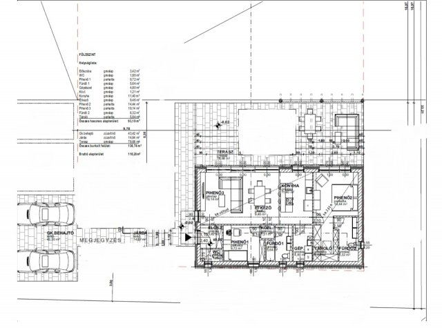
A 2025-ben épült ingatlan 93 négyzetméter hasznos alapterülettel rendelkezik, mely ideális elrendezést biztosít: egy körbe napozott amerikai konyha-nappali mellett két tágas hálószoba, két különálló fürdőszoba, előszoba és háztartási helyiség került kialakításra. A belső tér rugalmasan alakítható, így igény szerint akár nappali + 3 szobás elrendezés is megvalósítható. Az életteret jelentősen kiterjeszti a házhoz kapcsolódó 79 négyzetméteres terasz.

Korszerű Műszaki Megoldások

Az otthon energiahatékonyságát a modern műszaki tartalom garantálja. A falazat Ytong téglából, a válaszfalak gipszkartonból készültek, 15 centiméter vastag homlokzati hőszigeteléssel ellátva. A szeglemezes födém,-tető szerkezetben 30 centiméter vastag, fújt cellulóz szigetelés került, melyet Terrán cserép tetőfedés zár.
A nyílászárók műanyagból készültek, 5 kamrás, háromrétegű hőszigetelt üvegezéssel.
A fűtésrendszer 11 kilowattos hőszivattyúval megoldott padlófűtést biztosít. A villamos hálózat 3x25A kapacitású, és lehetőség van H-tarifás óra igénylésére. A jövőre gondolva kialakításra került az elektromos autó töltő előkészítése, továbbá a ház alkalmas napelem- és napkollektor rendszer telepítésére is.

Telek és Közművek

A 1100 négyzetméteres telek körbekerített, a bejutás kényelmét elektromos kapu garantálja. A terepviszonyok kiegyenlítése céljából masszív vasbeton támfal épült.

A közműellátás a villany rendelkezésre állásával biztosított. Az ivóvíz fúrt kút és időszakosan feltöltendő víztároló segítségével megoldott, míg a szennyvízelvezetést egy 35 köbméteres derítő szolgálja.

Az eladási ár magában foglalja a megadott listából választható hideg-meleg burkolatokat, az alapszereléseket, valamint a tereprendezést is.
Az ingatlan a szerződéskötéstől számítva 1-3 hónapon belül kulcsrakész állapotban birtokba vehető.

Eladási irányár: 84,9 M Ft

Ha felkeltette érdeklődését, hívjon bizalommal, (hétvégén is) éljen ingyenes, személyre szabott hitelügyintézés szolgáltatásunkkal. Segítünk továbbá adásvételhez szükséges ügyvédi közreműködésben, energetikai tanúsítvány, valamint értékbecslés elkészítésében.

For English information please send a message. ...TOVÁBBI, TÖBBEZRES INGATLAN KÍNÁLAT: www.gdn-ingatlan.hu - GDN azonosító: 391827

Hirdetés feltöltve: 2026. 01. 20. Utoljára módosítva: 2026. 01. 20.

Az ingatlan elhelyezkedése

Cím: Csór

Eladó ingatlanok a környékről

Eladó családi ház
Eladó családi ház

Csór

64.9 M Ft
4 szoba
100 m2
Eladó panellakás
Eladó panellakás

Dunaújváros

25.99 M Ft
1 szoba
35 m2
Eladó családi ház
Eladó családi ház

Csór

54.9 M Ft
2 szoba
60 m2
Eladó családi ház
Eladó családi ház

Csór

44.9 M Ft
3 szoba
107 m2
Eladó családi ház
Eladó családi ház

Székesfehérvár

59 M Ft
3 szoba
100 m2
Eladó családi ház
Eladó családi ház

Mány

18.5 M Ft
3 szoba
70 m2
Eladó családi ház
Eladó családi ház

Kápolnásnyék

74 M Ft
3 szoba
100 m2
Eladó családi ház
Eladó családi ház

Baracska, Virág utca

98.9 M Ft
3 szoba
155 m2
Eladó családi ház
Eladó családi ház

Velence

85.9 M Ft
4 szoba
103 m2
Eladó telek
Eladó telek

Kápolnásnyék

42.6 M Ft
1159 m²
Eladó családi ház
Eladó családi ház

Csór

133.5 M Ft
4 szoba
115 m2
Eladó családi ház
Eladó családi ház

Csór

74.9 M Ft
4 szoba
91 m2
Eladó családi ház
Eladó családi ház

Szabadbattyán

357.518 M Ft
9 + 2 szoba
1053 m2
Eladó családi ház
Eladó családi ház

Vereb

49.9 M Ft
1 + 3 szoba
80 m2
Eladó családi ház
Eladó családi ház

Csór

50 M Ft
2 szoba
68 m2
Eladó családi ház
Eladó családi ház

Csór

49.99 M Ft
5 szoba
167 m2
Eladó családi ház
Eladó családi ház

Csór

82.436 M Ft
4 szoba
120 m2
Eladó panellakás
Eladó panellakás

Székesfehérvár

56 M Ft
2 szoba
52 m2
Eladó családi ház
Eladó családi ház

Iváncsa

39.9 M Ft
4 szoba
112 m2
Eladó családi ház
Eladó családi ház

Csór

64.9 M Ft
4 szoba
100 m2
Eladó családi ház
Eladó családi ház

Csór

130 M Ft
3 szoba
93 m2
Eladó családi ház
Eladó családi ház

Csór

130 M Ft
4 szoba
110 m2
Eladó családi ház
Eladó családi ház

Csór

84.9 M Ft
3 szoba
93 m2
Eladó családi ház
Eladó családi ház

Székesfehérvár

69.9 M Ft
3 szoba
95 m2

Falusi CSOK ingatlanok

Eladó családi ház
Eladó családi ház

Véménd

81.9 M Ft
3 szoba
150 m2
Eladó családi ház
Eladó családi ház

Csengőd

42 M Ft
2 szoba
81 m2
Eladó családi ház
Eladó családi ház

Nagypall, Szabadság utca

35.9 M Ft
3 szoba
125 m2
Eladó családi ház
Eladó családi ház

Úri, Fő utca

99 M Ft
6 szoba
150 m2
Eladó családi ház
Eladó családi ház

Seregélyes

75 M Ft
6 szoba
160 m2
Eladó családi ház
Eladó családi ház

Eplény

99.9 M Ft
6 szoba
163 m2
Eladó családi ház
Eladó családi ház

Bag

16.9 M Ft
6 szoba
160 m2
Eladó családi ház
Eladó családi ház

Somogyszil

27.9 M Ft
3 szoba
140 m2