Oasis Residence

Eladó családi ház
Csongrád

+ 17 kép 1/20
125 000 000 Ft125 M Ft 484 496 Ft/m2
6 + 1 szoba
258 m²
építés éve:1985

Részletes adatok

Állapot: Felújított
Telekméret: 609 m2
Fűtés: Gázkazán
Komfort: Összkomfortos
Energetikai besorolás: Nem adta meg a hirdető

Az OTP Bank lakáshitel ajánlataFizetett hirdetés

+36 20 985
Petkov Gyöngyi Katalin
Csongrád OTP Ingatlanpont Iroda

Érdekel az OTP Bank kedvezményes lakáshitel ajánlata? *

* A kérdésre „Igen” válasz bejelölése esetén, az „Üzenet küldése” gombra kattintva kijelentem, hogy az OTP Bank Nyrt. Adatkezelési tájékoztatójának tartalmát megismertem és tudomásul vettem.

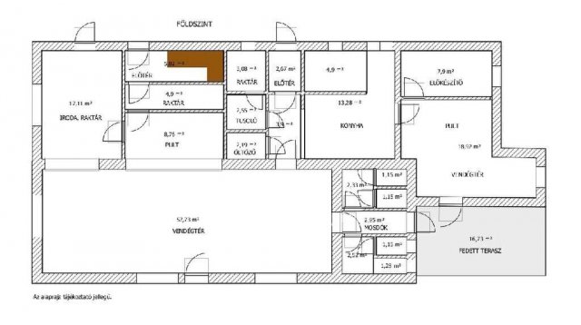
Eladó családi ház leírása

------ Kizárólag az OTP Ingatlanpontnál! ------
Többféle hasznosítási lehetőséget kínáló ingatlan eladó Csongrádon, forgalmas, bejáratott helyen!
A 258m2 hasznos alapterületű teljeskörűen felújított és korszerűsített ingatlan földszinti része nettó 163m2 alapterületű, eredetileg vendéglátó funkcióra lett kialakítva, de akár üzletnek, irodának is kiválóan alkalmas lehet. A tetőtérben kialakított külön bejáratú lakás hasznos (190cm belmagasságot elérő) alapterülete 95m2, amely 5 lakószobát, gardrób szobát, fürdőszobát, WC-t foglal magában, valamint egy hangulatos, tágas (40m2-es), részben fedett terasz növeli az életteret, ahová 2 szobából is kijuthatunk.
Az ingatlan napelemmel felszerelt így a központi fűtés villany kazánról gazdaságosan üzemeltethető, de gázkazán, vegyes tüzelésű kazán, valamint gázkonvektorok is rendelkezésre állnak. A melegvíz előállítása is többféle módon megoldható.
Az ingatlanba több klíma is felszerelésre került. A burkolatok, nyílászárók felújításra kerültek, a falazat és a tető is kiváló állapotban van.
A 609m2-es szépen parkosított telken egy garázs is megtalálható.
Az épület kívül-belül stílusos, igényes kialakítású, arra vár, hogy a leendő tulajdonosok megtalálják benne a megélhetési és lakhatási lehetőségeiket.
A tulajdoni lapon kivett lakóház, üzlet és udvar megnevezéssel szerepel. További információért hívjon bizalommal!
Az OTP Ingatlanpont teljes körű ügyintézéssel áll az eladók és vevők rendelkezésére. A kínálatunkból választott ingatlan finanszírozásához kedvezményes hitelkonstrukciót biztosítunk. Az OTP Banknál elérhető Otthon Start Program, Babaváró, falusi CSOK, CSOK Plusz hitel és egyéb kölcsönök intézését díjmentesen vállaljuk. Az adásvételi szerződés megkötéséhez igény szerint ügyvédet biztosítunk. Irodáink Szentes, Petőfi utca 12. a buszmegálló felől, és Csongrád, Fő utca 54. szám alatt várjuk a személyes érdeklődőket. Válasszuk ki együtt az Önnek legmegfelelőbb ajánlatot banki sorban állás nélkül! Legyen Ön is megbízónk, és adja el rajtunk keresztül ingatlanát!

Az energetikai tanúsítvány készítése folyamatban van, amint rendelkezésre áll, úgy azzal a hirdetés frissítésre kerül.

Referencia szám: M323911-ZE

Hirdetés feltöltve: 2026. 04. 08. Utoljára módosítva: 2026. 05. 14.

Az ingatlan elhelyezkedése

Cím: Csongrád

Eladó családi házak a környékről

Szeged
Eladó családi ház

Szeged

129.5 M Ft
1 + 3 szoba
122 m²
Szeged
Eladó családi ház

Szeged

49 M Ft
4 szoba
98 m²
Mórahalom
Eladó családi ház

Mórahalom

63 M Ft
3 szoba
94 m²
Mórahalom
Eladó családi ház

Mórahalom

64.99 M Ft
4 + 2 szoba
235 m²
Csongrád
Eladó családi ház

Csongrád

19.9 M Ft
2 + 1 szoba
55 m²
Csongrád, Ady utca 1
Eladó családi ház

Csongrád

18 M Ft
6 szoba
100 m²
Csongrád
Eladó családi ház

Csongrád

39 M Ft
4 szoba
110 m²
Csongrád
Eladó családi ház

Csongrád

89 M Ft
5 + 1 szoba
162 m²
Szeged
Eladó családi ház

Szeged

115 M Ft
7 szoba
196 m²
Csongrád
Eladó családi ház

Csongrád

79.9 M Ft
3 + 1 szoba
120 m²
Csongrád
Eladó családi ház

Csongrád

28.5 M Ft
2 szoba
61 m²
Szeged
Eladó családi ház

Szeged

11.552 M Ft
17 m²
Csongrád
Eladó családi ház

Csongrád

47 M Ft
2 szoba
100 m²
Röszke
Eladó családi ház

Röszke

15.9 M Ft
3 szoba
80 m²
Csongrád
Eladó családi ház

Csongrád

14.9 M Ft
2 + 1 szoba
107 m²
Szeged
Eladó családi ház

Szeged

14.44 M Ft
31 m²
Szeged
Eladó családi ház

Szeged

54.89 M Ft
3 szoba
110 m²
Csongrád
Eladó családi ház

Csongrád

21.9 M Ft
2 szoba
48 m²
Csongrád
Eladó családi ház

Csongrád

11.3 M Ft
3 szoba
73 m²
Szeged
Eladó családi ház

Szeged

37.425 M Ft
3 szoba
75 m²
Csongrád
Eladó családi ház

Csongrád

79.9 M Ft
3 + 1 szoba
120 m²
Szeged
Eladó családi ház

Szeged

220 M Ft
12 + 2 szoba
760 m²
Hódmezővásárhely, Kishomok, Új-Kishomok
Eladó családi ház

Hódmezővásárhely

69 M Ft
3 szoba
100 m²
Deszk
Eladó családi ház

Deszk

134.9 M Ft
5 szoba
160 m²

Falusi CSOK ingatlanok

Verseg
Eladó családi ház

Verseg

69.9 M Ft
4 szoba
0 m²
Rétság
Eladó téglalakás

Rétság

34.9 M Ft
2 szoba
55 m²
Arló, Mátyás Király utca
Eladó családi ház

Arló

14.99 M Ft
2 szoba
66 m²
Villány
Eladó családi ház

Villány

31 M Ft
1 szoba
35 m²
Tápiógyörgye
Eladó családi ház

Tápiógyörgye

22.5 M Ft
3 + 1 szoba
83 m²
Lovasberény
Eladó sorház

Lovasberény

78 M Ft
4 + 1 szoba
124 m²
Kétegyháza
Eladó családi ház

Kétegyháza

21 M Ft
3 szoba
105 m²
Vép
Eladó családi ház

Vép

75.9 M Ft
5 szoba
150 m²