Stay Family Park

Eladó családi ház
Cserépfalu

Figyelem!

Ez az ingatlan a 2019.07.01-től induló falusi CSOK által támogatott településen található

+ 17 kép 1/20
23 000 000 Ft23 M Ft 242 105 Ft/m2
4 szoba
95 m2
építés éve:1945

Részletes adatok

Állapot: Felújítandó
Telekméret: 747 m2
Fűtés: Gázkonvektor
Parkolás: Garázs
Közmű: Víz, Gáz, Villany, Csatorna
Energetikai besorolás: Nem adta meg a hirdető

Az OTP Bank lakáshitel ajánlataFizetett hirdetés

+36 70 317
Bata Zoltán
referens

Érdekel az OTP Bank kedvezményes lakáshitel ajánlata? *

* A kérdésre „Igen” válasz bejelölése esetén, az „Üzenet küldése” gombra kattintva kijelentem, hogy az OTP Bank Nyrt. Adatkezelési tájékoztatójának tartalmát megismertem és tudomásul vettem.

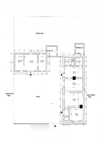
Eladó családi ház leírása

Borsod-Abaúj-Zemplén megye, Cserépfalu, Bethlen Gábor út, 95 m2-es családi ház, 747 m2-es telken eladó. A kőből épült, szerkezetileg stabil, de állapotát tekintve felújítandó/modernizálandó ingatlant négy szoba, konyha, fürdőszoba és zárt veranda alkotja. Az udvaron található továbbá egy garázs, tároló helyiségekkel, illetve egy fatároló és állattartásra szolgáló melléképület is. Fából készült ablakai redőnnyel szereltek. A fűtésről gázkonvektorok és cserépkályhák gondoskodnak. A melegvíz-ellátást bojler biztosítja. A tető állapota életkorának megfelelő, héjazata cserép. Az ingatlan elhelyezkedése, mérete és kialakítása okán is békés otthonává válhat párnak, családnak egyaránt. Az épület turisztikai szempontból is jó lehetőséget kínál, hiszen több apartman is kialakítható benne. Amennyiben a leírtak felkeltették érdeklődését, jöjjön el és nézze meg személyesen az ingatlant! Ingatlanirodánk ügyvédi háttérrel, CSOK, falusi CSOK, babaváró hitel, valamint kamatkedvezményes hitel ügyintézésével támogatja ügyfelei ingatlanvásárlását!

Hirdetés feltöltve: 2025. 05. 09. Utoljára módosítva: 2025. 11. 02.

Az ingatlan elhelyezkedése

Cím: Cserépfalu

Eladó ingatlanok a környékről

Eladó családi ház
Eladó családi ház

Cserépfalu, Kácsi

55 M Ft
3 + 2 szoba
150 m2
Eladó családi ház
Eladó családi ház

Ózd

13 M Ft
5 szoba
150 m2
Eladó mezogazdasagi ingatlan
Eladó mezogazdasagi ingatlan

Szirmabesenyő

6 M Ft
3150 m²
3150 m2
Eladó családi ház
Eladó családi ház

Ózd, Ráctag, Huba vezér út

20.9 M Ft
6 szoba
200 m2
Eladó családi ház
Eladó családi ház

Cserépfalu

24 M Ft
3 szoba
62 m2
Eladó családi ház
Eladó családi ház

Sajószentpéter

34.9 M Ft
2 + 2 szoba
100 m2
Eladó családi ház
Eladó családi ház

Cserépfalu

23 M Ft
4 szoba
95 m2
Eladó családi ház
Eladó családi ház

Cserépfalu

39.9 M Ft
1 + 1 szoba
58 m2
Eladó téglalakás
Eladó téglalakás

Miskolc

44.9 M Ft
1 + 1 szoba
51 m2
Eladó családi ház
Eladó családi ház

Ózd

26.5 M Ft
3 szoba
100 m2
Eladó családi ház
Eladó családi ház

Tiszalúc, Alkotmány utca

16.9 M Ft
4 szoba
137 m2
Eladó téglalakás
Eladó téglalakás

Miskolc

54.9 M Ft
1 + 4 szoba
89 m2
Eladó téglalakás
Eladó téglalakás

Miskolc, Kilián, Munkás utca

23.9 M Ft
1 szoba
37 m2
Eladó családi ház
Eladó családi ház

Cserépfalu

59.8 M Ft
3 szoba
105 m2
Eladó panellakás
Eladó panellakás

Miskolc

33.9 M Ft
2 szoba
55 m2
Eladó családi ház
Eladó családi ház

Kurityán

15.8 M Ft
3 szoba
68 m2
Eladó családi ház
Eladó családi ház

Vágáshuta

299 M Ft
3 szoba
160 m2
Eladó családi ház
Eladó családi ház

Ózd

29.9 M Ft
2 szoba
80 m2
Eladó téglalakás
Eladó téglalakás

Miskolc

35.9 M Ft
2 szoba
53 m2
Eladó családi ház
Eladó családi ház

Gönc

20.5 M Ft
2 szoba
80 m2
Eladó telek
Eladó telek

Szirmabesenyő

24.9 M Ft
1634 m²
Eladó családi ház
Eladó családi ház

Tarcal

33.9 M Ft
2 szoba
60 m2
Eladó családi ház
Eladó családi ház

Szikszó

89.9 M Ft
3 szoba
100 m2
Eladó családi ház
Eladó családi ház

Miskolc, Vargahegy, Margaréta utca

14.5 M Ft
1 szoba
42 m2

Falusi CSOK ingatlanok

Eladó családi ház
Eladó családi ház

Szil

25 M Ft
2 szoba
90 m2
Eladó családi ház
Eladó családi ház

Marcaltő

20.9 M Ft
3 + 1 szoba
90 m2
Eladó családi ház
Eladó családi ház

Tabajd

79 M Ft
4 szoba
82 m2
Eladó családi ház
Eladó családi ház

Magyarszék

48.5 M Ft
3 + 1 szoba
86 m2
Eladó családi ház
Eladó családi ház

Segesd

3.9 M Ft
2 szoba
65 m2
Eladó téglalakás
Eladó téglalakás

Kőröshegy

64.9 M Ft
3 szoba
52 m2
Eladó családi ház
Eladó családi ház

Kisnána

27.9 M Ft
4 szoba
180 m2
Eladó családi ház
Eladó családi ház

Vaszar

29.5 M Ft
2 szoba
76 m2

Falusi CSOK ingatlanok

Eladó családi ház
Eladó családi ház

Badacsonytomaj

199.8 M Ft
3 szoba
166 m2
Eladó családi ház
Eladó családi ház

Mórichida

44.9 M Ft
3 szoba
89 m2
Eladó családi ház
Eladó családi ház

Adásztevel

8.9 M Ft
2 szoba
63 m2
Eladó családi ház
Eladó családi ház

Egerszólát

50 M Ft
3 szoba
120 m2
Eladó családi ház
Eladó családi ház

Szabadbattyán

136 M Ft
5 szoba
226 m2
Eladó családi ház
Eladó családi ház

Balatonfenyves

430 M Ft
4 szoba
274 m2
Eladó családi ház
Eladó családi ház

Vácszentlászló

46 M Ft
41 + 1 szoba
100 m2
Eladó családi ház
Eladó családi ház

Ceglédbercel

49.9 M Ft
4 szoba
120 m2