Astora Art House

Eladó téglalakás
Újhartyán

Figyelem!

Ez az ingatlan a 2019.07.01-től induló falusi CSOK által támogatott településen található

+ 14 kép 1/17
94 000 000 Ft94 M Ft 1 044 444 Ft/m2
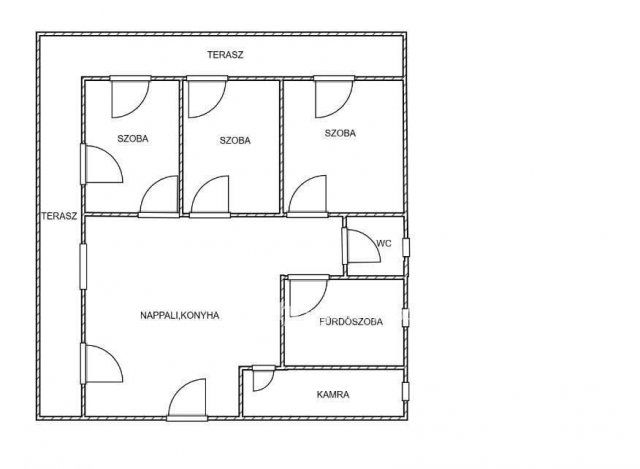
3 szoba
90 m2
építés éve:2022

Részletes adatok

Állapot: Újszerű
Fűtés: Gázkazán
Emelet: földszint
Energetikai besorolás: Nem adta meg a hirdető

Az OTP Bank lakáshitel ajánlataFizetett hirdetés

+36 70 358
Jancsovics-Andó Bernadett
Jászberény. OTPIP SzeMi

Érdekel az OTP Bank kedvezményes lakáshitel ajánlata? *

* A kérdésre „Igen” válasz bejelölése esetén, az „Üzenet küldése” gombra kattintva kijelentem, hogy az OTP Bank Nyrt. Adatkezelési tájékoztatójának tartalmát megismertem és tudomásul vettem.

Eladó téglalakás leírása

Pest vármegye déli részén , Újhartyánban 90 m2 nagyságú lakás eladó. Űjhartyán egyik nyugodt, biztonságos részén. 2022-ben épült gyönyörű, összkomfortos ingatlan, kertkapcsolattal és saját parkolóhellyel. A lakás ideális választás lehet azoknak , akik közel Budapesthez keresik otthonukat, mégis egy csendes, nyugodt környéken. Az épület tégla falazattal épült. A külső nyílászárók elektromos redőnnyel lettek ellátva. A lakásban 3 szoba, fürdőszoba, külön wc, kamra és egy tágas , hangulatos amerikai konyhás nappali, mely Önnek akár szobaként is funkcionálhat. A lakáshoz egy kb 30 m2-es fedett terasz is tartozik, melyre mindegyik szobából ki lehet jutni és tökéletes helyszín a családi összejövetelekhez. Gázkazán és padlófűtés gondoskodik a kellemes hőmérsékletről. A rezsi nagyon alacsony, mivel a nyílászárók hőszigetelt üvegezéssel készültek. Elhelyezkedése kiváló: óvoda 600 m, bölcsöde 5 perc autóval, orvosi rendelő 3 perc autóval. A vásárlás finanszírozásában az Otp kedvező kamatozású hiteleivel tudunk segíteni, sorban állás nélkül. Az adásvételi szerződés lebonyolításához korrekt ügyvédi közreműködést biztosítunk. Hívjon bizalommal, nézzük meg együtt személyesen.

Referencia szám: M318066-ZE

Hirdetés feltöltve: 2025. 12. 16. Utoljára módosítva: 2026. 01. 25.

Az ingatlan elhelyezkedése

Cím: Újhartyán

Eladó ingatlanok a környékről

Eladó telek
Eladó telek

Szentendre

119 M Ft
4380 m²
4380 m2
Eladó téglalakás
Eladó téglalakás

Göd

32.5 M Ft
2 szoba
44 m2
Eladó téglalakás
Eladó téglalakás

Göd

28.9 M Ft
2 szoba
46 m2
Eladó téglalakás
Eladó téglalakás

Göd

29.5 M Ft
2 szoba
47 m2
Eladó téglalakás
Eladó téglalakás

Szentendre, Kölcsey

149.9 M Ft
4 szoba
105 m2
Eladó téglalakás
Eladó téglalakás

Göd

42.5 M Ft
3 szoba
65 m2
Eladó családi ház
Eladó családi ház

Budakeszi, Villám Miklós utca

289 M Ft
8 szoba
290 m2
Eladó téglalakás
Eladó téglalakás

Göd

44.5 M Ft
3 szoba
69 m2
Eladó téglalakás
Eladó téglalakás

Göd

44.5 M Ft
3 szoba
73 m2
Eladó téglalakás
Eladó téglalakás

Újhartyán

94 M Ft
3 szoba
90 m2
Eladó téglalakás
Eladó téglalakás

Göd

28.9 M Ft
2 szoba
46 m2
Eladó ikerház
Eladó ikerház

Vasad

71.9 M Ft
4 szoba
89 m2
Eladó téglalakás
Eladó téglalakás

Újhartyán

94 M Ft
3 szoba
90 m2
Eladó ikerház
Eladó ikerház

Tura

86.2 M Ft
4 szoba
123 m2
Eladó ikerház
Eladó ikerház

Vasad

71.9 M Ft
3 szoba
89 m2
Eladó téglalakás
Eladó téglalakás

Göd

27.9 M Ft
2 szoba
43 m2
Eladó téglalakás
Eladó téglalakás

Göd

44.5 M Ft
3 szoba
70 m2
Eladó családi ház
Eladó családi ház

Vecsés

124.9 M Ft
4 szoba
143 m2
Eladó üzlethelyiség
Eladó üzlethelyiség

Gödöllő

178.499 M Ft
813 m²
143 m2
Eladó családi ház
Eladó családi ház

Dunaharaszti

71.5 M Ft
4 szoba
74 m2
Eladó ikerház
Eladó ikerház

Pilisvörösvár, Bányakápolna

43.99 M Ft
2 szoba
38 m2
Eladó ikerház
Eladó ikerház

Tura

69.3 M Ft
3 szoba
100 m2
Eladó családi ház
Eladó családi ház

Csörög

26.5 M Ft
4 szoba
90 m2
Eladó ikerház
Eladó ikerház

Taksony

114.9 M Ft
5 szoba
130 m2

Falusi CSOK ingatlanok

Eladó családi ház
Eladó családi ház

Badacsonytomaj

124.9 M Ft
4 + 1 szoba
138 m2
Eladó családi ház
Eladó családi ház

Parád

20 M Ft
3 szoba
90 m2
Eladó családi ház
Eladó családi ház

Orci

119.9 M Ft
6 szoba
200 m2
Eladó családi ház
Eladó családi ház

Nagybörzsöny

79.9 M Ft
4 szoba
149 m2
Eladó családi ház
Eladó családi ház

Badacsonytördemic

180.95 M Ft
4 szoba
160 m2
Eladó téglalakás
Eladó téglalakás

Pécsvárad, Kossuth Lajos utca

64.99 M Ft
3 szoba
89 m2
Eladó családi ház
Eladó családi ház

Tápiószőlős

14.9 M Ft
2 szoba
67 m2
Eladó családi ház
Eladó családi ház

Kenyeri

39.9 M Ft
3 szoba
94 m2

Falusi CSOK ingatlanok

Eladó családi ház
Eladó családi ház

Somogygeszti

38.6 M Ft
3 + 1 szoba
98 m2
Eladó családi ház
Eladó családi ház

Nemesbőd

87 M Ft
5 szoba
120 m2
Eladó családi ház
Eladó családi ház

Nagyhegyes

80 M Ft
2 szoba
94 m2
Eladó családi ház
Eladó családi ház

Darnózseli

79.9 M Ft
4 szoba
104 m2
Eladó családi ház
Eladó családi ház

Nádasdladány

45.9 M Ft
1 + 1 szoba
50 m2
Eladó családi ház
Eladó családi ház

Lesenceistvánd

75 M Ft
2 szoba
90 m2
Eladó családi ház
Eladó családi ház

Badacsonytördemic

180.95 M Ft
4 szoba
160 m2
Eladó családi ház
Eladó családi ház

Dág

39.9 M Ft
2 szoba
80 m2