River Life

Eladó családi ház
Csákberény

Figyelem!

Ez az ingatlan a 2019.07.01-től induló falusi CSOK által támogatott településen található

+ 17 kép 1/20
67 900 000 Ft67.9 M Ft 679 000 Ft/m2
3 szoba
100 m²
építés éve:1965

Részletes adatok

Állapot: Felújított
Telekméret: 2333 m2
Fűtés: Gázkazán
Parkolás: Kocsibeálló
Energetikai besorolás: E

Az OTP Bank lakáshitel ajánlataFizetett hirdetés

+36 20 583
Kruller Petra
referens

Érdekel az OTP Bank kedvezményes lakáshitel ajánlata? *

* A kérdésre „Igen” válasz bejelölése esetén, az „Üzenet küldése” gombra kattintva kijelentem, hogy az OTP Bank Nyrt. Adatkezelési tájékoztatójának tartalmát megismertem és tudomásul vettem.

Eladó családi ház leírása

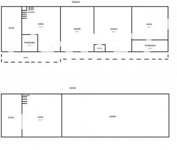
Vh-004780. Csákberényben, a Petőfi Sándor utcában eladó egy 100 m² hasznos alapterületű, felújított, nádtetős ,,parasztház” 2333 m²-es telken.

Az ingatlan utcafronti, kb. 70 m²-es része az 1930-as években épült vályogból és dolomitból, míg a hátsó épületrész 2000-ben készült B30-as falazattal. A régebbi épületrész a bővítés során teljes körű felújításon esett át, amely magában foglalta a víz- és villanyvezetékek, a nyílászárók és a burkolatok cseréjét, a fűtés korszerűsítését, valamint a teljes tetőszerkezet felújítását és szigetelését. Az ingatlan statikailag jó állapotú. Energetikai besorolása: E

A ház autentikus hangulatát a minden helyiségben megjelenő, fa szerkezetű parasztfödém teszi különlegessé.
A fűtést új gázkazán biztosítja radiátoros hőleadással, kiegészítve egy hangulatos kandallóval. Az előtérben hűtő-fűtő klíma is rendelkezésre áll. A villamos hálózat 32 A kapactású. A helyiségek belmagassága 2,5–2,7 méter.

Helyiségek:
• konyha
• nappali
• előtér
• 2 szoba
• 2 fürdőszoba
• konyha-nappali

A házhoz tartozik továbbá egy tároló és egy hangulatos, boltíves pince.

A 2333 m²-es telek gondozott, számos gyümölcsfával beültetett (birs, szilva, körte, cseresznye stb.), valamint egy kerti tároló is megtalálható rajta. Az utcafront szélessége 27 méter.

Eladási irányár: 67,9 millió Ft
Az ingatlan per- és tehermentes.

Ha felkeltette érdeklődését, hívja irodánkat bizalommal, éljen ingyenes, személyre szabott hitelügyintézés szolgáltatásunkkal. Segítünk továbbá adásvételhez szükséges ügyvédi közreműködésben, energetikai tanúsítvány, valamint értékbecslés elkészítésében. ...TOVÁBBI, TÖBBEZRES INGATLAN KÍNÁLAT: www.gdn-ingatlan.hu - GDN azonosító: 394341

Hirdetés feltöltve: 2026. 04. 01. Utoljára módosítva: 2026. 05. 10.

Az ingatlan elhelyezkedése

Cím: Csákberény

Eladó ingatlanok a környékről

Adony
Eladó családi ház

Adony

8 M Ft
2 szoba
30 m²
Csákberény
Eladó családi ház

Csákberény

32 M Ft
1 szoba
26 m²
Előszállás
Eladó ikerház

Előszállás

36 M Ft
6 szoba
240 m²
Zámoly
Eladó telek

Zámoly

7.9 M Ft
3794 m²
0 m²
Csákberény
Eladó családi ház

Csákberény

7.5 M Ft
1 szoba
32 m²
Csákvár
Eladó családi ház

Csákvár

29.9 M Ft
4 szoba
120 m²
Csákberény
Eladó családi ház

Csákberény

32 M Ft
1 szoba
26 m²
Csákberény
Eladó családi ház

Csákberény

75 M Ft
5 szoba
122 m²
Gánt, Gánti út
Eladó családi ház

Gánt

29.9 M Ft
2 + 1 szoba
40 m²
Gárdony, Gárdonyi Géza utca
Eladó családi ház

Gárdony

59 M Ft
3 szoba
100 m²
Csákberény, Zártkert
Eladó családi ház

Csákberény

32 M Ft
1 szoba
26 m²
Pákozd
Eladó telek

Pákozd

29.9 M Ft
845 m²
0 m²
Kulcs
Eladó családi ház

Kulcs

180 M Ft
8 szoba
167 m²
Etyek
Eladó családi ház

Etyek

160 M Ft
6 szoba
228 m²
Mór
Eladó családi ház

Mór

110 M Ft
12 szoba
340 m²
Pusztaszabolcs
Eladó családi ház

Pusztaszabolcs

143.9 M Ft
4 szoba
149 m²
Székesfehérvár
Eladó családi ház

Székesfehérvár

69.9 M Ft
3 szoba
95 m²
Seregélyes
Eladó családi ház

Seregélyes

71.4 M Ft
3 szoba
120 m²
Felcsút, Rákóczi Ferenc utca
Eladó családi ház

Felcsút

32 M Ft
2 + 1 szoba
55 m²
Gárdony
Eladó téglalakás

Gárdony

59.5 M Ft
5 szoba
55 m²
Bakonycsernye
Eladó családi ház

Bakonycsernye

39 M Ft
3 szoba
350 m²
Csákberény
Eladó családi ház

Csákberény

32 M Ft
1 szoba
26 m²
Seregélyes
Eladó családi ház

Seregélyes

55.999 M Ft
4 szoba
128 m²
Lepsény, Róka sétány
Eladó családi ház

Lepsény

64.9 M Ft
5 + 1 szoba
203 m²

Falusi CSOK ingatlanok

Vép
Eladó családi ház

Vép

75.9 M Ft
5 szoba
150 m²
Halimba
Eladó családi ház

Halimba

59.9 M Ft
6 szoba
182 m²
Bakonyszentkirály
Eladó családi ház

Bakonyszentkirály

99.99 M Ft
5 szoba
126 m²
Tápióság
Eladó családi ház

Tápióság

30 M Ft
3 szoba
105 m²
Herend
Eladó családi ház

Herend

144.9 M Ft
7 szoba
285 m²
Badacsonytomaj
Eladó családi ház

Badacsonytomaj

285 M Ft
4 szoba
230 m²
Kunadacs
Eladó családi ház

Kunadacs

80 M Ft
4 szoba
148 m²
Tápiószőlős
Eladó családi ház

Tápiószőlős

9.9 M Ft
3 szoba
0 m²

Falusi CSOK ingatlanok

Szigetújfalu
Eladó családi ház

Szigetújfalu

66 M Ft
3 szoba
118 m²
Balatonkeresztúr, Kaposvári utca
Eladó családi ház

Balatonkeresztúr

81 M Ft
5 szoba
140 m²
Vatta
Eladó családi ház

Vatta

28.3 M Ft
2 szoba
56 m²
Csárdaszállás
Eladó családi ház

Csárdaszállás

11.99 M Ft
3 + 2 szoba
100 m²
Balatonszemes
Eladó téglalakás

Balatonszemes

91.5 M Ft
2 szoba
0 m²
Ibafa
Eladó családi ház

Ibafa

285 M Ft
4 szoba
141 m²
Tótszentmárton
Eladó családi ház

Tótszentmárton

31.5 M Ft
5 szoba
130 m²
Badacsonytomaj
Eladó családi ház

Badacsonytomaj

285 M Ft
4 szoba
230 m²