Avico Greentop

Eladó családi ház
Csabrendek

Figyelem!

Ez az ingatlan a 2019.07.01-től induló falusi CSOK által támogatott településen található

30 000 000 Ft30 M Ft 326 087 Ft/m2
4 szoba
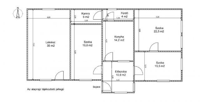
92 m2
építés éve:1960

Részletes adatok

Állapot: Felújítandó
Telekméret: 2619 m2
Fűtés: Egyéb
Energetikai besorolás: Nem adta meg a hirdető

Az OTP Bank lakáshitel ajánlataFizetett hirdetés

+36 30 398
Köteles Judit
referens

Érdekel az OTP Bank kedvezményes lakáshitel ajánlata? *

* A kérdésre „Igen” válasz bejelölése esetén, az „Üzenet küldése” gombra kattintva kijelentem, hogy az OTP Bank Nyrt. Adatkezelési tájékoztatójának tartalmát megismertem és tudomásul vettem.

Eladó családi ház leírása

Csabrendek Nyírespusztán eladó egy régi vidéki stílusú, vegyes falazatú családi ház.

Az ingatlan csendes környezetben fekszik, erdők veszik körül, ahol a mindennapokat nem a forgalom, hanem a természet ritmusa határozza meg.

A lakott alapterület 92 m2, helyiségei: előszoba, konyha, három szoba, fürdő és kamra. Ehhez kapcsolódik egy 35 m2-es, különálló helyiség, amely a lakótér bővítésére vagy akár külön lakrészként is használható. A belső terek arányosak, a ház megőrizte eredeti falusi jellegét, miközben az állapota lehetőséget ad arra, hogy korszerűsítéssel egy kényelmes, élhető otthon váljon belőle.

A fürdőszoba megújult, a vízvezetékek rézből készültek, az elektromos hálózat teljes egészében felújított, ipari áram is rendelkezésre áll. A fűtés fatüzelésű kályhákkal és elektromos panelekkel történik, a melegvizet új villanybojler biztosítja. A tető pala fedésű, állapota átlagos, a nyílászárók fából készültek, részben már cseréltek. A külső felújítás még hátravan, valamint egy kisebb tetőjavítás szükséges.

A ház egy 2619 m2-es telken fekszik, kertjében gyümölcsfák és több melléképület találhatók, köztük pajta, nyári konyha, pince és tárolók. A nyugodt fekvés ideális állattartásra, önellátásra vagy gazdálkodásra.

Ez az ingatlan azok számára lehet jó választás, akik szeretik a régi vidéki házak hangulatát, a csendet és a nyitott tereket, és szívesen alakítják otthonukat saját elképzeléseik mentén, lépésről lépésre.

Elhelyezkedésének köszönhetően két főút irányából is könnyen elérhető. Csabrendek és Sümeg néhány perces autóútra található, ahol minden fontos szolgáltatás (orvosi ellátás, üzletek, iskola) rendelkezésre áll. Tapolca gyorsan elérhető, a Balaton pedig mindössze körülbelül 25 perc.

Egyedi kamatozású, ingatlanvásárlási, - és felújítási hitelek, valamint CSOK és babaváró-hitel ügyintézését is elvégezzük Ön helyett, az OTP Bank hátterével. Otthon Start programmal is hitelezhető.

Amennyiben a hirdetés felkeltette érdeklődését, kérdése van vagy szeretné személyesen megtekinteni, akár hétvégén is, hívjon bizalommal!

Hirdetés feltöltve: 2026. 01. 24. Utoljára módosítva: 2026. 01. 24.

Az ingatlan elhelyezkedése

Cím: Csabrendek

Eladó ingatlanok a környékről

Eladó panellakás
Eladó panellakás

Veszprém

48.9 M Ft
2 szoba
54 m2
Eladó családi ház
Eladó családi ház

Monoszló

1881.355 M Ft
9 szoba
2250 m2
Eladó családi ház
Eladó családi ház

Veszprém

149 M Ft
6 + 1 szoba
243 m2
Eladó családi ház
Eladó családi ház

Veszprém

149 M Ft
4 + 1 szoba
250 m2
Eladó családi ház
Eladó családi ház

Balatonfőkajár, Kossuth utca

56.8 M Ft
7 szoba
195 m2
Eladó családi ház
Eladó családi ház

Pápa

52.99 M Ft
5 szoba
148 m2
Eladó családi ház
Eladó családi ház

Csabrendek

23.9 M Ft
2 szoba
67 m2
Eladó családi ház
Eladó családi ház

Csabrendek

39.8 M Ft
3 szoba
70 m2
Eladó családi ház
Eladó családi ház

Ábrahámhegy

190 M Ft
5 szoba
112 m2
Eladó családi ház
Eladó családi ház

Csabrendek

25.9 M Ft
2 szoba
75 m2
Eladó családi ház
Eladó családi ház

Csabrendek

173 M Ft
4 szoba
165 m2
Eladó családi ház
Eladó családi ház

Balatonfűzfő

270 M Ft
5 + 4 szoba
270 m2
Eladó családi ház
Eladó családi ház

Csabrendek

11 M Ft
1 szoba
41 m2
Eladó családi ház
Eladó családi ház

Veszprém

80 M Ft
3 + 3 szoba
112 m2
Eladó családi ház
Eladó családi ház

Csabrendek

165.55 M Ft
4 szoba
280 m2
Eladó családi ház
Eladó családi ház

Csabrendek

39.8 M Ft
3 szoba
70 m2
Eladó családi ház
Eladó családi ház

Csabrendek

8.9 M Ft
3 szoba
70 m2
Eladó telek
Eladó telek

Köveskál

33 M Ft
5464 m²
Eladó családi ház
Eladó családi ház

Tapolca

205 M Ft
6 szoba
338 m2
Eladó családi ház
Eladó családi ház

Monoszló

1881.355 M Ft
9 szoba
2250 m2
Eladó családi ház
Eladó családi ház

Csabrendek

19.9 M Ft
3 szoba
91 m2
Eladó panellakás
Eladó panellakás

Balatonalmádi

61 M Ft
2 szoba
53 m2
Eladó családi ház
Eladó családi ház

Veszprém

139.8 M Ft
4 szoba
157 m2
Eladó családi ház
Eladó családi ház

Pápa, Hunyadi János utca

39 M Ft
3 szoba
125 m2

Falusi CSOK ingatlanok

Eladó családi ház
Eladó családi ház

Tormafölde

15 M Ft
2 szoba
74 m2
Eladó családi ház
Eladó családi ház

Újlengyel

110 M Ft
4 szoba
121 m2
Eladó családi ház
Eladó családi ház

Balatonudvari

79.9 M Ft
4 szoba
97 m2
Eladó családi ház
Eladó családi ház

Kislippó

16 M Ft
3 szoba
100 m2
Eladó családi ház
Eladó családi ház

Kétpó

14.9 M Ft
1 + 2 szoba
86 m2
Eladó családi ház
Eladó családi ház

Szederkény

107.9 M Ft
6 szoba
224 m2
Eladó családi ház
Eladó családi ház

Újszilvás

5.9 M Ft
1 szoba
31 m2
Eladó családi ház
Eladó családi ház

Magyarszék

48.5 M Ft
3 + 1 szoba
86 m2

Falusi CSOK ingatlanok

Eladó családi ház
Eladó családi ház

Verseg

54 M Ft
2 szoba
92 m2
Eladó családi ház
Eladó családi ház

Magyarszék

48.5 M Ft
3 + 1 szoba
86 m2
Eladó családi ház
Eladó családi ház

Ceglédbercel

67 M Ft
4 szoba
165 m2
Eladó családi ház
Eladó családi ház

Egyed

24.9 M Ft
2 + 1 szoba
56 m2
Eladó családi ház
Eladó családi ház

Pécsvárad

85 M Ft
4 szoba
100 m2
Eladó családi ház
Eladó családi ház

Szarvaskend

26.9 M Ft
2 szoba
83 m2
Eladó családi ház
Eladó családi ház

Gáborján

5.5 M Ft
2 szoba
68 m2
Eladó családi ház
Eladó családi ház

Kenyeri

39.9 M Ft
3 szoba
94 m2