Eladó családi ház
Cegléd

+ 11 kép 1/14
84 100 000 Ft84.1 M Ft 904 301 Ft/m2
4 szoba
93 m2
építés éve:2025

Részletes adatok

Telekméret: 697 m2
Fűtés: Gázkazán
Energetikai besorolás: Nem adta meg a hirdető

Az OTP Bank lakáshitel ajánlataFizetett hirdetés

+36 30 555
Mikus-Gál Vivien Fanni
OTP Ingatlanpont Kft Kecskemét

Érdekel az OTP Bank kedvezményes lakáshitel ajánlata? *

* A kérdésre „Igen” válasz bejelölése esetén, az „Üzenet küldése” gombra kattintva kijelentem, hogy az OTP Bank Nyrt. Adatkezelési tájékoztatójának tartalmát megismertem és tudomásul vettem.

Eladó családi ház leírása

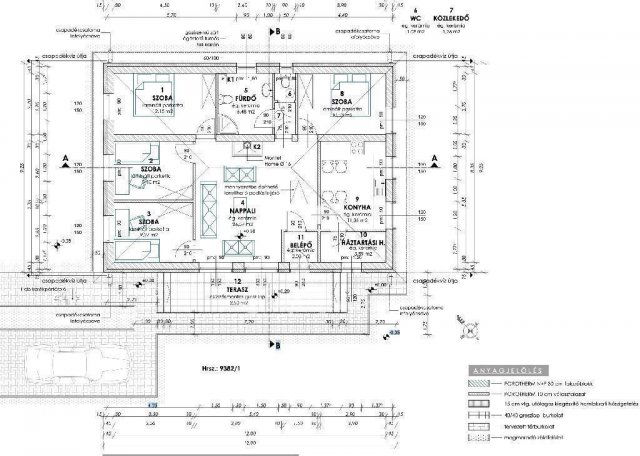
Cegléden eladó egy modern, minden részletében átgondolt új építésű ingatlan. Ez nem egy félig kész ház, hanem kulcsrakész otthon, ahol az alapoktól a tetőig minden a minőségre és a kényelemre lett tervezve. BB energetikai besorolás, alacsony rezsi, környezettudatos megoldások. Saját hőszivattyú és kondenzációs kazán, padlófűtés és radiátorok kombinációja, inverteres klíma beépítve. 10 cm-es hőszigetelés, modern műanyag nyílászárók redőnnyel. Biztonsági bejárati ajtó, terasz fagyálló burkolattal. Telek két utcára nyílik, kényelmes bejárhatóság és nagyobb érték. Burkolatok még választhatók, hidegburkolat 4.000 Ft/négyzetméterig benne az árban, melegburkolat 3.000 Ft/négyzetméterig benne az árban. Helyiségek: nappali, 4 hálószoba, konyha és étkező, fürdőszoba kád előkészítéssel, igény szerint zuhany is, külön WC kézmosóval, kamra, előtér és közlekedő, terasz. Ár: 84,1 millió Ft, akár hitellel is megvásárolható. Ha komolyan gondolod, itt nem lesz felesleges kör, jössz, megnézed, beleszeretsz, és tied lehet. Vásárlást szakszerű tanácsadással segítjük, a hitelügyintézés lebonyolítása pedig egy helyen, gyorsan megoldható.

Hirdetés feltöltve: 2025. 10. 02. Utoljára módosítva: 2025. 10. 02.

4 szobás családi házak ára Cegléden

Ebből az összehasonlításból megtudhatod, hogyan viszonyul a lakás ára a környékbeli családi házak átlagos árához. Ez nem azt jelenti, hogy ennyivel olcsóbb vagy drágább, mint amennyit a lakás ér, hanem hogy ennyivel tér el a környékbeli átlagtól.

Ennek a m² ára
Cegléd m² ár
904 e Ft
556 e Ft -63%
Ennek az ára
Cegléd átlagár
84.1 M Ft m Ft
75.3 m Ft -12%

Az ingatlan elhelyezkedése

Cím: Cegléd

Eladó családi házak a környékről

Eladó családi ház
Eladó családi ház

Budakeszi, Budakeszi kertváros

229 M Ft
10 szoba
450 m2
Eladó családi ház
Eladó családi ház

Kerepes

81.99 M Ft
5 szoba
102 m2
Eladó családi ház
Eladó családi ház

Kerepes

199 M Ft
6 szoba
360 m2
Eladó családi ház
Eladó családi ház

Cegléd

9.9 M Ft
2 szoba
47 m2
Eladó családi ház
Eladó családi ház

Cegléd

75 M Ft
5 szoba
250 m2
Eladó családi ház
Eladó családi ház

Cegléd

75 M Ft
5 szoba
210 m2
Eladó családi ház
Eladó családi ház

Cegléd

51.52 M Ft
5 szoba
92 m2
Eladó családi ház
Eladó családi ház

Cegléd

54.5 M Ft
5 szoba
100 m2
Eladó családi ház
Eladó családi ház

Cegléd

49 M Ft
4 szoba
233 m2
Eladó családi ház
Eladó családi ház

Budaörs, Városközpont utca

119.5 M Ft
5 + 1 szoba
140 m2
Eladó családi ház
Eladó családi ház

Szigetszentmiklós, Városközpont, Tököli út közeli utca

120 M Ft
7 szoba
525 m2
Eladó családi ház
Eladó családi ház

Dunakeszi

250 M Ft
4 szoba
180 m2
Eladó családi ház
Eladó családi ház

Cegléd

39 M Ft
1350 m²
300 m2
Eladó családi ház
Eladó családi ház

Cegléd

89.095 M Ft
5 szoba
173 m2
Eladó családi ház
Eladó családi ház

Érd

164.9 M Ft
5 szoba
192 m2
Eladó családi ház
Eladó családi ház

Dunavarsány

46.9 M Ft
3 + 2 szoba
130 m2
Eladó családi ház
Eladó családi ház

Cegléd

89.5 M Ft
3 szoba
97 m2
Eladó családi ház
Eladó családi ház

Cegléd

85 M Ft
6 szoba
190 m2
Eladó családi ház
Eladó családi ház

Budaörs, Bányász utca

385 M Ft
6 szoba
300 m2
Eladó családi ház
Eladó családi ház

Pécel, Reményik Sándor utca

296 M Ft
6 szoba
396 m2
Eladó családi ház
Eladó családi ház

Budakeszi

130 M Ft
5 szoba
30 m2
Eladó családi ház
Eladó családi ház

Budakeszi, Makkosmária

100 M Ft
1 szoba
10 m2
Eladó családi ház
Eladó családi ház

Gyál, Gyál út

169.9 M Ft
2 szoba
90 m2
Eladó családi ház
Eladó családi ház

Tápiószentmárton

7.9 M Ft
2 + 1 szoba
86 m2

Falusi CSOK ingatlanok

Eladó családi ház
Eladó családi ház

Tass

33.9 M Ft
3 szoba
66 m2
Eladó családi ház
Eladó családi ház

Böhönye, Dózsa körút

20.9 M Ft
5 + 1 szoba
127 m2
Eladó családi ház
Eladó családi ház

Vásárosdombó

14.99 M Ft
2 szoba
69 m2
Eladó téglalakás
Eladó téglalakás

Nyáregyháza

61.5 M Ft
4 szoba
91 m2
Eladó ikerház
Eladó ikerház

Besnyő

89.5 M Ft
1 + 3 szoba
93 m2
Eladó családi ház
Eladó családi ház

Koppányszántó, Fő u 211

9.9 M Ft
2 szoba
55 m2
Eladó családi ház
Eladó családi ház

Magyarszék

48.5 M Ft
3 + 1 szoba
86 m2
Eladó családi ház
Eladó családi ház

Hernádnémeti

19.9 M Ft
2 szoba
62 m2