Seven Pearl

Eladó családi ház
Budapest, XXIII. kerület

+ 17 kép 1/20
89 990 000 Ft89.99 M Ft 430 574 Ft/m2
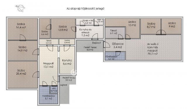
8 szoba
209 m2
építés éve:1960

Részletes adatok

Telekméret: 563 m2
Fűtés: Gázkazán
Energetikai besorolás: Nem adta meg a hirdető

Az OTP Bank lakáshitel ajánlataFizetett hirdetés

+36 30 400
Papp-Horváth Katalin
Otp Ingatlanpont Falk Miksa

Érdekel az OTP Bank kedvezményes lakáshitel ajánlata? *

* A kérdésre „Igen” válasz bejelölése esetén, az „Üzenet küldése” gombra kattintva kijelentem, hogy az OTP Bank Nyrt. Adatkezelési tájékoztatójának tartalmát megismertem és tudomásul vettem.

Eladó családi ház leírása

Eladó családi ház Soroksár csendes, kertvárosi részén ? 3 különálló lakás, kiváló lehetőség befektetésre vagy nagycsaládosoknak!

Budapest XXIII. kerületének egyik legnyugodtabb, kertvárosi részén, Soroksár Ócsai-hegy városrészén kínálunk megvételre egy 563 m2-es telken fekvő, 202 m2-es, három lakásra osztott önálló családi házat.

Az ingatlan összesen 8 szobával rendelkezik, így ideális választás lehet többgenerációs családoknak, bérbeadásra, vagy akár vállalkozás céljára is. A három lakrész külön mérőórákkal ellátott, ezáltal teljesen függetlenül használható.

A ház vegyes falazatú, de nagyobb részt téglaépítésű, így stabil szerkezeti állapotot biztosít. A fűtésről gáz cirkó rendszer gondoskodik, radiátoros hőleadással, amely hatékonyan biztosítja az egyes lakások fűtését a hidegebb hónapokban is.

A környék csendes, nyugodt, kertvárosias hangulatú, ideális környezet a pihenéshez és a mindennapi élethez. A közelben könnyen elérhető a tömegközlekedés, így az ingatlan autóval és busszal egyaránt jól megközelíthető.

Ez a sokoldalúan hasznosítható családi ház ritka lehetőség ezen az elérhető, mégis természetközeli területen!

Ne hagyja ki ezt a lehetőséget ? kérjen időpontot megtekintésre még ma!

Referencia szám: M305355

Hirdetés feltöltve: 2025. 12. 08.

Az ingatlan elhelyezkedése

Cím: Budapest, XXIII. kerület

Eladó ingatlanok a környékről

Eladó téglalakás
Eladó téglalakás

III. kerület, Rómaifürdő, Királyok útja

139 M Ft
3 szoba
65 m2
Eladó garázs
Eladó garázs

XIII. kerület

7.5 M Ft
15 m2
Eladó családi ház
Eladó családi ház

XXIII. kerület, Soroksár-újtelep, Mezőlak utca

37 M Ft
3 szoba
90 m2
Eladó téglalakás
Eladó téglalakás

VII. kerület, Belső Erzsébetváros, Erzsébet körút

160 M Ft
3 szoba
88 m2
Eladó családi ház
Eladó családi ház

XXIII. kerület

268 M Ft
5 szoba
240 m2
Eladó családi ház
Eladó családi ház

XXIII. kerület

125.7 M Ft
7 + 1 szoba
232 m2
Eladó téglalakás
Eladó téglalakás

VI. kerület, Külső Terézváros, Szív utca

119.5 M Ft
3 szoba
94 m2
Eladó üzlethelyiség
Eladó üzlethelyiség

II. kerület, Országút, Margit körút

6.999 M Ft
5 m2
Eladó téglalakás
Eladó téglalakás

VIII. kerület

44.9 M Ft
1 szoba
41 m2
Eladó családi ház
Eladó családi ház

XXIII. kerület

290 M Ft
6 szoba
140 m2
Eladó téglalakás
Eladó téglalakás

VI. kerület, Külső Terézváros, Szófia utca

114.9 M Ft
4 szoba
103 m2
Eladó téglalakás
Eladó téglalakás

VII. kerület, Belső Erzsébetváros, Erzsébet körút

89.9 M Ft
1 + 1 szoba
71 m2
Eladó téglalakás
Eladó téglalakás

VII. kerület, Belső Erzsébetváros, Rózsa utca

170 M Ft
5 szoba
124 m2
Eladó családi ház
Eladó családi ház

XXIII. kerület, Soroksár

86.9 M Ft
4 szoba
150 m2
Eladó téglalakás
Eladó téglalakás

XI. kerület, Gellérthegy, Gyula utca

150 M Ft
2 szoba
56 m2
Eladó családi ház
Eladó családi ház

XXIII. kerület, Karmazsin utca

234.99 M Ft
5 szoba
160 m2
Eladó családi ház
Eladó családi ház

XXIII. kerület

143 M Ft
5 szoba
124 m2
Eladó családi ház
Eladó családi ház

XXIII. kerület

115 M Ft
250 m2
Eladó családi ház
Eladó családi ház

XXIII. kerület, Soroksár, Grassalkovich út

350 M Ft
7 szoba
253 m2
Eladó téglalakás
Eladó téglalakás

I. kerület, Krisztinaváros, Feszty Árpád utca

78.99 M Ft
1 szoba
28 m2
Eladó téglalakás
Eladó téglalakás

III. kerület, Óbudaisziget, Folyamőr utca

76.9 M Ft
1 szoba
25 m2
Eladó téglalakás
Eladó téglalakás

XI. kerület, Gellérthegy, Gombócz Zoltán utca

142 M Ft
2 + 1 szoba
71 m2
Eladó családi ház
Eladó családi ház

XXIII. kerület, Soroksár

350 M Ft
7 szoba
253 m2
Eladó téglalakás
Eladó téglalakás

XIII. kerület, Angyalföld, Fiastyúk utca

39.9 M Ft
1 + 1 szoba
34 m2

Falusi CSOK ingatlanok

Eladó családi ház
Eladó családi ház

Vitnyéd, Petőfi Sándor utca 3

16.71 M Ft
1 + 1 szoba
99 m2
Eladó téglalakás
Eladó téglalakás

Balatonszemes

91.5 M Ft
2 szoba
60 m2
Eladó családi ház
Eladó családi ház

Kisdér

150.8 M Ft
4 szoba
205 m2
Eladó családi ház
Eladó családi ház

Kenyeri

39.9 M Ft
3 szoba
94 m2
Eladó téglalakás
Eladó téglalakás

Balatonszemes

91.5 M Ft
2 szoba
60 m2
Eladó családi ház
Eladó családi ház

Helesfa

17.999 M Ft
2 szoba
74 m2
Eladó családi ház
Eladó családi ház

Tápszentmiklós

64.9 M Ft
5 szoba
110 m2
Eladó családi ház
Eladó családi ház

Hövej

119.9 M Ft
3 szoba
75 m2