Stay Family Park

Eladó családi ház
Budapest, XXI. kerület

+ 16 kép 1/19
179 500 000 Ft179.5 M Ft 1 121 875 Ft/m2
5 szoba
160 m2
építés éve:1968

Részletes adatok

Állapot: Átlagos
Telekméret: 539 m2
Fűtés: Gázkazán
Parkolás: Garázs
Energetikai besorolás: Nem adta meg a hirdető

Az OTP Bank lakáshitel ajánlataFizetett hirdetés

+36 30 381
Fajta Anita
referens

Érdekel az OTP Bank kedvezményes lakáshitel ajánlata? *

* A kérdésre „Igen” válasz bejelölése esetén, az „Üzenet küldése” gombra kattintva kijelentem, hogy az OTP Bank Nyrt. Adatkezelési tájékoztatójának tartalmát megismertem és tudomásul vettem.

Eladó családi ház leírása

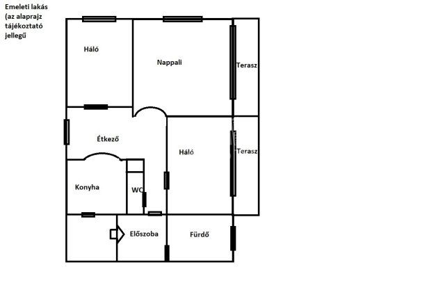
*Különleges lehetőség! 1970-80-as években épült, 3 szintes családi ház eladó!*
Egyedi ajánlat: 2 x 95 nm-es, két külön bejáratú lakás egy ingatlanban!

- *Alsó szint:*
- Fedett teraszról érkezünk az előszobába, 2 szoba, étkező, konyha, spájz, kádas fürdőszoba, külön WC, és tartozik hozzá egy külön bejáratú szoba/tároló
- *Felső szint:*
- 3 szoba, étkező, konyha, zuhanyzós fürdőszoba, külön WC, előszoba

- Műszaki jellemzők:
- Téglából épült, műanyag nyílászárók redőnnyel, szúnyoghálóval
- Alsó szinten és fent is radiátoros fűtés (kazán és vegyestüzelésű kazán) fenti szinten egy klíma
- Melegvíz: villanybojler

Környezet:
-Az ingatlan közel a Dunaparthoz egy szépen gondozott saroktelken épült két ütemben. A kert locsolása fúrt kútról megoldható.
- 30 nm-es garázs az autónak

Érdekel? Szeretnél többet megtudni vagy megtekinteni az ingatlant?
Keress bizalommal! ...TOVÁBBI, TÖBBEZRES INGATLAN KÍNÁLAT: www.gdn-ingatlan.hu - GDN azonosító: 386554

Hirdetés feltöltve: 2025. 08. 26. Utoljára módosítva: 2025. 11. 13.

5 szobás családi házak ára Budapesten

Ebből az összehasonlításból megtudhatod, hogyan viszonyul a lakás ára a környékbeli családi házak átlagos árához. Ez nem azt jelenti, hogy ennyivel olcsóbb vagy drágább, mint amennyit a lakás ér, hanem hogy ennyivel tér el a környékbeli átlagtól.

Ennek a m² ára
XXI. kerület m² ár
Budapest m² ár
1122 e Ft
725 e Ft -55%
970 e Ft -16%
Ennek az ára
XXI. kerület átlagár
Budapest átlagár
179.5 M Ft m Ft
175.5 m Ft -2%
249.1 m Ft 28%

Az ingatlan elhelyezkedése

Cím: Budapest, XXI. kerület

Eladó ingatlanok a környékről

Eladó családi ház
Eladó családi ház

XXI. kerület, Királyerdő

139 M Ft
6 + 1 szoba
230 m2
Eladó téglalakás
Eladó téglalakás

IV. kerület

95 M Ft
2 szoba
60 m2
Eladó családi ház
Eladó családi ház

XXI. kerület

79.99 M Ft
4 szoba
200 m2
Eladó téglalakás
Eladó téglalakás

XI. kerület, Gellérthegy, Gombócz Zoltán utca

142 M Ft
2 + 1 szoba
71 m2
Eladó családi ház
Eladó családi ház

XXI. kerület

139 M Ft
6 + 1 szoba
230 m2
Eladó családi ház
Eladó családi ház

XXI. kerület, Csillagtelep, VÖLGY utca

39.9 M Ft
2 szoba
60 m2
Eladó téglalakás
Eladó téglalakás

III. kerület, Óbudaisziget, Folyamőr utca

76.9 M Ft
1 szoba
25 m2
Eladó téglalakás
Eladó téglalakás

XIV. kerület, Törökőr

33 M Ft
1 szoba
40 m2
Eladó téglalakás
Eladó téglalakás

XI. kerület, Gellérthegy, Gyula utca

150 M Ft
2 szoba
56 m2
Eladó téglalakás
Eladó téglalakás

III. kerület, Óbuda, Szomolnok utca

89.9 M Ft
2 + 2 szoba
96 m2
Eladó családi ház
Eladó családi ház

XXI. kerület, Gyártelep

33.8 M Ft
1 szoba
45 m2
Eladó téglalakás
Eladó téglalakás

VIII. kerület, Palotanegyed, Rákóczi út

190 M Ft
5 szoba
121 m2
Eladó telek
Eladó telek

II. kerület

99 M Ft
666 m²
Eladó családi ház
Eladó családi ház

XXI. kerület, Királyerdő

89.9 M Ft
8 szoba
320 m2
Eladó családi ház
Eladó családi ház

XXII. kerület, Budafok, Baross utca

199 M Ft
6 + 1 szoba
200 m2
Eladó téglalakás
Eladó téglalakás

VI. kerület

350 M Ft
3 szoba
128 m2
Eladó téglalakás
Eladó téglalakás

VII. kerület, Belső Erzsébetváros, Erzsébet körút

89.9 M Ft
1 + 1 szoba
71 m2
Eladó családi ház
Eladó családi ház

XXI. kerület

242.88 M Ft
7 szoba
212 m2
Eladó téglalakás
Eladó téglalakás

VII. kerület, Belső Erzsébetváros, Rózsa utca

170 M Ft
5 szoba
124 m2
Eladó családi ház
Eladó családi ház

XXI. kerület, Királyerdő

120 M Ft
4 + 1 szoba
220 m2
Eladó családi ház
Eladó családi ház

XXI. kerület

242.88 M Ft
7 szoba
212 m2
Eladó családi ház
Eladó családi ház

XXI. kerület

37.99 M Ft
2 szoba
48 m2
Eladó családi ház
Eladó családi ház

XXI. kerület, Királyerdő

119 M Ft
1 + 1 szoba
70 m2
Eladó családi ház
Eladó családi ház

XXI. kerület, Királyerdő, Vadgalamb

34.5 M Ft
4 szoba
197 m2

Falusi CSOK ingatlanok

Eladó családi ház
Eladó családi ház

Ónod, Kossuth út 10

27.499 M Ft
3 + 2 szoba
120 m2
Eladó családi ház
Eladó családi ház

Ábrahámhegy

139 M Ft
4 szoba
106 m2
Eladó családi ház
Eladó családi ház

Velény

6.3 M Ft
2 szoba
60 m2
Eladó családi ház
Eladó családi ház

Kaposgyarmat

695 M Ft
6 szoba
610 m2
Eladó családi ház
Eladó családi ház

Hegyeshalom

85 M Ft
4 + 1 szoba
123 m2
Eladó családi ház
Eladó családi ház

Nagybörzsöny

36 M Ft
2 + 1 szoba
74 m2
Eladó családi ház
Eladó családi ház

Vásárosdombó

14.99 M Ft
2 szoba
69 m2
Eladó családi ház
Eladó családi ház

Karád

44.7 M Ft
3 szoba
100 m2