Aerogate Homes

Eladó családi ház
Budapest, XVIII. kerület

+ 17 kép 1/20
119 800 000 Ft119.8 M Ft 520 870 Ft/m2
3 szoba
230 m²
építés éve:1995

Részletes adatok

Telekméret: 433 m2
Fűtés: Gázkazán
Parkolás: Garázs
Energetikai besorolás: Nem adta meg a hirdető

Az OTP Bank lakáshitel ajánlataFizetett hirdetés

+36 30 919
Laczkovics Attila
referens

Érdekel az OTP Bank kedvezményes lakáshitel ajánlata? *

* A kérdésre „Igen” válasz bejelölése esetén, az „Üzenet küldése” gombra kattintva kijelentem, hogy az OTP Bank Nyrt. Adatkezelési tájékoztatójának tartalmát megismertem és tudomásul vettem.

Eladó családi ház leírása

Eladó háromszintes önálló családi ház 18.kerületben.

Budapest 18.kerület Ferihegy városrészben kínálunk megvételre egy nettó 230 nm-es, háromszintes,téglából épült, önálló családi házat
433 nm-es telken.
A telken található még, egy különálló garázs.
A nyílászárók háromrétegű üvegezésű a jobb hangszigetelés érdekében.
A fűtést gáz cirkó biztosítja radiátoros hőleadással.

Az ingatlan beosztása-
földszint:
- előszoba 7nm,
- nappali 23,1nm,
- konyha 7,5nm,
- étkező 15,9nm,
- kamra 2,3nm,
- fürdőszoba 5,2nm,
- WC 2,2nm,
---------------------------
nettó: 63,2nm

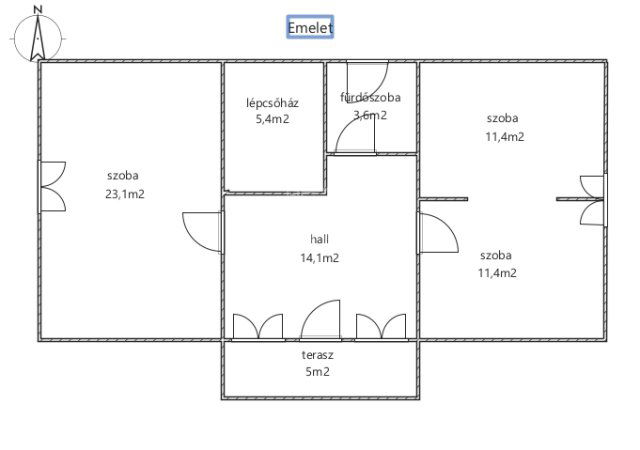
Emelet:
- lépcsőház 5,4nm,
- hall 14,1nm,
- fürdőszoba+WC 3,6nm,
- szoba 23,1nm,
- szoba 11,4nm,
- szoba 11,4nm,
- terasz 5nm,
-----------------------------
nettó:74nm

Szuterén:
- kazánház 9,6nm,
- tároló 13,8nm,
- WC,mosdó 1,6nm,
- "dühöngő"szabadidőszoba 68,7nm,
------------------------------
nettó: 93,7nm

Vonat, busz megálló a közelben. Szemere István téri játszótér sétatávolságra található.

Amivel segítjük az Ön ingatlanvásárlását:
- ingyenes hitelügyintézés,
- jogi háttér,
- földhivatali ügyintézés,
- energetikai tanúsítvány,
- a vevő számára az ingatlanközvetítés ingyenes.

Irodánk 30 éves szakmai tapasztalattal áll ügyfelei rendelkezésére!

Várom szíves megkeresését! ...TOVÁBBI, TÖBBEZRES INGATLAN KÍNÁLAT: www.gdn-ingatlan.hu - GDN azonosító: 393578

Hirdetés feltöltve: 2026. 03. 12. Utoljára módosítva: 2026. 04. 01.

3 szobás családi házak ára Budapesten

Ebből az összehasonlításból megtudhatod, hogyan viszonyul a lakás ára a környékbeli családi házak átlagos árához. Ez nem azt jelenti, hogy ennyivel olcsóbb vagy drágább, mint amennyit a lakás ér, hanem hogy ennyivel tér el a környékbeli átlagtól.

Ennek a m² ára
XVIII. kerület m² ár
Budapest m² ár
521 e Ft
1115 e Ft 53%
1124 e Ft 54%
Ennek az ára
XVIII. kerület átlagár
Budapest átlagár
119.8 M Ft m Ft
100.1 m Ft -20%
103.2 m Ft -16%

Az ingatlan elhelyezkedése

Cím: Budapest, XVIII. kerület

Eladó ingatlanok a környékről

XIII. kerület, Angyalföld, Dévai utca Lőportár 17
Eladó téglalakás

Budapest, XIII. kerület

88.836 M Ft
2 szoba
43 m²
XVIII. kerület, Lónyaytelep, Széchenyi István utca
Eladó családi ház

Budapest, XVIII. kerület

94.9 M Ft
4 szoba
128 m²
XVIII. kerület
Eladó családi ház

Budapest, XVIII. kerület

199.9 M Ft
4 szoba
510 m²
XIII. kerület, Angyalföld, Dévai utca Lőportár 17
Eladó téglalakás

Budapest, XIII. kerület

87.733 M Ft
2 szoba
43 m²
XVIII. kerület
Eladó családi ház

Budapest, XVIII. kerület

260 M Ft
8 + 1 szoba
448 m²
XVIII. kerület, Nagybani piac közelében, kertvárosi részen
Eladó családi ház

Budapest, XVIII. kerület

260 M Ft
8 + 2 szoba
600 m²
XIV. kerület
Eladó panellakás

Budapest, XIV. kerület

64.9 M Ft
2 szoba
46 m²
XVIII. kerület
Eladó családi ház

Budapest, XVIII. kerület

145.8 M Ft
4 szoba
130 m²
XIII. kerület, Angyalföld, Dévai utca Lőportár 17
Eladó téglalakás

Budapest, XIII. kerület

69.483 M Ft
1 szoba
32 m²
XVIII. kerület
Eladó családi ház

Budapest, XVIII. kerület

260 M Ft
8 szoba
650 m²
IX. kerület
Eladó téglalakás

Budapest, IX. kerület

89.9 M Ft
3 szoba
84 m²
XVIII. kerület
Eladó családi ház

Budapest, XVIII. kerület

260 M Ft
8 + 1 szoba
448 m²
XVIII. kerület, Ganztelep, Sió utca
Eladó családi ház

Budapest, XVIII. kerület

160 M Ft
3 + 1 szoba
156 m²
XVIII. kerület
Eladó családi ház

Budapest, XVIII. kerület

140 M Ft
6 szoba
193 m²
XVIII. kerület
Eladó családi ház

Budapest, XVIII. kerület

209.6 M Ft
8 szoba
304 m²
XIII. kerület, Angyalföld, Dévai utca Lőportár 17
Eladó téglalakás

Budapest, XIII. kerület

89.889 M Ft
2 szoba
45 m²
XVIII. kerület
Eladó családi ház

Budapest, XVIII. kerület

249 M Ft
4 szoba
164 m²
XV. kerület
Eladó panellakás

Budapest, XV. kerület

63.5 M Ft
2 szoba
53 m²
XIII. kerület, Angyalföld, Dévai utca Lőportár 17
Eladó téglalakás

Budapest, XIII. kerület

83.73 M Ft
2 szoba
40 m²
XV. kerület
Eladó családi ház

Budapest, XV. kerület

64.9 M Ft
1 szoba
53 m²
XVIII. kerület
Eladó családi ház

Budapest, XVIII. kerület

330 M Ft
7 szoba
360 m²
XIII. kerület, Angyalföld, Dévai utca Lőportár 17
Eladó téglalakás

Budapest, XIII. kerület

87.287 M Ft
2 szoba
42 m²
XVIII. kerület
Eladó családi ház

Budapest, XVIII. kerület

330 M Ft
7 szoba
360 m²
XVIII. kerület
Eladó panellakás

Budapest, XVIII. kerület

57.5 M Ft
3 szoba
59 m²

Falusi CSOK ingatlanok

Nyírtura
Eladó családi ház

Nyírtura

99 M Ft
4 szoba
280 m²
Szőlősgyörök
Eladó családi ház

Szőlősgyörök

29.9 M Ft
3 szoba
85 m²
Bag
Eladó családi ház

Bag

116 M Ft
5 + 1 szoba
148 m²
Enese
Eladó családi ház

Enese

94.99 M Ft
3 + 1 szoba
124 m²
Törtel
Eladó családi ház

Törtel

33 M Ft
3 szoba
100 m²
Levelek
Eladó családi ház

Levelek

74 M Ft
7 + 1 szoba
190 m²
Tibolddaróc
Eladó családi ház

Tibolddaróc

12 M Ft
2 szoba
56 m²
Bag
Eladó ikerház

Bag

93 M Ft
3 szoba
67 m²