Oasis Residence

Eladó családi ház
Budapest, XVIII. kerület

+ 9 kép 1/12
77 000 000 Ft77 M Ft 700 000 Ft/m2
3 + 1 szoba
110 m²
építés éve:1980

Részletes adatok

Állapot: Felújítandó
Telekméret: 413 m2
Fűtés: Elektromos
Energetikai besorolás: Nem adta meg a hirdető
Zenga Premier

Friss hirdetések, amiket nem találsz meg más ingatlankereső portálon.

Fedezd fel elsőként a Zenga Premier címkés eladó ingatlanokat!

További részletek a zenga.hu-n

Az OTP Bank lakáshitel ajánlataFizetett hirdetés

+36 70 675
Rigóné Varga Andrea
referens

Érdekel az OTP Bank kedvezményes lakáshitel ajánlata? *

* A kérdésre „Igen” válasz bejelölése esetén, az „Üzenet küldése” gombra kattintva kijelentem, hogy az OTP Bank Nyrt. Adatkezelési tájékoztatójának tartalmát megismertem és tudomásul vettem.

Eladó családi ház leírása

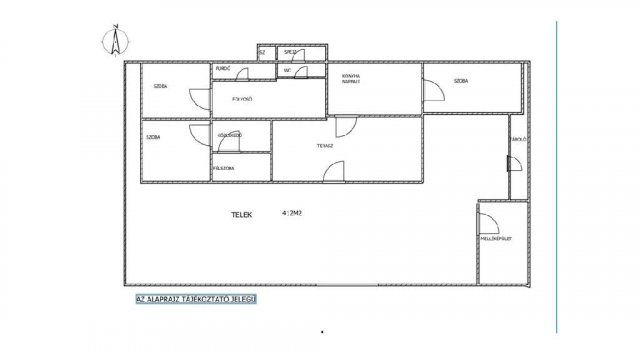
Eladó Budapest XVIII. kerületének kedvelt, családbarát részén, Pestszentlőrincen egy 110 m2-es, részlegesen felújított családi ház 412 m2-es telekkel.
Az ingatlan tágas és praktikus elrendezésű: három szoba + fél szoba, amerikai konyhás nappali, fürdőszoba, külön WC és spejz található benne. A 16 m2-es fedett terasz tökéletes helyszín közös családi pihenésekhez és kerti beszélgetésekhez.
A ház komfortjáról három hűtő-fűtő klíma gondoskodik, illetve H-tarifás besorolása miatt kedvező rezsiköltséget biztosít. A telken nyílt kocsibeálló áll rendelkezésre, így az autóval való beállás megoldott.
Elhelyezkedése kifejezetten előnyös: rövid sétával több buszjárat is elérhető, amelyek négy irányba biztosítanak gyors közlekedést Pesterzsébet, Rákoskeresztúr, Kőbánya-Kispest és Ferihegy Vecsés felé. A környék csendes, mégis központi, teljes infrastruktúrával: óvodák, iskolák, boltok, szolgáltatások könnyen megközelíthetők.
Ideális választás azoknak a családoknak, akik kényelmes, jó elhelyezkedésű, jól alakítható otthont keresnek Pestszentlőrinc szívében.

Hirdetés feltöltve: 2026. 03. 03. Utoljára módosítva: 2026. 03. 03.

4 szobás családi házak ára Budapesten

Ebből az összehasonlításból megtudhatod, hogyan viszonyul a lakás ára a környékbeli családi házak átlagos árához. Ez nem azt jelenti, hogy ennyivel olcsóbb vagy drágább, mint amennyit a lakás ér, hanem hogy ennyivel tér el a környékbeli átlagtól.

Ennek a m² ára
XVIII. kerület m² ár
Budapest m² ár
700 e Ft
988 e Ft 29%
1095 e Ft 36%
Ennek az ára
XVIII. kerület átlagár
Budapest átlagár
77 M Ft m Ft
132.6 m Ft 42%
154.8 m Ft 50%

Az ingatlan elhelyezkedése

Cím: Budapest, XVIII. kerület

Eladó ingatlanok a környékről

VIII. kerület
Eladó téglalakás

Budapest, VIII. kerület

79 M Ft
2 + 1 szoba
79 m²
XVIII. kerület
Eladó családi ház

Budapest, XVIII. kerület

330 M Ft
7 szoba
360 m²
XVIII. kerület, Ganztelep
Eladó családi ház

Budapest, XVIII. kerület

160 M Ft
3 + 1 szoba
156 m²
X. kerület
Eladó ikerház

Budapest, X. kerület

145 M Ft
4 + 1 szoba
122 m²
XXIII. kerület
Eladó telek

Budapest, XXIII. kerület

94.9 M Ft
1240 m²
0 m²
XVIII. kerület
Eladó családi ház

Budapest, XVIII. kerület

162 M Ft
5 szoba
195 m²
XIX. kerület
Eladó panellakás

Budapest, XIX. kerület

0.21 M Ft
1 szoba
32 m²
XVIII. kerület, Kossuth Ferenc telep, Brigád utca
Eladó családi ház

Budapest, XVIII. kerület

79.99 M Ft
4 szoba
88 m²
XVIII. kerület, Bókaytelep
Eladó családi ház

Budapest, XVIII. kerület

162 M Ft
5 szoba
195 m²
XVIII. kerület
Eladó családi ház

Budapest, XVIII. kerület

220 M Ft
4 szoba
200 m²
XVIII. kerület, Újpéteritelep
Eladó családi ház

Budapest, XVIII. kerület

330 M Ft
7 szoba
360 m²
XVIII. kerület, Erdőskert
Eladó családi ház

Budapest, XVIII. kerület

199.5 M Ft
5 szoba
296 m²
XVIII. kerület, Bókaytelep
Eladó családi ház

Budapest, XVIII. kerület

158 M Ft
6 szoba
192 m²
XVIII. kerület, Lónyaytelep, Széchenyi István utca
Eladó családi ház

Budapest, XVIII. kerület

94.9 M Ft
4 szoba
128 m²
XVIII. kerület, Újpéteritelep, Nagybani piac közelében, kertvárosi részen
Eladó családi ház

Budapest, XVIII. kerület

260 M Ft
8 + 2 szoba
600 m²
IX. kerület
Eladó téglalakás

Budapest, IX. kerület

139.5 M Ft
2 szoba
52 m²
XIV. kerület
Eladó téglalakás

Budapest, XIV. kerület

75 M Ft
2 szoba
39 m²
XVIII. kerület, Szent Imre kertváros, Üllői út
Eladó családi ház

Budapest, XVIII. kerület

170 M Ft
3 szoba
284 m²
XII. kerület
Eladó téglalakás

Budapest, XII. kerület

700 M Ft
5 szoba
524 m²
VII. kerület
Eladó téglalakás

Budapest, VII. kerület

90 M Ft
2 szoba
69 m²
VIII. kerület
Eladó téglalakás

Budapest, VIII. kerület

0.23 M Ft
1 + 1 szoba
40 m²
VII. kerület
Eladó téglalakás

Budapest, VII. kerület

105 M Ft
2 szoba
42 m²
XIV. kerület, Alsórákos
Eladó téglalakás

Budapest, XIV. kerület

129 M Ft
3 szoba
92 m²
VII. kerület
Eladó téglalakás

Budapest, VII. kerület

104 M Ft
5 szoba
129 m²

Falusi CSOK ingatlanok

Úri
Eladó családi ház

Úri

149 M Ft
5 szoba
279 m²
Csemő
Eladó családi ház

Csemő

89 M Ft
4 szoba
140 m²
Tatárszentgyörgy
Eladó családi ház

Tatárszentgyörgy

67 M Ft
4 szoba
92 m²
Máriapócs
Eladó családi ház

Máriapócs

22 M Ft
2 szoba
84 m²
Újszilvás
Eladó családi ház

Újszilvás

49.9 M Ft
8 szoba
310 m²
Hosszúhetény
Eladó családi ház

Hosszúhetény

44.9 M Ft
3 szoba
98 m²
Felsőlajos
Eladó családi ház

Felsőlajos

100 M Ft
4 szoba
140 m²
Galgahévíz
Eladó családi ház

Galgahévíz

38 M Ft
3 szoba
101 m²