BAM Living

Eladó családi ház
Budapest, XVIII. kerület

+ 17 kép 1/20
114 900 000 Ft114.9 M Ft 809 155 Ft/m2
4 + 2 szoba
142 m²
építés éve:1970

Részletes adatok

Állapot: Átlagos
Telekméret: 560 m2
Fűtés: Gázkazán
Közmű: Víz, Gáz, Villany, Csatorna
Energetikai besorolás: Nem adta meg a hirdető

Az OTP Bank lakáshitel ajánlataFizetett hirdetés

+36 20 965
Puha Katalin
referens

Érdekel az OTP Bank kedvezményes lakáshitel ajánlata? *

* A kérdésre „Igen” válasz bejelölése esetén, az „Üzenet küldése” gombra kattintva kijelentem, hogy az OTP Bank Nyrt. Adatkezelési tájékoztatójának tartalmát megismertem és tudomásul vettem.

Eladó családi ház leírása

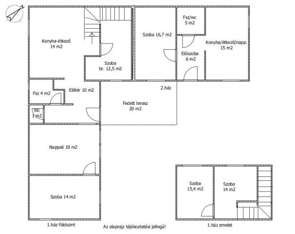
Befektetők, családosok, összeköltözők figyelem! Eladó két generáció számára is alkalmas, nettó 142 nm-es családi ház Budapest, XVIII. kerületében,Bókay telepen, a Zila kávéház közelében! A ház részben már felújított (villanyvezetékek, nyílászárók, tető, csatorna), két külön bejáratú önálló lakrészből áll, egy belső kétszintes nettó 100nm-es, és egy nettó 42 nm-es lakásból - külön-külön villanyórával, közös víz-, és gázórával. A nagyobb lakásban nappali és 3 +1/2 szoba, előtér, konyha-étkező, fürdőszoba, wc található, míg a kisebben a nappali-konyha-étkező mellett 1 hálószoba, tágas előtér, fürdőszoba és wc. Nyáron, a forró napsütésben egy kb. 20 nm-es fedett terasz ad árnyékot. Otthon Start Programra alkalmas, ingatlanjogilag rendezett, hitelezhető. Önálló hrsz-ú, 560 nm-es telek tartozik hozzá. Nagyszerű megoldás lehet összeköltözők vagy nagycsaládosok számára, de befektetési lehetőségnek is kiváló!
Lokáció szempontjából szintén kiváló: 2-3 perces sétára az 50-es villamos, a 93,93A, 236, 236A, 193E, 217, 182,182A, 183, 184, 950, A,577-es buszok megállói, melyekkel akár Kőbánya- Kispest vagy a Határ úti metrómegálló rövid idő alatt megközelíthető. A közelben - sétatávolságra - iskola, ovi, gimnázium, vásárlási és sportolási lehetőségek, önkormányzat, piac, orvosi rendelő...minden, ami komfortossá tehetia hétköznapokat!
Ügyfeleink számára teljes körű ügyintézéssel állunk rendelkezésre! Kínálatunkból választott ingatlan finanszírozásához kedvezményes hitelmegoldásokat kínálunk, illetve az adásvételi szerződés megkötéséhez megbízható ügyvédi közreműködést is tudunk biztosítani!
Ha hirdetésünk felkeltette érdeklődését, kérem hívjon bizalommal a hét bármely napján!

Hirdetés feltöltve: 2026. 01. 22. Utoljára módosítva: 2026. 02. 08.

Az ingatlan elhelyezkedése

Cím: Budapest, XVIII. kerület

Eladó ingatlanok a környékről

XVIII. kerület
Eladó ikerház

Budapest, XVIII. kerület

195 M Ft
4 szoba
150 m²
XVIII. kerület
Eladó családi ház

Budapest, XVIII. kerület

148 M Ft
6 szoba
179 m²
XVIII. kerület
Eladó családi ház

Budapest, XVIII. kerület

260 M Ft
8 szoba
650 m²
VII. kerület, Külső Erzsébetváros, Nefelejcs utca
Eladó téglalakás

Budapest, VII. kerület

42 M Ft
1 + 1 szoba
15 m²
XVIII. kerület, Ganztelep, Sió utca
Eladó családi ház

Budapest, XVIII. kerület

160 M Ft
3 + 1 szoba
156 m²
XVIII. kerület, Erdőskert
Eladó családi ház

Budapest, XVIII. kerület

199.5 M Ft
5 szoba
296 m²
XVIII. kerület
Eladó családi ház

Budapest, XVIII. kerület

140 M Ft
6 szoba
193 m²
XVIII. kerület
Eladó ikerház

Budapest, XVIII. kerület

147 M Ft
5 szoba
149 m²
XVI. kerület
Eladó téglalakás

Budapest, XVI. kerület

67.99 M Ft
2 szoba
49 m²
XVIII. kerület
Eladó családi ház

Budapest, XVIII. kerület

220 M Ft
4 szoba
200 m²
V. kerület
Eladó téglalakás

Budapest, V. kerület

116 M Ft
2 + 1 szoba
55 m²
XVIII. kerület
Eladó panellakás

Budapest, XVIII. kerület

88.9 M Ft
3 szoba
73 m²
VII. kerület, Külső Erzsébetváros, Nefelejcs utca
Eladó téglalakás

Budapest, VII. kerület

86.5 M Ft
2 szoba
57 m²
XVIII. kerület, Újpéteritelep
Eladó családi ház

Budapest, XVIII. kerület

330 M Ft
7 szoba
360 m²
XVIII. kerület, Szemeretelep, Szurmay tábornok utca
Eladó családi ház

Budapest, XVIII. kerület

160 M Ft
5 szoba
220 m²
XVIII. kerület, Ganztelep
Eladó családi ház

Budapest, XVIII. kerület

160 M Ft
3 + 1 szoba
156 m²
VII. kerület
Eladó téglalakás

Budapest, VII. kerület

95 M Ft
3 szoba
73 m²
IV. kerület, Újpest
Eladó téglalakás

Budapest, IV. kerület

110 M Ft
3 szoba
89 m²
XVIII. kerület, Lónyaytelep, Széchenyi István utca
Eladó családi ház

Budapest, XVIII. kerület

94.9 M Ft
4 szoba
128 m²
XVIII. kerület, Újpéteritelep, Nagybani piac közelében, kertvárosi részen
Eladó családi ház

Budapest, XVIII. kerület

260 M Ft
8 + 2 szoba
600 m²
VI. kerület
Eladó téglalakás

Budapest, VI. kerület

49.9 M Ft
1 szoba
26 m²
IX. kerület
Eladó téglalakás

Budapest, IX. kerület

55 M Ft
1 szoba
24 m²
XVIII. kerület, Gloriett-telep
Eladó családi ház

Budapest, XVIII. kerület

145.8 M Ft
4 szoba
130 m²
XVIII. kerület
Eladó családi ház

Budapest, XVIII. kerület

330 M Ft
7 szoba
360 m²

Falusi CSOK ingatlanok

Bugac
Eladó családi ház

Bugac

55 M Ft
3 szoba
90 m²
Balatonszemes
Eladó téglalakás

Balatonszemes

125.2 M Ft
2 szoba
50 m²
Tatárszentgyörgy
Eladó családi ház

Tatárszentgyörgy

67 M Ft
4 szoba
92 m²
Balatonszemes
Eladó téglalakás

Balatonszemes

119.9 M Ft
2 szoba
81 m²
Szentmártonkáta
Eladó családi ház

Szentmártonkáta

45.9 M Ft
4 szoba
95 m²
Úrkút
Eladó családi ház

Úrkút

94.9 M Ft
4 szoba
186 m²
Pécsvárad
Eladó családi ház

Pécsvárad

189 M Ft
7 szoba
618 m²
Hosszúpereszteg
Eladó családi ház

Hosszúpereszteg

27.9 M Ft
4 szoba
121 m²