City Pearl

Eladó családi ház
Budapest, XVIII. kerület

+ 13 kép 1/16
84 900 000 Ft84.9 M Ft 628 889 Ft/m2
4 szoba
135 m2
építés éve:1993

Részletes adatok

Állapot: Átlagos
Telekméret: 263 m2
Fűtés: Egyéb
Energetikai besorolás: Nem adta meg a hirdető

Az OTP Bank lakáshitel ajánlataFizetett hirdetés

+36 30 952
Rezsonya Ildikó
referens

Érdekel az OTP Bank kedvezményes lakáshitel ajánlata? *

* A kérdésre „Igen” válasz bejelölése esetén, az „Üzenet küldése” gombra kattintva kijelentem, hogy az OTP Bank Nyrt. Adatkezelési tájékoztatójának tartalmát megismertem és tudomásul vettem.

Eladó családi ház leírása

Főbb jellemzők:

- Telek területe: 263 m²
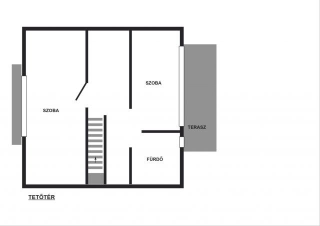
- Hasznos alapterület: 135 m² (70 m² alsó szint + 65 m² tetőtér)
- Helyiségek (alsó szint): nappali, hálószoba, konyha, fürdőszoba
- Tetőtér: beépíthető, válaszfalakkal – 2 szoba, fürdőszoba, konyha kialakítható. Így akár kétgenerációssá is átalakítható.
- Terasz: 10 m² alsó szint + 5 m² tetőtér
- Garázs és pince a ház alatt
- Műanyag nyílászárók az alsó szinten
- Fűtés: gázkazán

Környék:

A ház nyugodt, családias környezetben helyezkedik el, mégis minden fontos szolgáltatás elérhető a közelben.
Iskola, óvoda, buszmegálló és vasútállomás gyalogosan néhány percre található, így a belváros és a környező városrészek is könnyen megközelíthetők.

Miért érdemes megnézni?

Ez az ingatlan ideális választás azok számára, akik csendes, zöldövezeti környezetben szeretnének élni, és egy bővíthető otthonban látják meg a lehetőséget.
A tetőtér befejezése lehetőséget ad arra, hogy mindenki a saját ízlésére formálja új otthonát.

Irányár: 84 900 000 Ft

További információért és megtekintésért hívjon bizalommal!

Hirdetés feltöltve: 2025. 10. 28. Utoljára módosítva: 2025. 12. 08.

4 szobás családi házak ára Budapesten

Ebből az összehasonlításból megtudhatod, hogyan viszonyul a lakás ára a környékbeli családi házak átlagos árához. Ez nem azt jelenti, hogy ennyivel olcsóbb vagy drágább, mint amennyit a lakás ér, hanem hogy ennyivel tér el a környékbeli átlagtól.

Ennek a m² ára
XVIII. kerület m² ár
Budapest m² ár
629 e Ft
969 e Ft 35%
1064 e Ft 41%
Ennek az ára
XVIII. kerület átlagár
Budapest átlagár
84.9 M Ft m Ft
136.7 m Ft 38%
153.4 m Ft 45%

Az ingatlan elhelyezkedése

Cím: Budapest, XVIII. kerület

Eladó ingatlanok a környékről

Eladó téglalakás
Eladó téglalakás

XIV. kerület, Ilka utca

63.9 M Ft
1 + 1 szoba
47 m2
Eladó téglalakás
Eladó téglalakás

III. kerület, Rómaifürdő

195 M Ft
5 szoba
130 m2
Eladó családi ház
Eladó családi ház

XVIII. kerület

105 M Ft
6 szoba
180 m2
Eladó családi ház
Eladó családi ház

XIX. kerület, Kispest, Arpád utca

69 M Ft
2 szoba
60 m2
Eladó családi ház
Eladó családi ház

XVIII. kerület, Bókay utca

489 M Ft
4 szoba
295 m2
Eladó ikerház
Eladó ikerház

XX. kerület

122 M Ft
5 szoba
122 m2
Eladó téglalakás
Eladó téglalakás

VII. kerület, Belső Erzsébetváros, Erzsébet körút

89.9 M Ft
1 + 1 szoba
71 m2
Eladó téglalakás
Eladó téglalakás

XIV. kerület

81 M Ft
2 szoba
60 m2
Eladó családi ház
Eladó családi ház

XVIII. kerület

79.99 M Ft
4 szoba
88 m2
Eladó téglalakás
Eladó téglalakás

V. kerület, Váci utca

179 M Ft
3 szoba
86 m2
Eladó családi ház
Eladó családi ház

XVIII. kerület

289.9 M Ft
11 szoba
300 m2
Eladó családi ház
Eladó családi ház

XVIII. kerület

94.9 M Ft
4 szoba
128 m2
Eladó családi ház
Eladó családi ház

XVIII. kerület, Újpéteritelep, Ady Endre utca

125.99 M Ft
4 szoba
130 m2
Eladó családi ház
Eladó családi ház

XVIII. kerület

220 M Ft
4 szoba
200 m2
Eladó panellakás
Eladó panellakás

XI. kerület, Kelenföld, Mérnök utca

0.24 M Ft
2 szoba
48 m2
Eladó családi ház
Eladó családi ház

XVIII. kerület, Bókaytelep

158 M Ft
6 szoba
192 m2
Eladó családi ház
Eladó családi ház

XVIII. kerület, Darányi Ignác utca

169.9 M Ft
6 szoba
192 m2
Eladó családi ház
Eladó családi ház

XVIII. kerület, Szent Imre kertváros, Üllői út

170 M Ft
3 szoba
284 m2
Eladó családi ház
Eladó családi ház

XVIII. kerület, Bókaytelep, Üllői út

150 M Ft
6 szoba
237 m2
Eladó téglalakás
Eladó téglalakás

VI. kerület, Szófia utca

139.9 M Ft
3 szoba
97 m2
Eladó családi ház
Eladó családi ház

XVIII. kerület, Kossuth Ferenc telep, Brigád utca

79.99 M Ft
4 szoba
88 m2
Eladó családi ház
Eladó családi ház

XVIII. kerület, Erdőskert

280 M Ft
5 szoba
213 m2
Eladó családi ház
Eladó családi ház

XXII. kerület, Budafok, Baross utca

199 M Ft
6 + 1 szoba
200 m2
Eladó téglalakás
Eladó téglalakás

VIII. kerület, Palotanegyed, Rákóczi út

190 M Ft
5 szoba
121 m2

Falusi CSOK ingatlanok

Eladó családi ház
Eladó családi ház

Tápiószőlős

69 M Ft
3 szoba
77 m2
Eladó családi ház
Eladó családi ház

Dáka

69.125 M Ft
5 szoba
135 m2
Eladó családi ház
Eladó családi ház

Kemeneshőgyész

8 M Ft
2 szoba
60 m2
Eladó családi ház
Eladó családi ház

Nemesszentandrás

75 M Ft
4 szoba
164 m2
Eladó családi ház
Eladó családi ház

Tapsony

10 M Ft
2 szoba
57 m2
Eladó családi ház
Eladó családi ház

Tapsony

23.8 M Ft
3 szoba
130 m2
Eladó családi ház
Eladó családi ház

Farmos

38.9 M Ft
2 szoba
46 m2
Eladó családi ház
Eladó családi ház

Somogygeszti

38.6 M Ft
3 + 1 szoba
98 m2