City Pearl

Eladó családi ház
Budapest, XVII. kerület, Rákosliget

+ 17 kép 1/20
399 000 000 Ft399 M Ft 1 655 602 Ft/m2
5 szoba
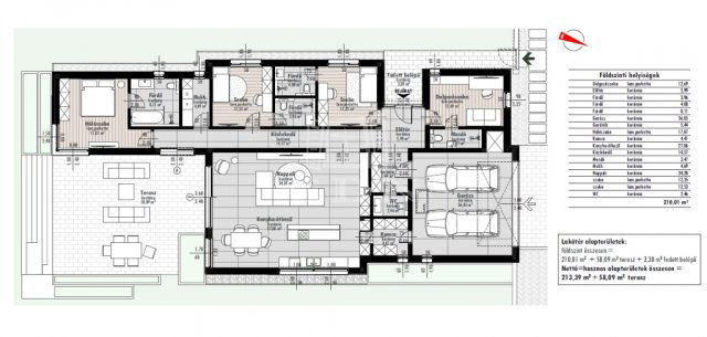
241 m2
építés éve:2024

Részletes adatok

Telekméret: 1274 m2
Fűtés: Egyéb
Parkolás: Garázs
Energetikai besorolás: Nem adta meg a hirdető

Az OTP Bank lakáshitel ajánlataFizetett hirdetés

+36 20 979
Varga István
referens

Érdekel az OTP Bank kedvezményes lakáshitel ajánlata? *

* A kérdésre „Igen” válasz bejelölése esetén, az „Üzenet küldése” gombra kattintva kijelentem, hogy az OTP Bank Nyrt. Adatkezelési tájékoztatójának tartalmát megismertem és tudomásul vettem.

Eladó családi ház leírása

ÚJ LUXUS INGATLAN XVII. KERÜLETBEN !!!

Megvételre kínálok Budapest XVII. kerület Rákosliget részen, Szőlőliget Öko lakóparkban, 1274nm-es telken, nettó 241nm-es, bruttó 271nm-es, 4 szoba + amerikaikonyhás nappalival rendelkező, új építésű, gyönyörű luxus ingatlant!

Épület Műszaki paraméterei:

Alapozás: a lakóépület alá vasalt sávalap készül C30/37-XC1 minőségű betonból, maximális
szemcseátmérő 16 mm, terülési osztály: F3.
A vasalt sávalapra két sor 30-as zsalukő kerül, amely össze lesz vasalva a sávalapokkal utólagos
tüskézéssel, valamint, az erre kerülő vasalt padozaLal.

Felmenő szerkezet: az épület 25 cm vastag Porotherm blokktégla falazattal és a falazatba
rejtett monolit vasbeton pillérekkel épül, a terveknek megfelelően.

Szigetelés: a vízszigetelés és a függőleges talajnedvesség elleni szigetelés oxidbitumenes
szigetelőlemezzel és 10 cm vastag lépésálló hőszigeteléssel készül.

Teherhordó falak: 25 cm vastag Porotherm blokktégla falazat készül, javított falazó
mészhabarcsba rakva. Az 50 cm-nél rövidebb hosszúságú teherhordó falak monolit vasbeton
pillérekként kerülnek kialakításra, melyek közül a homlokzatiak, a külső oldali teljes
homlokzati hőszigetelésen kívül, +5 cm-es XPS hőszigeteléssel ellátottan készülnek.

Homlokzati felületképzés: a homlokzati falfelület 15 cm vastag grafitos hőszigetelését
törtfehér színű vékonyvakolatot kap; a lábazatra zártcellás hőszigetelés készül, a terepszinttől
50 cm magasságig. A hőszigetelés rögzítése hőhídmentes dűbelek alkalmazásával történik.

Belső válaszfalak: Ytong válaszfalakkal osztoLuk a belső teret. A falak Q4 minőségi gleLeléssel
készülnek, design tapétával és helyenként kőburkolaLal.

Tetőszerkezet, bádogos szerkezetek: az épület felett ácsolt tetőszerkezet készül, kontyolt
nyeregtető kivitelben, az épület egyes helyiségeiben látszó szarufás kialakítással. A tető 20 cm
vastag ásványgyapot hőszigeteléssel, hőtükörfóliával és 5 cm vastag szálas hőszigeteléssel
ellátott. A koszorú hő-hídmentessége XPS hőszigetelés beépítésével biztosított. A ház esővíz
elvezetése a függőleges ereszcsatornák segítségével a ház körüli szikkasztókba történik.

Nyílászárók: a homlokzati nyílászárók egy része fix, egy részük pedig bukó-nyíló, emelő-toló
funkcióval van ellátva - hőszigetelt háromrétegű üvegezésűek. A homlokzati nyílászárók belül
műanyag-, kívül alumíniumborításúak. A nyílászárók hőátbocsátási értéke – Uw: 0,77W/m2K
Ug: 0,5W/m2K Psi: 0,033W/mK esetén Uf (tok-szárny)=1,1 W/ (m2K). A homlokzati
nyílászárók belül antracit-, kívül barna színűek UV stabil kialakítással.
A nyílászárók rejtett tokos, elektromos, alumíniumból készült rejtett tokos redőnnyel ellátottak,
amelyek telefonról is vezérelhetőek (Somfy IO rendszerrel). Minden ablak szúnyoghálóval
felszerelt - a teraszajtókra elhúzható pliszé kerül felszerelésre.
A beltéri nyílászárók a belsőépítész terveknek megfelelően kerülnek kialakításra. Beltéri ajtók
kerülnek beépítésre, nagy keménységű, sarkos tokborítással.

Külső burkolatok: a teraszok fagyálló padlólapokkal, a lakáshoz vezető járda és a gépkocsi
beállók térkő burkolattal készülnek.

Belső burkolatok: laminált- és Gres burkolatokkal készülnek a belső terek. A ház teljes belső
tere egyedi kialakítást kap.

Villamos munkák: a ház elektromos kapcsoló szekrényét a garázsban helyezzük el. A
kábeltévé és az internet bekötésre a kiépített vezetékrendszeren keresztül kerülhet sor.
A lakásban többzónás riasztó rendszer kerül kialakításra, távolról irányítható vezérléssel (okos
telefonnal vezérelhető). A holttérmentes HD kültéri kamerarendszer kiépítésre került.
A házhoz 1 db kaputelefon tartozik. Az épület homlokzatán a lámpatestek a tervek szerint
kerülnek kialakításra.
A villanyóra szekrény (3x32 A) az épületen kívül van elhelyezve, a vonatkozó szabvány szerint.
Elektromos gépkocsibeállókapu kerül felszerelésre, távirányítóval, illetve telefonról is
vezérelhető (intelligens IO) rendszerrel ellátott.

Víz-csatorna: a vízvezeték anyaga épületen kívüli szakaszon KPE műanyag cső, épületen belül
ötrétegű műanyagcső, Polifoam csőhéj hőszigeteléssel. A szennyvízcsatorna a földszinti
padozat alatt halad. A 125-ös gyűjtőcsatorna tisztító csőaknákkal épül a közcsatorna
csatlakozásig. A meleg vizet, hőszivattyú által keringtetett elektromos rendszer biztosítja. A
házhoz egy szabvány szerinti vízóraakna kerül kialakításra. A vízóraaknában kap helyet, a ház
vízfogyasztását mérő vízóra.

Elektromos hűtés/fűtés: a lakásban két féle fűtésrendszer kerül kialakításra
hőszivattyús rendszer, mely hűtést-fűtést biztosít (split rendszerrel működő) illetve padlófűtés
rendszer, helyiségekként külön vezérléssel (távolról is) minden helyiség klimatizált (kivéve a
fürdőszobák és a közlekedők).
Szaniter: a fürdőszobák épített zuhannyal, rejtett zuhanylefolyókkal készülnek, Grohe
termosztátos zuhanyfejjel, illetve Grohe egykaros csaptelepekkel. Villeroy and Boch porcelán
mosdók, Geberit belső tartályos WC-k kerülnek beépítésre.

Napelem: tetőre szerelt napelemes rendszer kerül felszerelésre (22 kWp), valamint 1 db
Profiszolár P3-2-10000 és 1 db SolaX X3-Hybrid 10.0-D-E inverter. Távleolvasású AD/VESZ
villanyóra méri a termelt és a fogyasztott elektromos áramot.

A házban megtalálható berendezések, bútorok.
A lakáshoz belsőépítész terveket járnak, de azok megvalósítása a Vevők feladata és költsége.

Fürdőszobák: épített zuhanykabin, ajtóval és rejtett zuhanylefolyókkal lesz kialakítva. A bútorokra felszerelhető porcelán szaniterek beépítésre kerülnek.

A ház intelligens rendszerekkel felszerelt, ennek köszönhetően az alábbiak, akár telefonról is
vezérelhetőek:
- Kamera rendszer kiépítésre kerül,
- Többzónás riasztó rendszer (Ajax),
- Redőnyök és árnyékolók,
- Gépkocsibeállókapu,
- Napelem,
- Wifi-s termosztátok.

Infrastruktúrája kiváló, 10perc sétára elérhető buszmegálló (46,146,146A,176E,276E,908,908A,968,998), autóval pedig rövid időn belül az M0-ra, vagy a belvárosba érhetünk.

INGYENES hiteltanácsadás! CSOK ügyintézés!
BANKFÜGGETLEN hitelcentrumunk minden elérhető bank és hitelintézet ajánlatát versenyezteti az Ön kedvéért, ráadásul DÍJMENTESEN.
Önnek nincs más dolga, mint elbeszélgetni Munkatársunkkal, Aki a hallott információk alapján versenyre hívja a bankokat, hogy Ön hosszú távon is a legjobb konstrukciót kaphassa, amiből végül Ön választhatja ki a nyertest!
Munkatársaink sokéves szakmai tapasztalattal állnak rendelkezésére, előre egyeztetve a normál munkaidő után is!

Amennyiben hirdetésem felkeltette érdeklődését, várom hívását, akár hétvégén is! V.I. ...TOVÁBBI, TÖBBEZRES INGATLAN KÍNÁLAT: www.gdn-ingatlan.hu - GDN azonosító: 370163

Hirdetés feltöltve: 2025. 02. 16. Utoljára módosítva: 2025. 11. 28.

5 szobás családi házak ára Budapesten

Ebből az összehasonlításból megtudhatod, hogyan viszonyul a lakás ára a környékbeli családi házak átlagos árához. Ez nem azt jelenti, hogy ennyivel olcsóbb vagy drágább, mint amennyit a lakás ér, hanem hogy ennyivel tér el a környékbeli átlagtól.

Ennek a m² ára
Rákosliget m² ár
XVII. kerület m² ár
Budapest m² ár
1656 e Ft
962 e Ft -72%
811 e Ft -104%
970 e Ft -71%
Ennek az ára
Rákosliget átlagár
XVII. kerület átlagár
Budapest átlagár
399 M Ft m Ft
182.4 m Ft -119%
168.4 m Ft -137%
244.4 m Ft -63%

Az ingatlan elhelyezkedése

Cím: Budapest, XVII. kerület, Rákosliget

Eladó ingatlanok a környékről

Eladó családi ház
Eladó családi ház

XVII. kerület, Rákoskeresztúr

399 M Ft
5 szoba
251 m2
Eladó családi ház
Eladó családi ház

XVII. kerület

89.9 M Ft
6 szoba
240 m2
Eladó családi ház
Eladó családi ház

XVII. kerület, Rákoscsaba

74 M Ft
3 szoba
75 m2
Eladó téglalakás
Eladó téglalakás

VII. kerület

82.789 M Ft
2 szoba
41 m2
Eladó családi ház
Eladó családi ház

XVII. kerület, Rákoshegy

350 M Ft
3 + 1 szoba
212 m2
Eladó családi ház
Eladó családi ház

XVII. kerület, Rákosliget, XXVII utca 4

145 M Ft
5 + 2 szoba
172 m2
Eladó családi ház
Eladó családi ház

XVII. kerület

56 M Ft
2 szoba
76 m2
Eladó családi ház
Eladó családi ház

XVIII. kerület, Ganztelep, Barcika tér

140 M Ft
4 szoba
160 m2
Eladó téglalakás
Eladó téglalakás

VII. kerület

141.797 M Ft
3 szoba
76 m2
Eladó családi ház
Eladó családi ház

XVII. kerület, Rákoshegy

350 M Ft
5 szoba
180 m2
Eladó családi ház
Eladó családi ház

XVII. kerület, Rákoskeresztúr, Budapest 17. kerület - kertváros

180 M Ft
5 szoba
155 m2
Eladó téglalakás
Eladó téglalakás

VII. kerület, Külső Erzsébetváros, Hernád utca

86 M Ft
3 szoba
75 m2
Eladó mezogazdasagi ingatlan
Eladó mezogazdasagi ingatlan

XVII. kerület, Rákoshegy

6 M Ft
2633 m²
Eladó téglalakás
Eladó téglalakás

XXI. kerület

32.9 M Ft
2 szoba
36 m2
Eladó családi ház
Eladó családi ház

XVII. kerület

279 M Ft
9 szoba
270 m2
Eladó családi ház
Eladó családi ház

XVII. kerület, Rákoscsaba

180 M Ft
5 szoba
226 m2
Eladó családi ház
Eladó családi ház

XVII. kerület, Rákosliget

175 M Ft
5 szoba
170 m2
Eladó iroda
Eladó iroda

XVI. kerület

67 M Ft
2 szoba
70 m2
Eladó családi ház
Eladó családi ház

XVII. kerület, Rákoshegy, Dobos István utca

350 M Ft
5 szoba
212 m2
Eladó családi ház
Eladó családi ház

XIX. kerület, Kispest, Rákóczi utca

349 M Ft
7 szoba
396 m2
Eladó panellakás
Eladó panellakás

XVIII. kerület, Havannatelep

60 M Ft
3 szoba
60 m2
Eladó családi ház
Eladó családi ház

XVII. kerület, Pesti út közeli utca

105 M Ft
2 + 2 szoba
120 m2
Eladó családi ház
Eladó családi ház

III. kerület, Táborhegy, Farkastorki út

549 M Ft
7 szoba
700 m2
Eladó téglalakás
Eladó téglalakás

II. kerület

32.5 M Ft
1 szoba
16 m2

Falusi CSOK ingatlanok

Eladó családi ház
Eladó családi ház

Kondorfa

71 M Ft
2 szoba
82 m2
Eladó családi ház
Eladó családi ház

Bár

89.5 M Ft
4 + 1 szoba
172 m2
Eladó családi ház
Eladó családi ház

Marcaltő

26 M Ft
3 szoba
103 m2
Eladó családi ház
Eladó családi ház

Ácsteszér

45 M Ft
4 szoba
152 m2
Eladó családi ház
Eladó családi ház

Kisdér

149.8 M Ft
4 szoba
205 m2
Eladó családi ház
Eladó családi ház

Somogygeszti

38.6 M Ft
3 + 1 szoba
98 m2
Eladó ikerház
Eladó ikerház

Tápióbicske

28.5 M Ft
4 szoba
74 m2
Eladó családi ház
Eladó családi ház

Sellye

15 M Ft
3 szoba
120 m2