Astora Art House

Eladó családi ház
Budapest, XIX. kerület

1/2
55 000 000 Ft55 M Ft 1 000 000 Ft/m2
3 szoba
55 m2

Részletes adatok

Állapot: Felújított
Telekméret: 500 m2
Fűtés: Egyéb
Energetikai besorolás: Nem adta meg a hirdető

Az OTP Bank lakáshitel ajánlataFizetett hirdetés

+36 30 919
ingatlanTanya.eu
ingatlanTanya

Érdekel az OTP Bank kedvezményes lakáshitel ajánlata? *

* A kérdésre „Igen” válasz bejelölése esetén, az „Üzenet küldése” gombra kattintva kijelentem, hogy az OTP Bank Nyrt. Adatkezelési tájékoztatójának tartalmát megismertem és tudomásul vettem.

Eladó családi ház leírása

FELSŐKISPESTEN ELADÓ EGY 55 NM-ES TELJESEN FELÚJÍTOTT LAKÁS!
HITELEZHETŐ! MEGOSZTÁSI SZERZŐDÉSSEL LESZNEK ÁTADVA AZ INGATLANOK.
AZ INGATLAN FELÚJÍTÁS ALATT VAN, MOST MÉG ÖN ALAKÍTHATJA MAGÁRA OTTHONÁT!

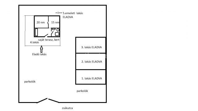
Az ingatlan a XIX. könyvkötő utcában van, egy 500 nm-es udvaron, egy 5 lakásos társaház részeként.
Az udvaron van 3 lakás egybe építve, melyek kétszintesek és a telek végében ez a ház, mely 2 szintes, és az alsó szint eladó. A többi 4 lakás értékesítése megtörtént.

A telek összközműves, a házak teljes felújításon mennek keresztül, tehát B30-as tégléból épülnek, 3 réteg vízszigetelés, új aljzat + lépésálló szigetelés, födém szigetelés (20 cm üveggyapot + itt hangszigetelés is lesz), hogy még jobban elválassza a felső lakástól.
Új villany -, víz-, csatorna hálózat.
Laminált parketta és a fürdőben padlólap kerül beépítésre.
A fűtésre több opció is lehet, alapból elektromos fűtőtestek fogják szolgáltatni a meleget, de OPCIÓ lehet padlófűtés, a fördőbe zuhany vagy kád és felér ellenében szinte bármi.
A lakásban konyha, fürdőszoba, nappali és egy szoba lesz, alapterülete 55 nm.
A bejárat előtt egy terasz lesz (igény szerint beépített) kialakítva és egy kis kertet "L" alakban le lehet választani.
A kert tereprendezés után kerül átadásra.
Az udvaron murvázott gépkocsi beállók lesznek kialakítva.
A feltett kép egy jövőbeli látványterv, nem a jelenlegi állapotot tükrözi.
Az ingatlan átadása 2026 közepe.

Jöjjön nézze meg, hogy dönteni tudjon.

Hirdetés feltöltve: 2025. 11. 26. Utoljára módosítva: 2026. 01. 11.

3 szobás családi házak ára Budapesten

Ebből az összehasonlításból megtudhatod, hogyan viszonyul a lakás ára a környékbeli családi házak átlagos árához. Ez nem azt jelenti, hogy ennyivel olcsóbb vagy drágább, mint amennyit a lakás ér, hanem hogy ennyivel tér el a környékbeli átlagtól.

Ennek a m² ára
XIX. kerület m² ár
Budapest m² ár
1000 e Ft
946 e Ft -6%
1147 e Ft 13%
Ennek az ára
XIX. kerület átlagár
Budapest átlagár
55 M Ft m Ft
96.9 m Ft 43%
110 m Ft 50%

Az ingatlan elhelyezkedése

Cím: Budapest, XIX. kerület

Eladó ingatlanok a környékről

Eladó családi ház
Eladó családi ház

XIX. kerület

34.9 M Ft
1 szoba
38 m2
Eladó téglalakás
Eladó téglalakás

XIV. kerület, Nagyzugló

85 M Ft
3 szoba
56 m2
Eladó családi ház
Eladó családi ház

XIX. kerület

850 M Ft
6 szoba
360 m2
Eladó családi ház
Eladó családi ház

XIX. kerület, Kispest

88 M Ft
4 szoba
92 m2
Eladó családi ház
Eladó családi ház

III. kerület

449 M Ft
6 + 1 szoba
330 m2
Eladó téglalakás
Eladó téglalakás

V. kerület

220 M Ft
3 + 2 szoba
117 m2
Eladó családi ház
Eladó családi ház

XIX. kerület, Felső-Kispesten

120 M Ft
6 szoba
170 m2
Eladó családi ház
Eladó családi ház

XIX. kerület

34.9 M Ft
1 szoba
38 m2
Eladó panellakás
Eladó panellakás

III. kerület, Óbuda

79.9 M Ft
3 szoba
65 m2
Eladó téglalakás
Eladó téglalakás

VII. kerület, Belső Erzsébetváros, Kertész utca

123.9 M Ft
3 szoba
74 m2
Eladó családi ház
Eladó családi ház

XIX. kerület

45 M Ft
2 szoba
80 m2
Eladó családi ház
Eladó családi ház

XIX. kerület, Shopmark közeli út

101 M Ft
4 szoba
110 m2
Eladó családi ház
Eladó családi ház

XIX. kerület, KÖ-KI közeli utca

139.5 M Ft
3 szoba
200 m2
Eladó családi ház
Eladó családi ház

XV. kerület, Rákospalota, Bercsényi Miklós utca

104.99 M Ft
3 szoba
107 m2
Eladó családi ház
Eladó családi ház

Budapest, Köztársaság tér

109.99 M Ft
10 szoba
276 m2
Eladó téglalakás
Eladó téglalakás

VII. kerület, Belső Erzsébetváros, Klauzál tér

68.5 M Ft
2 szoba
44 m2
Eladó családi ház
Eladó családi ház

XIX. kerület

139.9 M Ft
5 szoba
180 m2
Eladó téglalakás
Eladó téglalakás

IX. kerület, Ferencváros, Ferenc krt

100 M Ft
3 szoba
84 m2
Eladó téglalakás
Eladó téglalakás

VII. kerület

31.4 M Ft
1 szoba
23 m2
Eladó családi ház
Eladó családi ház

XV. kerület, Bercsényi utca

95 M Ft
2 + 1 szoba
88 m2
Eladó családi ház
Eladó családi ház

XIX. kerület

99 M Ft
5 szoba
150 m2
Eladó családi ház
Eladó családi ház

XIX. kerület

92 M Ft
5 szoba
140 m2
Eladó családi ház
Eladó családi ház

XIX. kerület, Kispest

291 M Ft
6 szoba
327 m2
Eladó panellakás
Eladó panellakás

IX. kerület

63 M Ft
2 szoba
56 m2

Falusi CSOK ingatlanok

Eladó családi ház
Eladó családi ház

Kislippó

16 M Ft
3 szoba
100 m2
Eladó családi ház
Eladó családi ház

Nagyhegyes

75.9 M Ft
3 + 1 szoba
120 m2
Eladó családi ház
Eladó családi ház

Nyáregyháza

63.9 M Ft
1 + 1 szoba
79 m2
Eladó családi ház
Eladó családi ház

Tésenfa, Kossuth utca 23/a

5.55 M Ft
1 + 1 szoba
109 m2
Eladó családi ház
Eladó családi ház

Szabadbattyán

136 M Ft
5 szoba
226 m2
Eladó családi ház
Eladó családi ház

Csurgó

23.5 M Ft
4 szoba
80 m2
Eladó családi ház
Eladó családi ház

Mezőfalva

39 M Ft
3 szoba
77 m2
Eladó családi ház
Eladó családi ház

Szil

25 M Ft
2 szoba
90 m2