NapForrás 20 - Buda

Eladó családi ház
Budapest, XIX. kerület, Kispest, Kispest

+ 12 kép 1/15
124 900 000 Ft124.9 M Ft 624 500 Ft/m2
5 szoba
200 m2

Részletes adatok

Állapot: Átlagos
Telekméret: 360 m2
Fűtés: Egyéb
Parkolás: Kocsibeálló
Közmű: Gáz, Villany, Csatorna, Szélessáv, Telefon
Energetikai besorolás: Nem adta meg a hirdető

Az OTP Bank lakáshitel ajánlataFizetett hirdetés

+36 30 213
Csúcs Adrienn
OPTIMA | A szakértő ingatlaniroda

Érdekel az OTP Bank kedvezményes lakáshitel ajánlata? *

* A kérdésre „Igen” válasz bejelölése esetén, az „Üzenet küldése” gombra kattintva kijelentem, hogy az OTP Bank Nyrt. Adatkezelési tájékoztatójának tartalmát megismertem és tudomásul vettem.

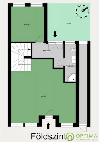
Eladó családi ház leírása

5 SZOBÁS ÖNÁLLÓ CSALÁDI HÁZ KISPEST CSENDES MELLÉKUTCÁJÁBAN

Megvásárlásra kínálok Budapest XIX. kerületének egyik nyugodt, forgalomtól mentes mellékutcájában egy 200 m² alapterületű, kétszintes, önálló családi házat.

A 2007-ben épült ingatlan praktikus elrendezésének köszönhetően ideális nagyobb család számára is.

Az alsó szinten világos, tágas nappali, egy kényelmes méretű hálószoba, fürdőszoba, valamint a lépcső alatti tároló kapott helyet, amely kiváló pakolási lehetőséget biztosít.

Az emeleten egy amerikai konyhás nappali, két hálószoba és egy fürdőszoba található.

Jelenleg az ingatlan egy gipszkarton fallal két külön bejáratú lakássá lett alakítva – ez a megoldás könnyedén visszaalakítható az eredeti állapotába. Az alsó szint nagyobb szobájából közvetlen kijárat nyílik a hátsó udvar hangulatos teraszára.

A 360 m2 alapterületű kert ideális helyszín pihenésre, kikapcsolódásra, családi és baráti összejövetelekre. A környék előnye, hogy bár minden fontos szolgáltatás, üzlet és közlekedési lehetőség könnyedén elérhető, az utca mégis csendes, nyugodt és barátságos környezetet biztosít.

Szeretettel várom hívását az ingatlan megtekintése kapcsán a hét bármely napján!

Hirdetés feltöltve: 2025. 09. 01. Utoljára módosítva: 2025. 11. 25.

5 szobás családi házak ára Budapesten

Ebből az összehasonlításból megtudhatod, hogyan viszonyul a lakás ára a környékbeli családi házak átlagos árához. Ez nem azt jelenti, hogy ennyivel olcsóbb vagy drágább, mint amennyit a lakás ér, hanem hogy ennyivel tér el a környékbeli átlagtól.

Ennek a m² ára
Kispest m² ár
XIX. kerület m² ár
Budapest m² ár
625 e Ft
802 e Ft 22%
851 e Ft 27%
971 e Ft 36%
Ennek az ára
Kispest átlagár
XIX. kerület átlagár
Budapest átlagár
124.9 M Ft m Ft
140.8 m Ft 11%
137.2 m Ft 9%
245.3 m Ft 49%

Az ingatlan elhelyezkedése

Cím: Budapest, XIX. kerület, Kispest, Kispest

Eladó ingatlanok a környékről

Eladó családi ház
Eladó családi ház

XIX. kerület

199.8 M Ft
5 szoba
182 m2
Eladó téglalakás
Eladó téglalakás

XIII. kerület

126 M Ft
3 szoba
69 m2
Eladó téglalakás
Eladó téglalakás

XIV. kerület, Kiszugló, Kövér Lajos utca

168 M Ft
3 + 1 szoba
84 m2
Eladó panellakás
Eladó panellakás

III. kerület

73.4 M Ft
2 szoba
50 m2
Eladó téglalakás
Eladó téglalakás

XI. kerület, Gellérthegy, Gombócz Zoltán utca

142 M Ft
2 + 1 szoba
71 m2
Eladó téglalakás
Eladó téglalakás

III. kerület, Rómaifürdő

139 M Ft
3 szoba
65 m2
Eladó családi ház
Eladó családi ház

XIX. kerület, Shopmark közeli út

101 M Ft
4 szoba
110 m2
Eladó téglalakás
Eladó téglalakás

VIII. kerület, Palotanegyed, Rákóczi út

190 M Ft
5 szoba
121 m2
Eladó téglalakás
Eladó téglalakás

XI. kerület, Gellérthegy, Gyula utca

150 M Ft
2 szoba
56 m2
Eladó családi ház
Eladó családi ház

XIX. kerület

160 M Ft
6 szoba
230 m2
Eladó családi ház
Eladó családi ház

XIX. kerület, Kispest

84.9 M Ft
3 szoba
100 m2
Eladó családi ház
Eladó családi ház

XIX. kerület, Kispest

160 M Ft
6 szoba
432 m2
Eladó panellakás
Eladó panellakás

III. kerület

66.3 M Ft
2 szoba
51 m2
Eladó családi ház
Eladó családi ház

XIX. kerület, Felső-Kispesten

120 M Ft
6 szoba
170 m2
Eladó családi ház
Eladó családi ház

XIX. kerület

85.5 M Ft
5 szoba
140 m2
Eladó családi ház
Eladó családi ház

XIX. kerület

139.9 M Ft
5 szoba
180 m2
Eladó családi ház
Eladó családi ház

XIX. kerület

210 M Ft
4 szoba
400 m2
Eladó téglalakás
Eladó téglalakás

XIV. kerület

81 M Ft
2 szoba
50 m2
Eladó panellakás
Eladó panellakás

XIII. kerület, Angyalföld, Angyalföldi út

69.5 M Ft
2 szoba
48 m2
Eladó téglalakás
Eladó téglalakás

VII. kerület, Belső Erzsébetváros, Rózsa utca

170 M Ft
5 szoba
124 m2
Eladó családi ház
Eladó családi ház

XIX. kerület

34.9 M Ft
1 szoba
38 m2
Eladó téglalakás
Eladó téglalakás

XI. kerület, Kelenföld, Bánk bán 11

119.9 M Ft
3 szoba
99 m2
Eladó családi ház
Eladó családi ház

XIX. kerület, Kispest

219.9 M Ft
7 + 2 szoba
257 m2
Eladó téglalakás
Eladó téglalakás

X. kerület

65.95 M Ft
2 szoba
58 m2

Falusi CSOK ingatlanok

Eladó családi ház
Eladó családi ház

Kondorfa, Fővég utca

24.9 M Ft
3 szoba
102 m2
Eladó családi ház
Eladó családi ház

Segesd

14.3 M Ft
3 szoba
100 m2
Eladó családi ház
Eladó családi ház

Tápiógyörgye

32 M Ft
3 szoba
86 m2
Eladó téglalakás
Eladó téglalakás

Balatonszemes

91.5 M Ft
2 szoba
60 m2
Eladó családi ház
Eladó családi ház

Akasztó

25 M Ft
2 szoba
82 m2
Eladó családi ház
Eladó családi ház

Kenyeri

21.8 M Ft
2 szoba
75 m2
Eladó családi ház
Eladó családi ház

Fertőd

189.9 M Ft
4 szoba
175 m2
Eladó családi ház
Eladó családi ház

Zalaszabar

248 M Ft
4 szoba
197 m2