NapForrás 20 - Buda

Eladó családi ház
Budapest, X. kerület

+ 9 kép 1/12
145 000 000 Ft145 M Ft 1 188 525 Ft/m2
4 szoba
122 m²
építés éve:2026

Részletes adatok

Telekméret: 231 m2
Fűtés: Egyéb
Energetikai besorolás: Nem adta meg a hirdető

Az OTP Bank lakáshitel ajánlataFizetett hirdetés

+36 1 690
Banda Péter
referens

Érdekel az OTP Bank kedvezményes lakáshitel ajánlata? *

* A kérdésre „Igen” válasz bejelölése esetén, az „Üzenet küldése” gombra kattintva kijelentem, hogy az OTP Bank Nyrt. Adatkezelési tájékoztatójának tartalmát megismertem és tudomásul vettem.

Eladó családi ház leírása

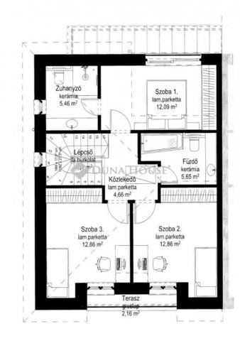
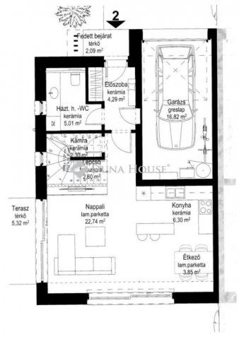
Modern, kétszintes újépítésű ikerház! Budapest X. kerület egyik legnyugodtabb területén, egy csendes mellékutcában, gyönyörű és minőségi családi otthon épül!Az ingatlan a mai kor műszaki elvárásai szerint kerül felépítésre. Prémium minőségű gépészet és kiváló minőségű anyagok felhasználásával. A telek adta lehetőségek a leg optimálisabban került kihasználásra, az ikerház felépítésére. Belső terei megtervezésekor első számú szempont volt a XXI. századi modern kialakítás, a kényelmes és egyben praktikus tér elrendezés.Az ingatlanhoz tartozik egy 231 m2-es kert, amely tökéletes egy nagyobb család számára is. A kert privát és nem látni be rá, megfelelő intimitást nyújt.A csendes elhelyezkedés egyben egy remek infrastruktúrát jelent. A környéken minden megtalálható amire az embernek szüksége lehet, illetve a belváros is rendkívül gyorsan megközelíthető, autóval, és tömegközlekedéssel is.A ház helységei két szinten oszlanak meg, a hasznos alapterület 122 m2Az otthon szíve a, közel 33 m2-es amerikai konyhás nappali, ami terasz kapcsolatos, ezen a szinten még zuhanyzó+wc, háztartási helyiség kerül kialakításra.Tartozik az ingatlanhoz egy fedett garázs is, ahova bőven be lehet parkolni egy nagyméretű autóval is, illetve a holmik tárolására is tökéletes.A felső szinten további 3 db teljes értékű szoba várja új tulajdonosait, a lakók kényelmét még két db fürdőszoba szolgálja.FELÁR ELLENÉBEN, a vállalkozó vállalja:- beépített gépesített konyabútort,- a teljes kertépítést,- a beépített gardróbszekrényeket.MŰSZAKI TARTALOM:- Főfalak: 30 cm POROTHERM 30 N+F vázkerámia falazóblokk falazat ragasztva,- Válaszfalak: 10 cm vtg. kerámia válaszfallapból, speciális ragasztóval, - Koszorúk: monolit vasbeton szerkezet, külső oldalán 5 cm plusz kiegészítő hőszigeteléssel,- Födém: monolit vasbeton födém készül, statikai méretezés szerint, emelet felett fa fedélszék ,- Tető: hagyományos ácsszerkezetű magastető készül 25 fokos hajlásszöggel, dobozolt eresz kialakítással, Terrán Zenit Max Carbon szürke színben cserépfedéssel.- Műanyag nyílászárók fenyő színben, 3 rétegű hőszigetelő üvegezéssel és több pontonzáródó biztonsági bejárati ajtóval.- Burkolatok: hálószobákban laminált parketta melegburkolat, vizes helyiségeben kerámia-, és csempeburkolat készül. Kültéren a gépkocsi behajtó és járdák térkő burkolatúak.- Homlokzati hőszigetelés expandált polisztirol hőszigetelő lemez 15 cm vtg-ban- Lábazati hőszigetelés extrudált polisztirol hőszigetelő lemez 12 cm vtg-ban- Koszorú külső hőszigetelés expandált polisztirol hőszigetelő lemez 5 cm vtg-ban- Hőszigetelés padlóban expandált polisztirol hőszigetelő lemez 10 cm vtg-ban- Födém feletti hőszigetelés EPS hőszigetelés, 20 cm vtg-ban,- hőszivattyús fűtés, mennyezeti fűtés, hútés.EXTRÁK:- OKOS RENDSZER,- elektromos redőnyök,- kamera és riasztó rendszer kiépítés,- videó kaputelefon,- elektromos kapu,- öntöző rendszer,- elektromos autótöltő kiépítés,- Wpc kerítés,- 3 rétegű üvegek,- rejtett világítások,- udvar világítások,- légtechnika.Teljes átláthatóság az építkezés során digitálisan, kényelmesen, biztonságosan!Az építkezés nálunk nem csak szakmai precizitásról szól, hanem valódi átláthatóságról is. A PlanRadar digitális projektkövető rendszerének köszönhetően Ön, mint leendő tulajdonos: Valós időben nyomon követheti az építkezés minden lépését akár mobilról is. Kéthetente részletes jelentést kap az aktuális állapotról, fotókkal, dokumentumokkal. A projekt végén digitálisan megkapja az összes hivatalos dokumentumot, beleértve a garanciákat, tervrajzokat, átadási jegyzőkönyveket mindezt egyetlen, biztonságos platformon.FINANSZÍROZÁS: Hitelre megvásárolható, vevőink részére díjmentes hitel közvetítés, minden magyarországi bankból. Állami támogatások felvehetőek rá!Átadás: 2026. III. NEGYEDÉVNe hagyja ki ezt a páratlan lehetőséget! Egy ilyen prémium ingatlan ritkán kerül piacra, és most Ön előtt áll a lehetőség, hogy a város egyik legvonzóbb helyén éljen. Tökéletes választás a modern, kényelmes és biztonságos életstílust keresők számára!Várom megtisztelő hívását a hét minden napján!

Hirdetés feltöltve: 2025. 12. 09. Utoljára módosítva: 2026. 01. 13.

4 szobás családi házak ára Budapesten

Ebből az összehasonlításból megtudhatod, hogyan viszonyul a lakás ára a környékbeli családi házak átlagos árához. Ez nem azt jelenti, hogy ennyivel olcsóbb vagy drágább, mint amennyit a lakás ér, hanem hogy ennyivel tér el a környékbeli átlagtól.

Ennek a m² ára
X. kerület m² ár
Budapest m² ár
1189 e Ft
1210 e Ft 2%
1090 e Ft -9%
Ennek az ára
X. kerület átlagár
Budapest átlagár
145 M Ft m Ft
151.7 m Ft 4%
155.2 m Ft 7%

Az ingatlan elhelyezkedése

Cím: Budapest, X. kerület

Eladó ingatlanok a környékről

X. kerület, Népliget, Üllői út
Eladó téglalakás

Budapest, X. kerület

63 M Ft
2 szoba
54 m²
X. kerület
Eladó családi ház

Budapest, X. kerület

160 M Ft
6 szoba
204 m²
X. kerület
Eladó családi ház

Budapest, X. kerület

125 M Ft
3 + 1 szoba
100 m²
X. kerület, Felsőrákos
Eladó családi ház

Budapest, X. kerület

480 M Ft
4 szoba
180 m²
XVII. kerület
Eladó téglalakás

Budapest, XVII. kerület

98.5 M Ft
4 szoba
83 m²
VI. kerület
Eladó téglalakás

Budapest, VI. kerület

98.5 M Ft
2 szoba
36 m²
X. kerület
Eladó családi ház

Budapest, X. kerület

160 M Ft
6 szoba
204 m²
XIII. kerület
Eladó téglalakás

Budapest, XIII. kerület

110 M Ft
2 szoba
49 m²
X. kerület, Óhegy
Eladó családi ház

Budapest, X. kerület

145 M Ft
1 + 2 szoba
74 m²
X. kerület, Óhegy
Eladó családi ház

Budapest, X. kerület

149.9 M Ft
5 szoba
119 m²
XIV. kerület
Eladó családi ház

Budapest, XIV. kerület

159 M Ft
5 szoba
150 m²
X. kerület
Eladó családi ház

Budapest, X. kerület

145 M Ft
1 + 2 szoba
74 m²
XVII. kerület
Eladó családi ház

Budapest, XVII. kerület

182.9 M Ft
5 szoba
189 m²
IX. kerület
Eladó téglalakás

Budapest, IX. kerület

62.5 M Ft
1 szoba
30 m²
XIV. kerület, Alsórákos, Vezér utca 174
Eladó téglalakás

Budapest, XIV. kerület

82.5 M Ft
2 + 1 szoba
55 m²
X. kerület, Újhegy, Grafit utca
Eladó családi ház

Budapest, X. kerület

199 M Ft
4 szoba
180 m²
XXI. kerület, Szabótelep, Ady Endre út 33
Eladó téglalakás

Budapest, XXI. kerület

53.9 M Ft
2 + 1 szoba
54 m²
VIII. kerület, Józsefváros, Corvin sétány 2
Eladó téglalakás

Budapest, VIII. kerület

149.9 M Ft
1 + 2 szoba
62 m²
XVII. kerület
Eladó téglalakás

Budapest, XVII. kerület

77 M Ft
3 szoba
61 m²
XVIII. kerület
Eladó családi ház

Budapest, XVIII. kerület

419 M Ft
5 + 2 szoba
390 m²
XI. kerület
Eladó téglalakás

Budapest, XI. kerület

139.5 M Ft
1 szoba
64 m²
VIII. kerület
Eladó téglalakás

Budapest, VIII. kerület

81.5 M Ft
3 szoba
72 m²
XIII. kerület
Eladó panellakás

Budapest, XIII. kerület

106 M Ft
3 szoba
68 m²
X. kerület
Eladó családi ház

Budapest, X. kerület

125 M Ft
3 + 1 szoba
100 m²

Falusi CSOK ingatlanok

Csemő
Eladó családi ház

Csemő

36.6 M Ft
1 szoba
48 m²
Kenyeri
Eladó családi ház

Kenyeri

39.9 M Ft
3 szoba
94 m²
Szigetújfalu
Eladó családi ház

Szigetújfalu

19 M Ft
2 szoba
75 m²
Tésenfa, Kossuth utca 23/a
Eladó családi ház

Tésenfa

5.55 M Ft
1 + 1 szoba
109 m²
Pécsvárad, Kossuth Lajos utca
Eladó téglalakás

Pécsvárad

64.99 M Ft
3 szoba
89 m²
Szava, Kossuth Lajos utca
Eladó családi ház

Szava

18.9 M Ft
3 szoba
76 m²
Pécsvárad, Külterület
Eladó családi ház

Pécsvárad

16.5 M Ft
2 szoba
66 m²
Nyírábrány
Eladó családi ház

Nyírábrány

21 M Ft
3 szoba
120 m²