Seven Pearl

Eladó családi ház
Budapest, X. kerület

+ 9 kép 1/12
145 000 000 Ft145 M Ft 1 188 525 Ft/m2
4 szoba
122 m2
építés éve:2026

Részletes adatok

Telekméret: 231 m2
Fűtés: Egyéb
Energetikai besorolás: Nem adta meg a hirdető

Az OTP Bank lakáshitel ajánlataFizetett hirdetés

+36 1 690
Hársmán Kamilla
referens

Érdekel az OTP Bank kedvezményes lakáshitel ajánlata? *

* A kérdésre „Igen” válasz bejelölése esetén, az „Üzenet küldése” gombra kattintva kijelentem, hogy az OTP Bank Nyrt. Adatkezelési tájékoztatójának tartalmát megismertem és tudomásul vettem.

Eladó családi ház leírása

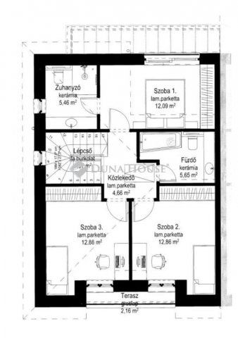
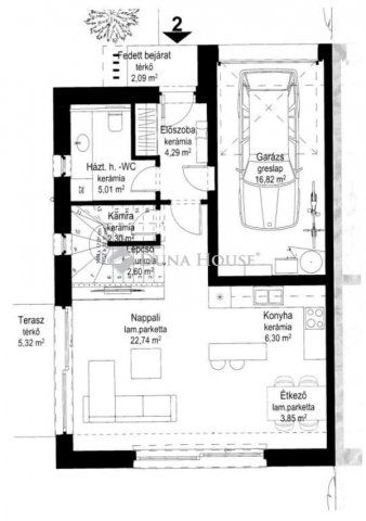
Modern, kétszintes újépítésű ikerház! Budapest X. kerület egyik legnyugodtabb területén, egy csendes mellékutcában, gyönyörű és minőségi családi otthon épül!Az ingatlan a mai kor műszaki elvárásai szerint kerül felépítésre. Prémium minőségű gépészet és kiváló minőségű anyagok felhasználásával. A telek adta lehetőségek a leg optimálisabban került kihasználásra, az ikerház felépítésére. Belső terei megtervezésekor első számú szempont volt a XXI. századi modern kialakítás, a kényelmes és egyben praktikus tér elrendezés.Az ingatlanhoz tartozik egy 231 m2-es kert, amely tökéletes egy nagyobb család számára is. A kert privát és nem látni be rá, megfelelő intimitást nyújt.A csendes elhelyezkedés egyben egy remek infrastruktúrát jelent. A környéken minden megtalálható amire az embernek szüksége lehet, illetve a belváros is rendkívül gyorsan megközelíthető, autóval, és tömegközlekedéssel is.A ház helységei két szinten oszlanak meg, a hasznos alapterület 122 m2Az otthon szíve a, közel 33 m2-es amerikai konyhás nappali, ami terasz kapcsolatos, ezen a szinten még zuhanyzó+wc, háztartási helyiség kerül kialakításra.Tartozik az ingatlanhoz egy fedett garázs is, ahova bőven be lehet parkolni egy nagyméretű autóval is, illetve a holmik tárolására is tökéletes.A felső szinten további 3 db teljes értékű szoba várja új tulajdonosait, a lakók kényelmét még két db fürdőszoba szolgálja.A vételár tartalmazza:- beépített gépesített konyabútort,- a teljes kertépítést,- a beépített gardróbszekrényeket.MŰSZAKI TARTALOM:- Főfalak: 30 cm POROTHERM 30 N+F vázkerámia falazóblokk falazat ragasztva,- Válaszfalak: 10 cm vtg. kerámia válaszfallapból, speciális ragasztóval, - Koszorúk: monolit vasbeton szerkezet, külső oldalán 5 cm plusz kiegészítő hőszigeteléssel,- Födém: monolit vasbeton födém készül, statikai méretezés szerint, emelet felett fa fedélszék ,- Tető: hagyományos ácsszerkezetű magastető készül 25 fokos hajlásszöggel, dobozolt eresz kialakítással, Terrán Zenit Max Carbon szürke színben cserépfedéssel.- Műanyag nyílászárók fenyő színben, 3 rétegű hőszigetelő üvegezéssel és több pontonzáródó biztonsági bejárati ajtóval.- Burkolatok: hálószobákban laminált parketta melegburkolat, vizes helyiségeben kerámia-, és csempeburkolat készül. Kültéren a gépkocsi behajtó és járdák térkő burkolatúak.- Homlokzati hőszigetelés expandált polisztirol hőszigetelő lemez 15 cm vtg-ban- Lábazati hőszigetelés extrudált polisztirol hőszigetelő lemez 12 cm vtg-ban- Koszorú külső hőszigetelés expandált polisztirol hőszigetelő lemez 5 cm vtg-ban- Hőszigetelés padlóban expandált polisztirol hőszigetelő lemez 10 cm vtg-ban- Födém feletti hőszigetelés EPS hőszigetelés, 20 cm vtg-ban,- hőszivattyús fűtés, mennyezeti fűtés, hútés.EXTRÁK:- OKOS RENDSZER,- elektromos redőnyök,- kamera és riasztó rendszer kiépítés,- videó kaputelefon,- elektromos kapu,- öntöző rendszer,- elektromos autótöltő kiépítés,- Wpc kerítés,- 3 rétegű üvegek,- rejtett világítások,- udvar világítások,- légtechnika.Teljes átláthatóság az építkezés során digitálisan, kényelmesen, biztonságosan!Az építkezés nálunk nem csak szakmai precizitásról szól, hanem valódi átláthatóságról is. A PlanRadar digitális projektkövető rendszerének köszönhetően Ön, mint leendő tulajdonos: Valós időben nyomon követheti az építkezés minden lépését akár mobilról is. Kéthetente részletes jelentést kap az aktuális állapotról, fotókkal, dokumentumokkal. A projekt végén digitálisan megkapja az összes hivatalos dokumentumot, beleértve a garanciákat, tervrajzokat, átadási jegyzőkönyveket mindezt egyetlen, biztonságos platformon.FINANSZÍROZÁS: Hitelre megvásárolható, vevőink részére díjmentes hitel közvetítés, minden magyarországi bankból. Állami támogatások felvehetőek rá!Átadás: 2026. III. NEGYEDÉVNe hagyja ki ezt a páratlan lehetőséget! Egy ilyen prémium ingatlan ritkán kerül piacra, és most Ön előtt áll a lehetőség, hogy a város egyik legvonzóbb helyén éljen. Tökéletes választás a modern, kényelmes és biztonságos életstílust keresők számára!Várom megtisztelő hívását a hét minden napján!

Referencia szám: HZ017893

Hirdetés feltöltve: 2025. 11. 18. Utoljára módosítva: 2025. 12. 13.

4 szobás családi házak ára Budapesten

Ebből az összehasonlításból megtudhatod, hogyan viszonyul a lakás ára a környékbeli családi házak átlagos árához. Ez nem azt jelenti, hogy ennyivel olcsóbb vagy drágább, mint amennyit a lakás ér, hanem hogy ennyivel tér el a környékbeli átlagtól.

Ennek a m² ára
X. kerület m² ár
Budapest m² ár
1189 e Ft
1232 e Ft 3%
1065 e Ft -12%
Ennek az ára
X. kerület átlagár
Budapest átlagár
145 M Ft m Ft
162.3 m Ft 11%
154.9 m Ft 6%

Az ingatlan elhelyezkedése

Cím: Budapest, X. kerület

Eladó ingatlanok a környékről

Eladó téglalakás
Eladó téglalakás

I. kerület, Krisztinaváros, Feszty Árpád utca

78.99 M Ft
1 szoba
28 m2
Eladó családi ház
Eladó családi ház

X. kerület, Újhegy

199.9 M Ft
3 szoba
160 m2
Eladó családi ház
Eladó családi ház

X. kerület, Óhegy

310 M Ft
9 szoba
405 m2
Eladó családi ház
Eladó családi ház

X. kerület

125 M Ft
3 + 1 szoba
100 m2
Eladó téglalakás
Eladó téglalakás

VII. kerület, Belső Erzsébetváros, Erzsébet körút

160 M Ft
3 szoba
88 m2
Eladó téglalakás
Eladó téglalakás

VI. kerület, Külső Terézváros, Szófia utca

114.9 M Ft
4 szoba
103 m2
Eladó téglalakás
Eladó téglalakás

V. kerület, Belváros, Petőfi Sándor utca

134 M Ft
2 szoba
59 m2
Eladó téglalakás
Eladó téglalakás

III. kerület, Óbudaisziget, Folyamőr utca

76.9 M Ft
1 szoba
25 m2
Eladó téglalakás
Eladó téglalakás

VII. kerület, Belső Erzsébetváros, Erzsébet körút

89.9 M Ft
1 + 1 szoba
71 m2
Eladó üzlethelyiség
Eladó üzlethelyiség

II. kerület, Országút, Margit körút

6.999 M Ft
5 m2
Eladó téglalakás
Eladó téglalakás

VII. kerület, Belső Erzsébetváros, Rózsa utca

170 M Ft
5 szoba
124 m2
Eladó téglalakás
Eladó téglalakás

III. kerület, Rómaifürdő, Királyok útja

139 M Ft
3 szoba
65 m2
Eladó téglalakás
Eladó téglalakás

XI. kerület, Gellérthegy, Gombócz Zoltán utca

142 M Ft
2 + 1 szoba
71 m2
Eladó téglalakás
Eladó téglalakás

IV. kerület, Újpest, Kassai utca

84.9 M Ft
2 + 1 szoba
71 m2
Eladó családi ház
Eladó családi ház

X. kerület

310 M Ft
9 szoba
405 m2
Eladó családi ház
Eladó családi ház

X. kerület

310 M Ft
8 + 1 szoba
400 m2
Eladó családi ház
Eladó családi ház

X. kerület

150 M Ft
2 szoba
150 m2
Eladó téglalakás
Eladó téglalakás

IX. kerület

56.9 M Ft
1 szoba
34 m2
Eladó családi ház
Eladó családi ház

X. kerület, Felsőrákos, Dömsödi utca

150 M Ft
2 szoba
150 m2
Eladó családi ház
Eladó családi ház

XXII. kerület, Budafok, Baross utca

199 M Ft
6 + 1 szoba
200 m2
Eladó családi ház
Eladó családi ház

X. kerület, Gyárdűlő

39.9 M Ft
2 szoba
43 m2
Eladó családi ház
Eladó családi ház

X. kerület

160 M Ft
6 szoba
204 m2
Eladó téglalakás
Eladó téglalakás

V. kerület, Belváros, Belgrád rakpart

78 M Ft
1 + 1 szoba
42 m2
Eladó téglalakás
Eladó téglalakás

III. kerület, Óbuda, Szomolnok utca

89.9 M Ft
2 + 2 szoba
96 m2

Falusi CSOK ingatlanok

Eladó családi ház
Eladó családi ház

Vasvár

64.9 M Ft
3 szoba
91 m2
Eladó családi ház
Eladó családi ház

Vácszentlászló

45 M Ft
4 szoba
100 m2
Eladó családi ház
Eladó családi ház

Pétfürdő

74.9 M Ft
3 szoba
89 m2
Eladó családi ház
Eladó családi ház

Kondorfa

29.9 M Ft
3 + 1 szoba
65 m2
Eladó panellakás
Eladó panellakás

Pétfürdő

49.9 M Ft
3 szoba
71 m2
Eladó családi ház
Eladó családi ház

Ceglédbercel

67 M Ft
3 szoba
173 m2
Eladó családi ház
Eladó családi ház

Rábacsécsény

45 M Ft
3 szoba
101 m2
Eladó családi ház
Eladó családi ház

Mezőfalva

39 M Ft
3 szoba
77 m2