City Pearl

Eladó családi ház
Budapest, III. kerület, Testvérhegy

+ 10 kép 1/13
629 900 000 Ft629.9 M Ft 1 999 683 Ft/m2
11 szoba
315 m2
építés éve:1990

Részletes adatok

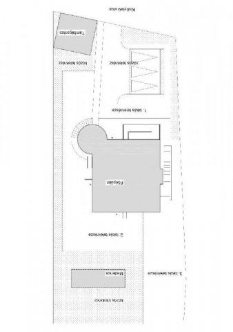
Telekméret: 1080 m2
Fűtés: Gázkazán
Energetikai besorolás: Nem adta meg a hirdető

Az OTP Bank lakáshitel ajánlataFizetett hirdetés

+36 70 458
Potoczki László
referens

Érdekel az OTP Bank kedvezményes lakáshitel ajánlata? *

* A kérdésre „Igen” válasz bejelölése esetén, az „Üzenet küldése” gombra kattintva kijelentem, hogy az OTP Bank Nyrt. Adatkezelési tájékoztatójának tartalmát megismertem és tudomásul vettem.

Eladó családi ház leírása

ELŐÉRTÉKESÍTÉSI AKCIÓ 2025 OKTÓBER VÉGÉIG! ÚJJÁÉPÍTETT (MINT AZ ÚJ) 3 LAKÁSOS ÉPÜLET, LAKÁS 2 MFT-OS M2 ÁRON KONYHABÚTORRAL? IGEN LEHETSÉGES, olvassa tovább?.
III. kerületben, Táborhegy és Testvérhegy határán egy 3 lakásos ház hirdetését olvassa.
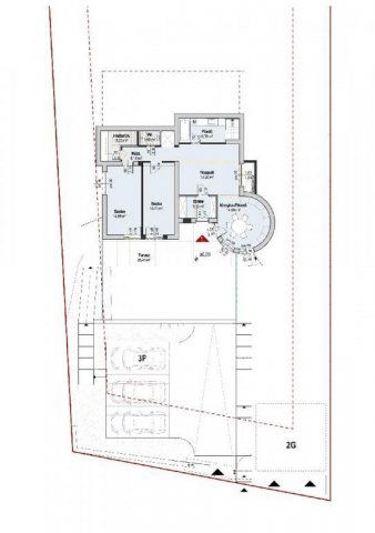
1.) lakás: 90 M2-ES NAPPALI + 2 HÁLÓSZOBÁS, 80 M2-ES saját kertkapcsolatos földszinti lakását ajánlom figyelmébe! Az 1990-ben épült épület, csak az alapszerkezetét meghagyva, teljes felújításon fog átesni, kiváló, Príma díjas építészmérnök átgondolt tervei alapján, ez egy olyan lakás lesz, ahol a szomszédok nem járnak át egymáson, tehát minden lakás, külön bejárati úttal fog rendelkezni, valamint minden lakás önálló, kizárólagos használatú kerttel lett tervezve. KÜLÖN HELYRAJZI SZÁMON értékesítjük az ingatlanokat (nem közös osztatlan), melyhez külön HRSZ-on lévő garázs is vásárolható igény esetén, vagy zárt gépkocsibeálló. Ebből 2 db lesz elérhető 18 m2 mérettel, automata garázskapuval,12 MFt-os áron, illetve 3db zárt udvari gépkocsibeálló 4 MFt-os áron.
Nézzük a lakás elrendezését, egy 5,16 m2-es előszobából érkezünk a 35 m2-es amerikai-konyha-étkezős nappaliba, ahonnan egy 5,18 m2-es közlekedőn keresztül közelíthető meg a 2 nagy méretű hálószoba. (15 és 14.25 négyzetméretesek)
Külön 2 db mellékhelyiség, és külön, majd 10 m2-es nagyméretű fürdőszoba teszi kényelmessé a reggeli készülést, mely zuhanyzóval és káddal is el lesz látva, valamint egy 5,33 m2-es háztartási helyiség praktikus megoldás a háztartási eszközök és a mosógép tárolására.
Mind a konyha és a hálószobák közvetlen 25,45 m2-es teraszkapcsolattal rendelkeznek, ahonnan a zöld saját kert is megközelíthető.
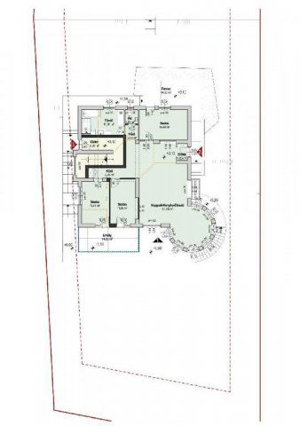
2.) 110 M2-ES NAPPALI + 3 HÁLÓSZOBÁS, 2 erkélyes, 200 M2-ES saját kertkapcsolatos első emeleti.
A lakás elrendezése: egy 1,83 m2-es előszobából érkezünk a 51,78 m2-es amerikai-konyha-étkezős nappaliba, ahonnan egy 3,75 m2-es közlekedőn keresztül közelíthető meg a 2 hálószoba. (11,41 és 11 négyzetméretesek), a harmadik hálószoba egy további 2,13 m2-es közlekedőből nyílik, amely 14,4 m2-es.
2 db mellékhelyiség és 10.5 m2-es nagyméretű fürdőszoba teszi kényelmessé a reggeli készülést, mely zuhanyzóval és káddal is el lesz látva.
Mind a konyha, és a hátsó hálószoba (ez 14,5 m2-es erkéllyel) közvetlen kijárással a 200 m2-es kertre. Az utcafrontra néző hálószobák 14.82 m2-es erkélykapcsolatosak.
3.) 115 M2-ES NAPPALI + 3 HÁLÓSZOBÁS, 3 erkélyes, 170 M2-ES saját kert-el rendelkező de nem kertkapcsolatos!
A lakás elrendezése: egy 8,64 m2-es saját lépcsőházból érkezünk a 51,74 m2-es amerikai-konyha-étkezős nappaliba, ahonnan közvetlenül közelíthető meg a 3 nagy méretű hálószoba. (12,10 valamint 13,4 és 14,19 négyzetméretesek).
A 6.57 m2-es fürdő és a 1,82 mellékhelyiség külön lett elhelyezve, a fürdőszoba kényelmessé teszi a reggeli készülést, mert zuhanyzóval, és káddal is el lesz látva.
A saját lépcsőház előtt helyezkedik el, a saját kizárólagos használatú 170 m2-es kert. ERKÉLYEK: Az utcafrontra néző hálószoba 5,12 m2-es erkélykapcsolatos, a nappaliból 17,61 m2-es fedett erkély nyílik, és oldalt a legnagyobb hálószobából szintén egy 5,17 m2-es erkély nyílik.
KIALAKÍTÁSRA KERÜL EGY KÖRÜLBERLÜL 8X4 M-es MEDENCE, FINN SZAUNA-WPC NAPOZÓ RÉSZ (200M2 ÖSSZESEN) A TELEK HÁTSÓ RÉSZÉN KULCSRAKÉSZRE KIVITELEZVE. LEHETŐSÉG VAN AKÁR KÜLÖN MEVÁSÁROLNI, VAGY EGYÜTT A LAKÓKÖZÖSSÉGGEL 20 MFT-ÉRT KÖZÖS, VAGY KIZÁRÓLAGOS HASZNÁLATTAL.
SZERZŐDNI 30% TELEKHÁNYAD VÁSÁRLÁSSAL ÉS 10% VÉTELÁRELŐLEGGEL LEHET, A TOVÁBBI FIZETÉS KÉSZÜLTSÉGI FOK ALAPJÁN ÜTEMEZÉSSEL.

Referencia szám: M313982

Hirdetés feltöltve: 2025. 10. 02. Utoljára módosítva: 2025. 11. 25.

Az ingatlan elhelyezkedése

Cím: Budapest, III. kerület, Testvérhegy

Eladó ingatlanok a környékről

Eladó családi ház
Eladó családi ház

III. kerület

970 M Ft
8 szoba
883 m2
Eladó téglalakás
Eladó téglalakás

IX. kerület, Ferencváros, Mester utca 76/B

89.31 M Ft
2 szoba
44 m2
Eladó téglalakás
Eladó téglalakás

IX. kerület, Ferencváros, Mester utca 76/B

130.44 M Ft
3 szoba
65 m2
Eladó téglalakás
Eladó téglalakás

IX. kerület, Ferencváros, Mester utca 76/B

108.3 M Ft
3 szoba
58 m2
Eladó téglalakás
Eladó téglalakás

IX. kerület, Ferencváros, Mester utca 76/B

83 M Ft
2 szoba
44 m2
Eladó téglalakás
Eladó téglalakás

IX. kerület, Ferencváros, Mester utca 76/B

126.63 M Ft
3 szoba
65 m2
Eladó családi ház
Eladó családi ház

III. kerület, Csillaghegy

349 M Ft
8 szoba
296 m2
Eladó családi ház
Eladó családi ház

III. kerület, Testvérhegy

441 M Ft
5 szoba
250 m2
Eladó családi ház
Eladó családi ház

III. kerület, Ürömhegy

235 M Ft
6 szoba
230 m2
Eladó téglalakás
Eladó téglalakás

IX. kerület, Ferencváros, Mester utca 76/B

115.78 M Ft
3 szoba
62 m2
Eladó téglalakás
Eladó téglalakás

IX. kerület, Ferencváros, Mester utca 76/B

119.65 M Ft
3 szoba
62 m2
Eladó családi ház
Eladó családi ház

III. kerület

1200 M Ft
10 + 1 szoba
1001 m2
Eladó családi ház
Eladó családi ház

III. kerület

220 M Ft
5 + 1 szoba
240 m2
Eladó családi ház
Eladó családi ház

III. kerület, Testvérhegy

1100 M Ft
17 + 2 szoba
1110 m2
Eladó családi ház
Eladó családi ház

III. kerület, Ürömhegy

439 M Ft
7 szoba
370 m2
Eladó családi ház
Eladó családi ház

III. kerület, Csillaghegy

1490 M Ft
7 szoba
1000 m2
Eladó téglalakás
Eladó téglalakás

IX. kerület, Ferencváros, Mester utca 76/B

119.77 M Ft
3 szoba
64 m2
Eladó családi ház
Eladó családi ház

III. kerület, Aranyhegy

255.5 M Ft
4 + 1 szoba
187 m2
Eladó téglalakás
Eladó téglalakás

IX. kerület, Ferencváros, Mester utca 76/B

126.72 M Ft
3 szoba
65 m2
Eladó családi ház
Eladó családi ház

III. kerület, Testvérhegy

289.9 M Ft
5 szoba
170 m2
Eladó családi ház
Eladó családi ház

III. kerület

400 M Ft
5 szoba
219 m2
Eladó téglalakás
Eladó téglalakás

IX. kerület, Ferencváros, Mester utca 76/B

88.73 M Ft
2 szoba
44 m2
Eladó téglalakás
Eladó téglalakás

IX. kerület, Ferencváros, Mester utca 76/B

126.63 M Ft
3 szoba
65 m2
Eladó téglalakás
Eladó téglalakás

IX. kerület, Ferencváros, Mester utca 76/B

139.34 M Ft
3 szoba
70 m2

Falusi CSOK ingatlanok

Eladó családi ház
Eladó családi ház

Tass

6.999 M Ft
1 szoba
40 m2
Eladó családi ház
Eladó családi ház

Tápióság

62 M Ft
4 szoba
72 m2
Eladó családi ház
Eladó családi ház

Szil

25 M Ft
2 szoba
90 m2
Eladó téglalakás
Eladó téglalakás

Herend

63 M Ft
3 szoba
69 m2
Eladó családi ház
Eladó családi ház

Gégény, Kossuth

15 M Ft
4 szoba
135 m2
Eladó családi ház
Eladó családi ház

Meggyeskovácsi

22.5 M Ft
3 szoba
88 m2
Eladó családi ház
Eladó családi ház

Jakabszállás

320 M Ft
15 szoba
665 m2
Eladó családi ház
Eladó családi ház

Vácegres

279.9 M Ft
6 szoba
194 m2