Astora Art House

Eladó családi ház
Budapest, II. kerület

+ 17 kép 1/20
259 000 000 Ft259 M Ft 1 918 519 Ft/m2
5 szoba
135 m²
építés éve:1920

Részletes adatok

Telekméret: 674 m2
Fűtés: Gázkazán
Energetikai besorolás: Nem adta meg a hirdető

Az OTP Bank lakáshitel ajánlataFizetett hirdetés

+36 30 400
Papp-Horváth Katalin
Otp Ingatlanpont Falk Miksa

Érdekel az OTP Bank kedvezményes lakáshitel ajánlata? *

* A kérdésre „Igen” válasz bejelölése esetén, az „Üzenet küldése” gombra kattintva kijelentem, hogy az OTP Bank Nyrt. Adatkezelési tájékoztatójának tartalmát megismertem és tudomásul vettem.

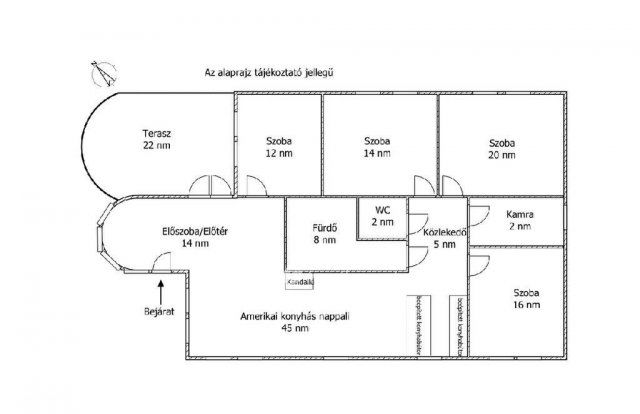
Eladó családi ház leírása

RITKA LEHETŐSÉG, SZÁZADFORDULÓS, FELÚJÍTOTT VILLA HIDEGKÚTON, ERDŐSZÉLÉN!
Eladásra kínálunk Budapest II/A. kerületének egyik legexkluzívabb, legzöldebb részén, Hársakalján, egy igazi építészeti ékkövet! Ez a 135 nm-es, századfordulós stílusban épült, 2022-ben modernizált villa tökéletes harmóniát teremt a klasszikus elegancia és a mai kor kényelme között, amely egy 674 négyzetméteres, parkosított telken helyezkedik el, egy csendes, erdőszéli zsákutcában.

Az ingatlanban négy tágas szoba, valamint egy amerikai konyhás nappali található, ahol egy gyönyörű kandalló gondoskodik az otthonos, meghitt hangulatról. A ház fűtését korszerű kombi gázkazán biztosítja radiátoros hőleadással, a nyári komfortot pedig légkondicionáló berendezések szolgálják.

Az épületet utoljára 2022-ben korszerűsítették, ennek köszönhetően kívül-belül kiváló állapotnak örvend, hőszigetelt, energiahatékony.

A házhoz tartozik egy kétállásos garázs, egy száraz pince, valamint egy beépített, gondozott medence is, amely a hatalmas terasz és a gyönyörű kert mellett tökéletes lehetőséget kínál a pihenésre és kikapcsolódásra.

Az ingatlan elhelyezkedése is elsőrangú, hiszen pár perc sétára található a legközelebbi buszmegálló, ahol éjszakai járat is közlekedik, a közelben pedig számos bevásárlási lehetőség, gyógyszertár, rendelő, iskola, óvoda és bölcsőde könnyíti meg a mindennapokat. A Hűvösvölgyi végállomás pedig 5 perc sétára található.
Ez a villa nem csupán egy otthon, hanem egy életérzés, ahol a természet közelsége, a nyugalom és a kifinomult elegancia találkozik.

Referencia szám: M323139

Hirdetés feltöltve: 2026. 02. 22. Utoljára módosítva: 2026. 03. 14.

5 szobás családi házak ára Budapesten

Ebből az összehasonlításból megtudhatod, hogyan viszonyul a lakás ára a környékbeli családi házak átlagos árához. Ez nem azt jelenti, hogy ennyivel olcsóbb vagy drágább, mint amennyit a lakás ér, hanem hogy ennyivel tér el a környékbeli átlagtól.

Ennek a m² ára
II. kerület m² ár
Budapest m² ár
1919 e Ft
1284 e Ft -49%
969 e Ft -98%
Ennek az ára
II. kerület átlagár
Budapest átlagár
259 M Ft m Ft
395.6 m Ft 35%
245 m Ft -6%

Az ingatlan elhelyezkedése

Cím: Budapest, II. kerület

Eladó ingatlanok a környékről

II. kerület
Eladó családi ház

Budapest, II. kerület

850 M Ft
12 + 3 szoba
650 m²
II. kerület
Eladó családi ház

Budapest, II. kerület

498 M Ft
8 szoba
650 m²
II. kerület
Eladó családi ház

Budapest, II. kerület

1084.455 M Ft
9 szoba
477 m²
II. kerület, Adyliget
Eladó családi ház

Budapest, II. kerület

455 M Ft
5 + 1 szoba
300 m²
II. kerület, Szépvölgy
Eladó családi ház

Budapest, II. kerület

3300 M Ft
8 szoba
1100 m²
XII. kerület, Németvölgy, Alkotás utca
Eladó téglalakás

Budapest, XII. kerület

105 M Ft
2 szoba
58 m²
II. kerület, Pasarét
Eladó családi ház

Budapest, II. kerület

1650 M Ft
17 szoba
1200 m²
III. kerület
Eladó panellakás

Budapest, III. kerület

66.8 M Ft
1 + 2 szoba
57 m²
XVIII. kerület
Eladó családi ház

Budapest, XVIII. kerület

155 M Ft
4 szoba
150 m²
II. kerület, Rózsadomb
Eladó családi ház

Budapest, II. kerület

1500 M Ft
14 + 1 szoba
875 m²
II. kerület
Eladó téglalakás

Budapest, II. kerület

299.936 M Ft
4 szoba
107 m²
X. kerület
Eladó téglalakás

Budapest, X. kerület

43.9 M Ft
1 szoba
31 m²
II. kerület
Eladó családi ház

Budapest, II. kerület

299 M Ft
5 szoba
220 m²
XVIII. kerület
Eladó panellakás

Budapest, XVIII. kerület

51 M Ft
1 + 1 szoba
35 m²
II. kerület
Eladó családi ház

Budapest, II. kerület

274.253 M Ft
6 szoba
300 m²
II. kerület
Eladó családi ház

Budapest, II. kerület

275 M Ft
8 szoba
392 m²
II. kerület
Eladó családi ház

Budapest, II. kerület

1000.493 M Ft
5 szoba
600 m²
II. kerület
Eladó családi ház

Budapest, II. kerület

1800 M Ft
9 szoba
550 m²
II. kerület
Eladó családi ház

Budapest, II. kerület

449 M Ft
730 m²
350 m²
XVI. kerület, Mátyásföld, Budapesti út
Eladó panellakás

Budapest, XVI. kerület

71 M Ft
2 szoba
55 m²
II. kerület, Hűvösvölgy
Eladó téglalakás

Budapest, II. kerület

178.9 M Ft
3 szoba
90 m²
II. kerület
Eladó családi ház

Budapest, II. kerület

1500 M Ft
8 szoba
500 m²
XX. kerület, Erzsébetfalva
Eladó üzlethelyiség

Budapest, XX. kerület

12 M Ft
12 m²
VI. kerület
Eladó téglalakás

Budapest, VI. kerület

175 M Ft
2 szoba
88 m²

Falusi CSOK ingatlanok

Kisnémedi
Eladó családi ház

Kisnémedi

59.9 M Ft
5 szoba
250 m²
Ceglédbercel
Eladó családi ház

Ceglédbercel

66.66 M Ft
3 szoba
92 m²
Bag
Eladó családi ház

Bag

16.9 M Ft
6 szoba
160 m²
Porva
Eladó családi ház

Porva

74.6 M Ft
3 szoba
115 m²
Tápióság
Eladó családi ház

Tápióság

29.9 M Ft
3 + 1 szoba
75 m²
Ceglédbercel
Eladó családi ház

Ceglédbercel

80 M Ft
7 szoba
125 m²
Belvárdgyula
Eladó családi ház

Belvárdgyula

27.9 M Ft
4 szoba
120 m²
Ceglédbercel
Eladó családi ház

Ceglédbercel

67 M Ft
4 szoba
102 m²