Oasis Residence

Eladó családi ház
Borsodnádasd

Figyelem!

Ez az ingatlan a 2019.07.01-től induló falusi CSOK által támogatott településen található

+ 17 kép 1/20
10 900 000 Ft10.9 M Ft 109 000 Ft/m2
4 szoba
100 m²
építés éve:1950

Részletes adatok

Állapot: Átlagos
Telekméret: 1318 m2
Fűtés: Egyéb
Közmű: Gáz
Energetikai besorolás: Nem adta meg a hirdető

Az OTP Bank lakáshitel ajánlataFizetett hirdetés

+36 30 247
Kovácsné Varga Nikolett
referens

Érdekel az OTP Bank kedvezményes lakáshitel ajánlata? *

* A kérdésre „Igen” válasz bejelölése esetén, az „Üzenet küldése” gombra kattintva kijelentem, hogy az OTP Bank Nyrt. Adatkezelési tájékoztatójának tartalmát megismertem és tudomásul vettem.

Eladó családi ház leírása

Borsod-Abaúj-Zemplén vármegyében, Borsodnádasd csendes, természetközeli részén eladó egy több épületből álló ingatlanegyüttes, 1318 m2 -es telken.

Az ingatlan elrendezése és adottságai alapján többféle felhasználási lehetőséget kínálhat, így alkalmas lehet többgenerációs együttélésre, külön lakrészek kialakítására vagy egyéb hasznosítási célokra is.

A főépület és a kapcsolódó melléképületek vegyes falazatúak. A külső megjelenés rendezett, a belső terek felújítást és korszerűsítést igényelnek. Az ingatlanhoz több tárolóhelyiség, fedett terasz, melléképület, pince, valamint szerelőaknás garázs is tartozik.

Az ingatlan közművei közül a villany, víz, szennyvíz és gáz rendelkezésre állnak. Az ingatlan területén ipari áram csatlakozás is kialakításra került.

A korábbi központi fűtési rendszer elemei részben leszerelésre kerültek, a vegyes tüzelésű kazán jelenleg nem áll rendelkezésre. A különálló épületrészben található nyári konyha jelenleg kályhával fűtött és használatban van, míg a nagyobb lakóépület jelenleg nem lakott.

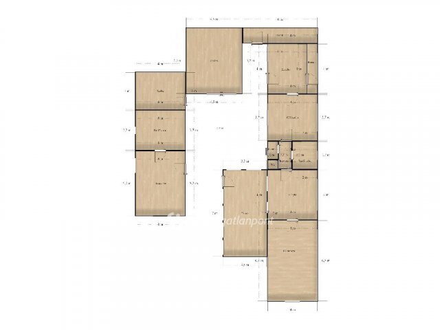
A rendelkezésre álló, tájékoztató jellegű alaprajz alapján az egyik épületrészben több hálószoba, két konyha, fürdőszobák, külön WC, kamra, közlekedők és tárolóhelyiségek kerültek kialakításra. Az alaprajz szerinti összesített alapterület körülbelül 143 m2, amely tartalmazza a garázs, pince, tároló és fedett terasz területét is. Az alapterületi adatok tájékoztató jellegűek.

Az ingatlanhoz egy külön elkerített telekrész is tartozik, amely a teljes telekterület részét képezi.

Az ingatlan 10.900.000 Ft irányáron elérhető.

További információért és megtekintéssel kapcsolatban keressen bizalommal.

Ingatlanirodánk ügyvédi háttérrel, CSOK, babaváró hitel, valamint kamatkedvezményes hitel ügyintézésével támogatja ügyfelei ingatlanvásárlását! Kérem érdeklődéskor hivatkozzon az M327148 számra.

Hirdetés feltöltve: 2026. 04. 19. Utoljára módosítva: 2026. 05. 10.

Az ingatlan elhelyezkedése

Cím: Borsodnádasd

Eladó ingatlanok a környékről

Miskolc
Eladó családi ház

Miskolc

25.9 M Ft
4 szoba
148 m²
Répáshuta
Eladó nyaraló

Répáshuta

34.9 M Ft
1 + 1 szoba
20 m²
Tiszalúc
Eladó családi ház

Tiszalúc

19.9 M Ft
4 szoba
180 m²
Miskolc
Eladó családi ház

Miskolc

54.99 M Ft
4 szoba
103 m²
Mezőkövesd
Eladó családi ház

Mezőkövesd

49.9 M Ft
3 szoba
130 m²
Gönc
Eladó családi ház

Gönc

20.5 M Ft
2 szoba
80 m²
Putnok
Eladó családi ház

Putnok

11 M Ft
3 szoba
79 m²
Borsodnádasd
Eladó családi ház

Borsodnádasd

20 M Ft
6 szoba
275 m²
Miskolc
Eladó panellakás

Miskolc

41.5 M Ft
2 szoba
55 m²
Miskolc
Eladó téglalakás

Miskolc

31 M Ft
2 szoba
52 m²
Miskolc
Eladó családi ház

Miskolc

25.9 M Ft
4 szoba
148 m²
Borsodnádasd
Eladó családi ház

Borsodnádasd

40 M Ft
3 szoba
130 m²
Borsodnádasd
Eladó családi ház

Borsodnádasd

35 M Ft
6 + 1 szoba
230 m²
Miskolc
Eladó téglalakás

Miskolc

37 M Ft
2 szoba
52 m²
Borsodnádasd, Belső út
Eladó családi ház

Borsodnádasd

9 M Ft
4 szoba
160 m²
Borsodnádasd
Eladó családi ház

Borsodnádasd

26.5 M Ft
3 szoba
92 m²
Ózd
Eladó családi ház

Ózd

13 M Ft
5 szoba
150 m²
Borsodnádasd, Móricz Zsigmond utca 13
Eladó családi ház

Borsodnádasd

5.6 M Ft
1 + 1 szoba
83 m²
Szikszó
Eladó családi ház

Szikszó

89.9 M Ft
3 szoba
100 m²
Miskolc
Eladó nyaraló

Miskolc

17 M Ft
4 szoba
79 m²
Ózd
Eladó családi ház

Ózd

7.3 M Ft
3 szoba
125 m²
Borsodnádasd
Eladó családi ház

Borsodnádasd

17 M Ft
5 + 1 szoba
180 m²
Borsodnádasd
Eladó családi ház

Borsodnádasd

22 M Ft
6 szoba
275 m²
Borsodnádasd
Eladó családi ház

Borsodnádasd

20 M Ft
3 szoba
92 m²

Falusi CSOK ingatlanok

Marcalgergelyi
Eladó családi ház

Marcalgergelyi

31 M Ft
2 + 1 szoba
120 m²
Balatonkeresztúr, Kaposvári utca
Eladó családi ház

Balatonkeresztúr

81 M Ft
5 szoba
140 m²
Zalaszentiván
Eladó ikerház

Zalaszentiván

54.99 M Ft
5 szoba
160 m²
Segesd
Eladó családi ház

Segesd

15.8 M Ft
3 szoba
100 m²
Szigliget, Soponyai út
Eladó ikerház

Szigliget

429 M Ft
7 + 2 szoba
212 m²
Cece
Eladó családi ház

Cece

69.8 M Ft
4 szoba
215 m²
Seregélyes
Eladó családi ház

Seregélyes

75 M Ft
6 szoba
160 m²
Kunadacs
Eladó családi ház

Kunadacs

80 M Ft
4 szoba
148 m²

Falusi CSOK ingatlanok

Kondoros
Eladó családi ház

Kondoros

25 M Ft
4 szoba
150 m²
Verseg
Eladó családi ház

Verseg

41.5 M Ft
2 szoba
55 m²
Márianosztra
Eladó családi ház

Márianosztra

38 M Ft
4 szoba
75 m²
Balatonszemes, Ady E. utca 6
Eladó téglalakás

Balatonszemes

108.9 M Ft
2 + 1 szoba
63 m²
Nyírjákó
Eladó családi ház

Nyírjákó

19 M Ft
3 szoba
115 m²
Kislippó
Eladó családi ház

Kislippó

17.99 M Ft
3 szoba
100 m²
Köveskál
Eladó családi ház

Köveskál

215 M Ft
4 szoba
100 m²
Nagyhegyes
Eladó családi ház

Nagyhegyes

54.99 M Ft
2 szoba
79 m²