Oasis Residence

Eladó családi ház
Besnyő

Figyelem!

Ez az ingatlan a 2019.07.01-től induló falusi CSOK által támogatott településen található

+ 17 kép 1/20
53 400 000 Ft53.4 M Ft 445 000 Ft/m2
3 szoba
120 m2
építés éve:1985

Részletes adatok

Állapot: Felújítandó
Telekméret: 851 m2
Fűtés: Egyéb
Energetikai besorolás: Nem adta meg a hirdető

Az OTP Bank lakáshitel ajánlataFizetett hirdetés

+36 70 317
Papp Éva
OTPip - Érd Bajcsy-Zsilinszky út 160 - OTP Ingatlanpont Iroda

Érdekel az OTP Bank kedvezményes lakáshitel ajánlata? *

* A kérdésre „Igen” válasz bejelölése esetén, az „Üzenet küldése” gombra kattintva kijelentem, hogy az OTP Bank Nyrt. Adatkezelési tájékoztatójának tartalmát megismertem és tudomásul vettem.

Eladó családi ház leírása

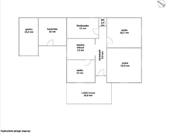
Fejér megye, Besnyő 120 nm-es önálló családi ház eladó. A tégla falazatú, szigetelt ingatlan, csendes családi házas övezetben, egy 851 nm-es telken helyezkedik el. A családi ház hasznos alapterülete 92 nm (fedett terasz, garázs, pince, kazánház alapterületének a fele beleszámítva a meghirdetett területbe.) Az összközműves ingatlanban 3 tágas szoba, konyha és étkező, fürdőszoba, külön WC található, valamint 20,8 nm-ess fedett terasz, 14,4 nm-es garázs, 16 nm-es kazánház, 12 nm-es pince és egy ásott kút tartozik hozzá. Az elmúlt években új tetőt, külső szigetelést és új műanyag nyílászárókat kapott az épület. Az ingatlanban 3x16A és éjszakai áram is van. A fűtést vegyestüzelésű kazán biztosítja, radiátoros hő leadással. A használati melegvizet villanybojler adja. Teljes körű ügyintézésben segítjük ügyfeleinket díjtalanul: Falusi CSOK, CSOK igénylése, kedvezményes hitel mobil bankári szolgáltatással, adásvétel teljes lebonyolításával. Bővebb információkért, kérem keressen bizalommal.

Hirdetés feltöltve: 2025. 11. 10.

Az ingatlan elhelyezkedése

Cím: Besnyő

Eladó családi házak a környékről

Eladó családi ház
Eladó családi ház

Besnyő

99.9 M Ft
3 + 1 szoba
135 m2
Eladó családi ház
Eladó családi ház

Besnyő

53.4 M Ft
3 szoba
100 m2
Eladó családi ház
Eladó családi ház

Besnyő

149 M Ft
6 szoba
285 m2
Eladó családi ház
Eladó családi ház

Mór

110 M Ft
12 szoba
340 m2
Eladó családi ház
Eladó családi ház

Pusztaszabolcs

143.9 M Ft
4 szoba
149 m2
Eladó családi ház
Eladó családi ház

Velence

80 M Ft
6 szoba
200 m2
Eladó családi ház
Eladó családi ház

Besnyő

99.9 M Ft
3 + 1 szoba
135 m2
Eladó családi ház
Eladó családi ház

Velence

85.9 M Ft
4 szoba
103 m2
Eladó családi ház
Eladó családi ház

Lepsény, Róka sétány

64.9 M Ft
5 + 1 szoba
203 m2
Eladó családi ház
Eladó családi ház

Besnyő

100 M Ft
3 szoba
150 m2
Eladó családi ház
Eladó családi ház

Pusztavám

22.9 M Ft
3 szoba
103 m2
Eladó családi ház
Eladó családi ház

Szabadbattyán

357.518 M Ft
9 + 2 szoba
1053 m2
Eladó családi ház
Eladó családi ház

Besnyő

99.9 M Ft
3 + 1 szoba
135 m2
Eladó családi ház
Eladó családi ház

Besnyő, Magán utca

99.9 M Ft
4 szoba
155 m2
Eladó családi ház
Eladó családi ház

Mezőfalva

48 M Ft
3 + 2 szoba
133 m2
Eladó családi ház
Eladó családi ház

Velence

119 M Ft
6 szoba
145 m2
Eladó családi ház
Eladó családi ház

Sárbogárd, Tinódy utca

19.9 M Ft
3 szoba
75 m2
Eladó családi ház
Eladó családi ház

Vál

86.912 M Ft
4 szoba
80 m2
Eladó családi ház
Eladó családi ház

Bakonycsernye

39 M Ft
3 szoba
350 m2
Eladó családi ház
Eladó családi ház

Besnyő

105.999 M Ft
6 szoba
189 m2
Eladó családi ház
Eladó családi ház

Székesfehérvár, Belváros

60 M Ft
2 szoba
100 m2
Eladó családi ház
Eladó családi ház

Dunaújváros, Óváros utca

79.9 M Ft
5 szoba
190 m2
Eladó családi ház
Eladó családi ház

Besnyő

61.9 M Ft
6 szoba
194 m2
Eladó családi ház
Eladó családi ház

Velence

42.9 M Ft
1 szoba
40 m2

Falusi CSOK ingatlanok

Eladó családi ház
Eladó családi ház

Mezőfalva

39 M Ft
3 szoba
77 m2
Eladó téglalakás
Eladó téglalakás

Csorvás

10.6 M Ft
2 szoba
67 m2
Eladó családi ház
Eladó családi ház

Ságvár

46.9 M Ft
2 szoba
70 m2
Eladó családi ház
Eladó családi ház

Ágasegyháza

29.7 M Ft
3 szoba
75 m2
Eladó családi ház
Eladó családi ház

Szigetbecse, Makádi út

49 M Ft
2 szoba
84 m2
Eladó családi ház
Eladó családi ház

Táborfalva

79 M Ft
4 szoba
92 m2
Eladó családi ház
Eladó családi ház

Rábaszentmihály

65 M Ft
3 szoba
156 m2
Eladó családi ház
Eladó családi ház

Bócsa

68 M Ft
3 szoba
100 m2

Falusi CSOK ingatlanok

Eladó családi ház
Eladó családi ház

Kocsér

19.9 M Ft
1 + 2 szoba
73 m2
Eladó családi ház
Eladó családi ház

Andornaktálya

65 M Ft
3 szoba
80 m2
Eladó családi ház
Eladó családi ház

Pannonhalma

76.4 M Ft
4 szoba
97 m2
Eladó családi ház
Eladó családi ház

Balatonkeresztúr

117 M Ft
3 + 2 szoba
154 m2
Eladó családi ház
Eladó családi ház

Bugac

69.9 M Ft
4 szoba
130 m2
Eladó családi ház
Eladó családi ház

Balatonfenyves

199 M Ft
5 szoba
210 m2
Eladó családi ház
Eladó családi ház

Szabadbattyán

30 M Ft
4 szoba
75 m2
Eladó családi ház
Eladó családi ház

Nyékládháza, Mátyás király utca

36.9 M Ft
2 szoba
88 m2