Astora Art House

Eladó családi ház
Baracska

+ 9 kép 1/12
52 900 000 Ft52.9 M Ft 529 000 Ft/m2
3 szoba
100 m2
építés éve:1969

Részletes adatok

Állapot: Átlagos
Telekméret: 697 m2
Fűtés: Gázkazán
Parkolás: Garázs
Közmű: Víz, Gáz, Villany, Csatorna
Energetikai besorolás: Nem adta meg a hirdető

Az OTP Bank lakáshitel ajánlataFizetett hirdetés

+36 70 317
Papp Éva
OTPip - Érd Bajcsy-Zsilinszky út 160 - OTP Ingatlanpont Iroda

Érdekel az OTP Bank kedvezményes lakáshitel ajánlata? *

* A kérdésre „Igen” válasz bejelölése esetén, az „Üzenet küldése” gombra kattintva kijelentem, hogy az OTP Bank Nyrt. Adatkezelési tájékoztatójának tartalmát megismertem és tudomásul vettem.

Eladó családi ház leírása

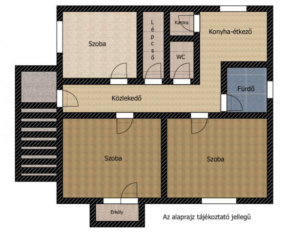
Budapest vonzáskörzetében, Baracskán eladó egy bruttó 100m2-es, 3 szobás, 2 szintes családi ház 697m2-es, összközműves telken, aszfaltos utcában. Akár két generáció számára is alkalmas lehet!

A ház téglából épült 1969-ben, a tetőt pala fedi.

Az ingatlanban 3 szoba, konyha étkezővel, előszoba, kádas és zuhanyzós fürdőszoba, wc, lépcsőház és egy kamra lett kialakítva.

A ház fűtését egy Junkers gázkazán látja el radiátorokkal, meleg víz ellátásáról villanybojler gondoskodik. A ház betonfödémes, így akár még a tetőtér is beépíthető.

A ház mögött melléképület található.

Az alsó szinten egy garázs és több tároló helyiség is helyet kapott, ami akár egy külön lakrésszé is kialakítható!

A kertben található egy ásott kút, mely alkalmas a növények öntözésére vagy akár egy medence feltöltésére is.

Az ingatlan a központhoz közel, mégis csendes környéken helyezkedik el. Az infrastruktúra kiváló, közelben pár perc sétára megtalálható minden, amely a mindennapi élethez szükséges. ( Üzletek, Iskola, Orvosi rendelő, gyógyszertár stb.)

A ház per- és tehermentes, rendezett tulajdoni viszonyokkal rendelkezik.

Baracskáról könnyen megközelíthető az M7-os autópálya, ahonnan 20 perc alatt elérhető autóval Budapest.
Az M7-es közelségének köszönhetően pedig könnyen elérhető a Velencei tó és a Balaton is.

A buszmegálló egy rövid sétával elérhető. Baracska rendelkezik vasútállomással, ahonnan az elővárosi vonatokkal könnyen megközelíthető Budapest.

Az OTP Ingatlanpont teljes körű ügyintézéssel (CSOK, hitel, babaváró) áll az eladók és a vevők rendelkezésére! Az adásvételi szerződés megkötéséhez igény szerint megbízható ügyvédi közreműködést biztosítunk, és segítséget nyújtunk az adásvételhez kapcsolódó ügyek intézéséhez. (Energetikai tanúsítvány stb.)

Megtekintésért és további információkért keressen bizalommal akár hétvégén is!

Hirdetés feltöltve: 2025. 11. 07. Utoljára módosítva: 2025. 11. 07.

3 szobás családi házak ára Baracskán

Ebből az összehasonlításból megtudhatod, hogyan viszonyul a lakás ára a környékbeli családi házak átlagos árához. Ez nem azt jelenti, hogy ennyivel olcsóbb vagy drágább, mint amennyit a lakás ér, hanem hogy ennyivel tér el a környékbeli átlagtól.

Ennek a m² ára
Baracska m² ár
529 e Ft
591 e Ft 10%
Ennek az ára
Baracska átlagár
52.9 M Ft m Ft
100.4 m Ft 47%

Az ingatlan elhelyezkedése

Cím: Baracska

Eladó ingatlanok a környékről

Eladó családi ház
Eladó családi ház

Baracska

84.7 M Ft
3 szoba
121 m2
Eladó családi ház
Eladó családi ház

Velence

119 M Ft
6 szoba
145 m2
Eladó családi ház
Eladó családi ház

Székesfehérvár

69.9 M Ft
3 szoba
95 m2
Eladó családi ház
Eladó családi ház

Lepsény, Róka sétány

64.9 M Ft
5 + 1 szoba
203 m2
Eladó családi ház
Eladó családi ház

Baracska

98 M Ft
6 szoba
212 m2
Eladó családi ház
Eladó családi ház

Mór

110 M Ft
12 szoba
340 m2
Eladó családi ház
Eladó családi ház

Dunaújváros, Óváros utca

79.9 M Ft
5 szoba
190 m2
Eladó családi ház
Eladó családi ház

Pusztavám

22.9 M Ft
3 szoba
103 m2
Eladó családi ház
Eladó családi ház

Baracska

51 M Ft
3 szoba
100 m2
Eladó családi ház
Eladó családi ház

Baracska

57.5 M Ft
4 szoba
110 m2
Eladó családi ház
Eladó családi ház

Vál

86.912 M Ft
4 szoba
80 m2
Eladó családi ház
Eladó családi ház

Sárbogárd, Tinódy utca

19.9 M Ft
3 szoba
75 m2
Eladó családi ház
Eladó családi ház

Baracska

127 M Ft
8 szoba
157 m2
Eladó családi ház
Eladó családi ház

Székesfehérvár

59 M Ft
3 szoba
100 m2
Eladó telek
Eladó telek

Székesfehérvár, Feketehegy, Hernád utca

16.5 M Ft
5156 m²
Eladó családi ház
Eladó családi ház

Ercsi

49 M Ft
2 + 1 szoba
100 m2
Eladó családi ház
Eladó családi ház

Baracska

86.5 M Ft
3 + 1 szoba
90 m2
Eladó családi ház
Eladó családi ház

Baracska

127 M Ft
8 szoba
157 m2
Eladó családi ház
Eladó családi ház

Dunaújváros, Petőfi Sándor utca 54

44 M Ft
3 szoba
70 m2
Eladó családi ház
Eladó családi ház

Velence

80 M Ft
6 szoba
200 m2
Eladó családi ház
Eladó családi ház

Baracska

29.9 M Ft
4 szoba
63 m2
Eladó családi ház
Eladó családi ház

Kápolnásnyék, Bem utca

119.175 M Ft
5 szoba
156 m2
Eladó családi ház
Eladó családi ház

Lepsény

24.9 M Ft
2 + 1 szoba
72 m2
Eladó családi ház
Eladó családi ház

Pusztaszabolcs

143.9 M Ft
4 szoba
149 m2

Falusi CSOK ingatlanok

Eladó téglalakás
Eladó téglalakás

Balatonszemes

125.2 M Ft
2 szoba
50 m2
Eladó családi ház
Eladó családi ház

Törtel

14 M Ft
3 + 2 szoba
55 m2
Eladó családi ház
Eladó családi ház

Kelebia

13 M Ft
3 szoba
76 m2
Eladó családi ház
Eladó családi ház

Cece

23.5 M Ft
2 szoba
56 m2
Eladó családi ház
Eladó családi ház

Látrány

39.9 M Ft
1 szoba
52 m2
Eladó családi ház
Eladó családi ház

Szigliget

125 M Ft
2 + 2 szoba
137 m2
Eladó családi ház
Eladó családi ház

Egyházaskozár

59 M Ft
4 szoba
162 m2
Eladó családi ház
Eladó családi ház

Somogyszil

27.9 M Ft
3 szoba
140 m2