NapForrás 20 - Buda

Eladó családi ház
Balatonkenese

Figyelem!

Ez az ingatlan a 2019.07.01-től induló falusi CSOK által támogatott településen található

+ 12 kép 1/15
398 000 000 Ft398 M Ft 921 296 Ft/m2
11 szoba
432 m2
építés éve:2009

Részletes adatok

Állapot: Felújított
Telekméret: 1482 m2
Fűtés: Gázkazán
Energetikai besorolás: Nem adta meg a hirdető

Az OTP Bank lakáshitel ajánlataFizetett hirdetés

+36 30 345
Maczucza Márton
OTP Ingatlanpont Veszprém

Érdekel az OTP Bank kedvezményes lakáshitel ajánlata? *

* A kérdésre „Igen” válasz bejelölése esetén, az „Üzenet küldése” gombra kattintva kijelentem, hogy az OTP Bank Nyrt. Adatkezelési tájékoztatójának tartalmát megismertem és tudomásul vettem.

Eladó családi ház leírása

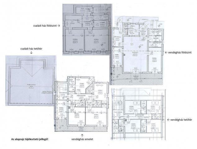
*** SOKOLALÚ BEFEKTETÉSI LEHETŐSÉG BALATONKENESÉN - PANZIÓ + CSALÁDI HÁZ + VENDÉGLŐ! ***

Különleges lehetőség a Balatontól csupán pár lépésre! Ez az összesen 309 m2-es panzió, a 73 m2-es családi házzal, valamint a 60 m2-es vendéglővel együtt, egy 1482 m2-es, jól hasznosítható telken helyezkedik el. A vízparthoz közeli elhelyezkedésnek köszönhetően az ingatlan kiváló befektetés a vendéglátás folytatására, fejlesztésére, vagy akár nagyobb családok állandó otthonának és nyaralójának is remek választás.

A panzió főbb jellemzői:

- 2009-ben épült, háromszintes, igényesen megtervezett épület
- 8 kényelmes apartman, valamint a földszinten nappali + 2 szobás lakás
- Praktikus, átgondolt elrendezés
- Gázkazán és vegyes tüzelésű kazán is rendelkezésre áll
- Modern falfűtés és falhűtés a komfortos hőmérsékletért
- Napkollektor a költséghatékony üzemeltetéshez
- Zárt, kamerával megfigyelt parkoló – 8 autó számára

Vendéglő és családi ház a telken:

- A kisvendéglő ideális lehet a panzió vendégeinek ellátására
- A korábban épült, különálló családi ház kiváló megoldás lehet az üzemeltetők számára
- A melléképületek átalakíthatók, bővíthetők, akár új funkciókkal is

Miért különleges ajánlat?

- Jól karbantartott, megbízható, egész évben működtethető ingatlan
- Több lábon álló hasznosíthatóság: panzió, vendéglátás, céges üdülő, egyéb vállalkozás
- Ritka adottságú lokáció, ahol kevés hasonló méretű és felszereltségű ingatlan érhető el

A vásárláshoz az OTP Otthon Start Lakáshitel is igénybe vehető!

Amennyiben hirdetésem felkeltette az érdeklődését, keressen bizalommal, az ingatlan időpont-egyeztetést követően rugalmasan megtekinthető! Nálunk minden megtekintés DÍJMENTES!

Az OTP Ingatlanpont teljes körű ügyintézéssel áll az eladók és a vevők rendelkezésére. A kínálatunkból választott ingatlan finanszírozásához kedvezményes hitelkonstrukciót kínálunk. Az adásvételi szerződés megkötéséhez igény szerint megbízható ügyvédi közreműködést biztosítunk, és segítséget nyújtunk az adásvételhez kapcsolódó ügyek intézéséhez is!

Hirdetés feltöltve: 2025. 12. 10.

Az ingatlan elhelyezkedése

Cím: Balatonkenese

Eladó családi házak a környékről

Eladó családi ház
Eladó családi ház

Balatonkenese

229 M Ft
6 szoba
243 m2
Eladó családi ház
Eladó családi ház

Kislőd

53.2 M Ft
3 szoba
86 m2
Eladó családi ház
Eladó családi ház

Veszprém

149 M Ft
4 + 1 szoba
250 m2
Eladó családi ház
Eladó családi ház

Pápa, Hunyadi János utca

39 M Ft
3 szoba
125 m2
Eladó családi ház
Eladó családi ház

Balatonkenese

65 M Ft
2 + 1 szoba
108 m2
Eladó családi ház
Eladó családi ház

Tapolca

205 M Ft
6 szoba
338 m2
Eladó családi ház
Eladó családi ház

Balatonkenese

109 M Ft
4 szoba
85 m2
Eladó családi ház
Eladó családi ház

Balatonkenese

63.5 M Ft
1 szoba
30 m2
Eladó családi ház
Eladó családi ház

Balatonkenese

72.4 M Ft
2 szoba
60 m2
Eladó családi ház
Eladó családi ház

Balatonkenese

165.7 M Ft
2 + 4 szoba
179 m2
Eladó családi ház
Eladó családi ház

Ábrahámhegy, Zsákutca

82.9 M Ft
3 + 2 szoba
110 m2
Eladó családi ház
Eladó családi ház

Balatonkenese

63.5 M Ft
1 szoba
30 m2
Eladó családi ház
Eladó családi ház

Balatonkenese

84.9 M Ft
4 szoba
130 m2
Eladó családi ház
Eladó családi ház

Veszprém

149 M Ft
6 + 1 szoba
243 m2
Eladó családi ház
Eladó családi ház

Lesencetomaj

90 M Ft
5 + 1 szoba
180 m2
Eladó családi ház
Eladó családi ház

Balatonkenese, Mikes Kelemen

90 M Ft
2 szoba
75 m2
Eladó családi ház
Eladó családi ház

Balatonkenese

75 M Ft
2 szoba
70 m2
Eladó családi ház
Eladó családi ház

Badacsonytördemic

179.07 M Ft
4 szoba
160 m2
Eladó családi ház
Eladó családi ház

Városlőd

23 M Ft
2 szoba
95 m2
Eladó családi ház
Eladó családi ház

Badacsonytördemic

79.9 M Ft
5 szoba
165 m2
Eladó családi ház
Eladó családi ház

Balatonkenese, Mikes Kelemen

85 M Ft
2 szoba
65 m2
Eladó családi ház
Eladó családi ház

Ábrahámhegy

190 M Ft
5 szoba
112 m2
Eladó családi ház
Eladó családi ház

Balatonkenese

97 M Ft
4 szoba
142 m2
Eladó családi ház
Eladó családi ház

Várpalota

55 M Ft
4 + 2 szoba
113 m2

Falusi CSOK ingatlanok

Eladó családi ház
Eladó családi ház

Vajszló

18 M Ft
2 szoba
91 m2
Eladó téglalakás
Eladó téglalakás

Balatonszemes

125.2 M Ft
2 szoba
50 m2
Eladó családi ház
Eladó családi ház

Mezőfalva

39 M Ft
3 szoba
77 m2
Eladó téglalakás
Eladó téglalakás

Balatonszemes

119.9 M Ft
2 szoba
81 m2
Eladó családi ház
Eladó családi ház

Győrság

86.9 M Ft
4 szoba
92 m2
Eladó ikerház
Eladó ikerház

Balatonakali

129 M Ft
4 szoba
145 m2
Eladó családi ház
Eladó családi ház

Vaskút

64 M Ft
5 szoba
180 m2
Eladó családi ház
Eladó családi ház

Olaszfa

70.38 M Ft
3 szoba
139 m2

Falusi CSOK ingatlanok

Eladó családi ház
Eladó családi ház

Örkény

49.5 M Ft
5 szoba
100 m2
Eladó családi ház
Eladó családi ház

Iváncsa

73.9 M Ft
1 + 3 szoba
97 m2
Eladó családi ház
Eladó családi ház

Hegyhátsál

39.9 M Ft
3 szoba
122 m2
Eladó családi ház
Eladó családi ház

Pétfürdő

65 M Ft
3 szoba
97 m2
Eladó családi ház
Eladó családi ház

Balatonfőkajár

40 M Ft
2 szoba
64 m2
Eladó családi ház
Eladó családi ház

Csengőd

34 M Ft
2 szoba
81 m2
Eladó családi ház
Eladó családi ház

Balogunyom, Petőfi Sándor utca

74.9 M Ft
4 szoba
242 m2
Eladó téglalakás
Eladó téglalakás

Újlengyel

72.99 M Ft
2 szoba
68 m2