NapForrás 20 - Buda

Eladó családi ház
Alsónémedi

+ 2 kép 1/5
109 990 000 Ft109.99 M Ft 999 909 Ft/m2
4 szoba
110 m2
építés éve:2025

Részletes adatok

Telekméret: 650 m2
Fűtés: Egyéb
Közmű: Villany, Csatorna
Energetikai besorolás: Nem adta meg a hirdető

Az OTP Bank lakáshitel ajánlataFizetett hirdetés

+36 70 465
Tóthné Simon Emőke
referens

Érdekel az OTP Bank kedvezményes lakáshitel ajánlata? *

* A kérdésre „Igen” válasz bejelölése esetén, az „Üzenet küldése” gombra kattintva kijelentem, hogy az OTP Bank Nyrt. Adatkezelési tájékoztatójának tartalmát megismertem és tudomásul vettem.

Eladó családi ház leírása

Eladó Alsónémedin egy önálló családi ház, ami a 3%-os Otthon Start Programnak megfelel!!!

Magas műszaki színvonal | Energiatakarékos otthon | Csendes környezet

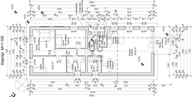
Eladó Alsónémedin az Alsóerdősor utcában egy egyszintes, új építésű, önálló Családi ház .
3 Szoba + amerikai konyhás nappali, fürdőszoba-wc, külön wc, háztartási helyiség

A ház főbb adatai:
•Telek: 650m² (nagy telek opció)
•Nettó Lakóterület: 110 m²
•Beépítés: szabadonálló
•Átadás: 2026. június vége

Magas műszaki tartalom:
•Porotherm 30 N+F tégla falazat
•15 cm homlokzati hőszigetelés
•Terrán Carbon antracit tetőcserép
•Hőszivattyús fűtési rendszer (energiatakarékos)
•3 rétegű antracit műanyag nyílászárók +párkányok
•Antracit ereszcsatorna és modern szürke homlokzati díszcsíkok
•Elektromos kapubeálló előkészítve
•1 db klíma az árban (nappali)
•Elektromos redőny vagy sima redőny kérésre plussz költségként kérhető.

Belső kialakítás – választható burkolatokkal!

A vevő saját ízlésére szabhatja otthonát, mert a burkolatok és szaniterek szabadon választhatók:

Burkolatok
Választható értékhatár (benne az árban)
Hidegburkolat (járólap): 6.000 Ft/m²-ig
Melegburkolat: 5.000 Ft/m²-ig
Kád és tartozékai: 80.000 Ft
Beltéri ajtók kilincsel: 70.000 Ft/db
Csaptelep: 20.000ft/db
Mosdó: 20.000ft/db
Eddig az értékhatárig a kivitelező állja a költséget, a vevő saját maga választhatja ki a burkolatokat!
Igény esetén magasabb kategóriájú burkolatok is rendelhetők felár ellenében!

Víz vagy csatorna kiállás kérésre: 60.000ft/db
Villany kiállás fogyasztóként kérésre: 35.000/db
Kerti csap ára kompletten szerelve kérésre: 130.000ft/db (távolság függő)

A festés kétszeri glettelést és kétszeri fehér festést tartalmaz.
A teraszok búrkolva, a terep síkra húzva, takarítva kerül átadásra. A kiskaputól a házig a ház körül a járda valamint a kocsi beálló viacolorból készül.
Kültéri kerti lámpák és ház körüli lámpák előkészítés és szerelés csak kérésre plussz költségként.
A riasztó és kamerarendszer kiépítve

A településen található 2 bölcsöde, 2 óvoda, 1 iskola, gyógyszertár, posta, önkormányzat, pékségek, több élelmiszer bolt!
+polgárőrség járja egész nap a települést!

Közvetlen buszjárat van a Népligetbe, aminek kb. 20 perc menetidő!

Az ingatlan a 3% Otthon Start Programnak megfelel!

Hívjon a hét bármelyik napján bővebb tájékoztatásért!

Hirdetés feltöltve: 2025. 12. 01. Utoljára módosítva: 2025. 12. 01.

4 szobás családi házak ára Alsónémediben

Ebből az összehasonlításból megtudhatod, hogyan viszonyul a lakás ára a környékbeli családi házak átlagos árához. Ez nem azt jelenti, hogy ennyivel olcsóbb vagy drágább, mint amennyit a lakás ér, hanem hogy ennyivel tér el a környékbeli átlagtól.

Ennek a m² ára
Alsónémedi m² ár
1000 e Ft
687 e Ft -46%
Ennek az ára
Alsónémedi átlagár
109.99 M Ft m Ft
75 m Ft -47%

Az ingatlan elhelyezkedése

Cím: Alsónémedi

Eladó családi házak a környékről

Eladó családi ház
Eladó családi ház

Dunavarsány

69.9 M Ft
3 + 1 szoba
140 m2
Eladó családi ház
Eladó családi ház

Budakeszi, Makkosmária

100 M Ft
1 szoba
10 m2
Eladó családi ház
Eladó családi ház

Alsónémedi

104.9 M Ft
3 szoba
343 m2
Eladó családi ház
Eladó családi ház

Tápiószele

32.9 M Ft
4 szoba
200 m2
Eladó családi ház
Eladó családi ház

Alsónémedi

104.9 M Ft
3 szoba
343 m2
Eladó családi ház
Eladó családi ház

Dunavarsány

49.9 M Ft
3 + 2 szoba
130 m2
Eladó családi ház
Eladó családi ház

Budakeszi, Budakeszi kertváros

140 M Ft
2 szoba
55 m2
Eladó családi ház
Eladó családi ház

Alsónémedi

229 M Ft
5 szoba
259 m2
Eladó családi ház
Eladó családi ház

Alsónémedi

79 M Ft
6 szoba
160 m2
Eladó családi ház
Eladó családi ház

Kerepes

81.99 M Ft
5 szoba
102 m2
Eladó családi ház
Eladó családi ház

Alsónémedi, Nagy ház ls udvar utca

195 M Ft
5 szoba
225 m2
Eladó családi ház
Eladó családi ház

Alsónémedi

229 M Ft
5 szoba
259 m2
Eladó családi ház
Eladó családi ház

Remeteszőlős

399.9 M Ft
5 + 2 szoba
260 m2
Eladó családi ház
Eladó családi ház

Budaörs, Városközpont utca

119.5 M Ft
5 + 1 szoba
140 m2
Eladó családi ház
Eladó családi ház

Alsónémedi

129.9 M Ft
5 szoba
160 m2
Eladó családi ház
Eladó családi ház

Budaörs, Odvshegy utca

268.9 M Ft
5 szoba
235 m2
Eladó családi ház
Eladó családi ház

Kerepes

199 M Ft
6 szoba
360 m2
Eladó családi ház
Eladó családi ház

Alsónémedi

125 M Ft
6 szoba
200 m2
Eladó családi ház
Eladó családi ház

Dunakeszi

250 M Ft
4 szoba
180 m2
Eladó családi ház
Eladó családi ház

Alsónémedi

104.9 M Ft
5 szoba
150 m2
Eladó családi ház
Eladó családi ház

Alsónémedi

450 M Ft
10 szoba
450 m2
Eladó családi ház
Eladó családi ház

Alsónémedi, Háromszintes ház

89 M Ft
9 szoba
320 m2
Eladó családi ház
Eladó családi ház

Alsónémedi

450 M Ft
10 szoba
450 m2
Eladó családi ház
Eladó családi ház

Alsónémedi

79 M Ft
6 szoba
160 m2

Falusi CSOK ingatlanok

Eladó családi ház
Eladó családi ház

Szabadbattyán

136 M Ft
5 szoba
226 m2
Eladó családi ház
Eladó családi ház

Csemő, Vasút dűlő

20.9 M Ft
3 szoba
68 m2
Eladó téglalakás
Eladó téglalakás

Nyáregyháza

61.5 M Ft
4 szoba
91 m2
Eladó családi ház
Eladó családi ház

Nagykarácsony

34.9 M Ft
3 szoba
112 m2
Eladó családi ház
Eladó családi ház

Nádasd

84.9 M Ft
4 szoba
143 m2
Eladó családi ház
Eladó családi ház

Nyírtura

74.9 M Ft
3 szoba
120 m2
Eladó családi ház
Eladó családi ház

Ceglédbercel, Iskola utca

109 M Ft
5 szoba
133 m2
Eladó családi ház
Eladó családi ház

Ábrahámhegy

139 M Ft
4 szoba
106 m2