River Life

Eladó családi ház
Alap

Figyelem!

Ez az ingatlan a 2019.07.01-től induló falusi CSOK által támogatott településen található

+ 12 kép 1/15
20 000 000 Ft20 M Ft 289 855 Ft/m2
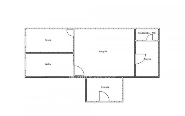
2 szoba
69 m²
építés éve:1950

Részletes adatok

Állapot: Felújítandó
Telekméret: 1903 m2
Fűtés: Egyéb
Energetikai besorolás: I

Az OTP Bank lakáshitel ajánlataFizetett hirdetés

+36 70 228
Forgács Martin
referens

Érdekel az OTP Bank kedvezményes lakáshitel ajánlata? *

* A kérdésre „Igen” válasz bejelölése esetén, az „Üzenet küldése” gombra kattintva kijelentem, hogy az OTP Bank Nyrt. Adatkezelési tájékoztatójának tartalmát megismertem és tudomásul vettem.

Eladó családi ház leírása

Fejér vármegyében, Alapon eladóvá vált egy 69m2-es vegyes falazatú, cseréptetővel ellátott családi ház. Az ingatlan jogilag rendezett, teher- és tartozásmentes.
A házban az abalakok illetve ajtók cserélve lettek. Az ingatlan felújítást igényel. Víz, villany és szennyvíz akna van.
A házhoz tartozik egy melléképület is.
A telek 1903m2-es.
Székesfehérvár csupán 50 km, a Balaton legközelebbi pontja pedig mindössze 40 km távolságra érhető el.

Az OTP Ingatlanpont teljeskörű ügyintézéssel áll az eladók és a vevők rendelkezésére! A kínálatunkból választott ingatlan finanszírozásához kedvezményes hitel- és pénzügyi konstrukciókat kínálunk. Az adásvételi szerződés megkötéséhez igény szerint megbízható ügyvédi közreműködést és a kapcsolódó ügyek intézéséhez segítséget nyújtunk.

Amennyiben megtetszett Önnek a hirdetés és bármi kérdése lenne, kérem keressen bizalommal. Köszönöm!

Hirdetés feltöltve: 2026. 04. 17. Utoljára módosítva: 2026. 05. 10.

Az ingatlan elhelyezkedése

Cím: Alap

Eladó ingatlanok a környékről

Nádasdladány
Eladó ikerház

Nádasdladány

37.7 M Ft
2 szoba
63 m²
Alap
Eladó családi ház

Alap

22 M Ft
2 szoba
96 m²
Lovasberény
Eladó telek

Lovasberény

22 M Ft
1543 m²
0 m²
Iváncsa, Táncsics Mihály utca
Eladó családi ház

Iváncsa

86 M Ft
4 szoba
120 m²
Dunaújváros
Eladó téglalakás

Dunaújváros

37.5 M Ft
2 szoba
55 m²
Székesfehérvár
Eladó családi ház

Székesfehérvár

179 M Ft
6 szoba
160 m²
Székesfehérvár
Eladó panellakás

Székesfehérvár

55.5 M Ft
2 szoba
53 m²
Sukoró
Eladó családi ház

Sukoró

189 M Ft
4 + 1 szoba
195 m²
Pusztaszabolcs
Eladó családi ház

Pusztaszabolcs

143.9 M Ft
4 szoba
149 m²
Alap
Eladó családi ház

Alap

9.9 M Ft
2 szoba
76 m²
Soponya
Eladó családi ház

Soponya

88.999 M Ft
7 szoba
202 m²
Dunaújváros
Eladó családi ház

Dunaújváros

75 M Ft
3 szoba
133 m²
Csákvár
Eladó családi ház

Csákvár

29.9 M Ft
4 szoba
120 m²
Lovasberény
Eladó telek

Lovasberény

18 M Ft
1058 m²
0 m²
Sukoró
Eladó családi ház

Sukoró

69.9 M Ft
3 szoba
54 m²
Székesfehérvár
Eladó családi ház

Székesfehérvár

59 M Ft
3 szoba
100 m²
Felcsút, Rákóczi Ferenc utca
Eladó családi ház

Felcsút

32 M Ft
2 + 1 szoba
55 m²
Lepsény, Róka sétány
Eladó családi ház

Lepsény

64.9 M Ft
5 + 1 szoba
203 m²
Gárdony
Eladó téglalakás

Gárdony

57 M Ft
3 szoba
57 m²
Alap
Eladó családi ház

Alap

39.99 M Ft
4 szoba
97 m²
Mány
Eladó családi ház

Mány

18.5 M Ft
3 szoba
70 m²
Dunaújváros
Eladó téglalakás

Dunaújváros

33 M Ft
1 + 1 szoba
47 m²
Gánt, Gánti út
Eladó családi ház

Gánt

29.9 M Ft
2 + 1 szoba
40 m²
Velence, Liget utca
Eladó családi ház

Velence

149 M Ft
2 + 2 szoba
150 m²

Falusi CSOK ingatlanok

Recsk
Eladó családi ház

Recsk

40 M Ft
3 + 1 szoba
110 m²
Balatonakali
Eladó ikerház

Balatonakali

550 M Ft
4 szoba
94 m²
Vértesboglár, Dózsa utca
Eladó családi ház

Vértesboglár

95 M Ft
4 szoba
110 m²
Verseg
Eladó családi ház

Verseg

41.5 M Ft
2 szoba
55 m²
Pannonhalma
Eladó téglalakás

Pannonhalma

68 M Ft
4 szoba
153 m²
Tápióság
Eladó családi ház

Tápióság

30 M Ft
3 szoba
105 m²
Sárosd
Eladó családi ház

Sárosd

21.9 M Ft
3 szoba
86 m²
Táborfalva, Tarcsay út
Eladó téglalakás

Táborfalva

33 M Ft
2 + 1 szoba
68 m²

Falusi CSOK ingatlanok

Kánya
Eladó családi ház

Kánya

5.5 M Ft
3 szoba
70 m²
Bag
Eladó családi ház

Bag

16.9 M Ft
6 szoba
160 m²
Ádánd
Eladó családi ház

Ádánd

74.99 M Ft
5 szoba
150 m²
Kiszombor, Óbébai utca
Eladó családi ház

Kiszombor

32.9 M Ft
4 szoba
140 m²
Jánosháza
Eladó családi ház

Jánosháza

32 M Ft
2 szoba
116 m²
Táborfalva, Tarcsay út
Eladó téglalakás

Táborfalva

33 M Ft
2 + 1 szoba
68 m²
Sződ
Eladó családi ház

Sződ

116 M Ft
5 szoba
136 m²
Marcalgergelyi
Eladó családi ház

Marcalgergelyi

31 M Ft
2 + 1 szoba
120 m²