Oasis Residence

Kiadó üzlethelyiség
Zamárdi, 10 felett

1/1
270 000 Ft270 E Ft / hó 1 688 Ft/m2
2 szoba
160 m²
10 felett
építés éve:1988

Részletes adatok

Állapot: Átlagos
Telekméret: 218 m2
Fűtés: Egyéb
Emelet: 10 felett
Energetikai besorolás: Nem adta meg a hirdető

Az OTP Bank lakáshitel ajánlataFizetett hirdetés

Hitelösszeg 10 millió Ft
Futamidő 20 év
Induló törlesztőrészlet 67 508 Ft
Törlesztőrészlet a 13. hónaptól 86 071 Ft
THM 8,6 %

A tájékoztatás nem teljes körű és nem minősül ajánlattételnek. Az OTP Évnyerő Lakáshitelei 1 éves türelmi idős kölcsönök, amellyel az első 12 hónapban alacsonyabb a havi törlesztőrészlet. A tőke törlesztését a 13. hónaptól kell megkezdeni.

    Részletes kalkuláció
    +36 30 339
    Dér Attila
    Városi Ingatlaniroda - VING

    Érdekel az OTP Bank kedvezményes lakáshitel ajánlata? *

    * A kérdésre „Igen” válasz bejelölése esetén, az „Üzenet küldése” gombra kattintva kijelentem, hogy az OTP Bank Nyrt. Adatkezelési tájékoztatójának tartalmát megismertem és tudomásul vettem.

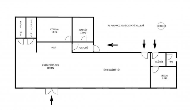
    Kiadó üzlethelyiség leírása

    Kiadó vendéglátó egység Zamárdi-felsőn – 100 méterre a Balatontól!

    Kiadó Zamárdi-felsőn, a Balatontól mindössze 100 méterre, egy 160 m²-es vendéglátó egység, amely ideális választás lehet kézműves pékség, pizzéria, kávézó vagy street food koncepció megvalósítására.

    Az ingatlan 100 m²-es tágas vendégtérrel rendelkezik, amely jól alakítható különböző vendéglátó elképzelésekhez. A 218 m²-es telken elhelyezkedő üzlet előtt kb. 30 m²-es terasz található, amely a nyári szezonban jelentős forgalmat és bevételt generálhat.

    Főbb jellemzők:

    160 m² alapterület
    100 m² világos, jól kihasználható vendégtér
    külön konyha és tárolók
    többfunkciós helyiség (iroda / pihenő)
    átlagos állapot – saját arculatra formálható
    teraszos vendéglátás lehetősége

    Miért ideális vendéglátásra?

    100 méterre a Balatontól – folyamatos nyári gyalogos forgalom
    - kiváló lokáció pékség + pizza + kávé kombinációhoz
    - terasz → gyorsabb pörgés, nagyobb bevétel
    - többféle koncepció egyszerre is működhet

    Rugalmas együttműködés
    - Akár közös üzemeltetés is lehetséges megfelelő koncepció esetén
    - Indulásban segítséget nyújtunk – tapasztalattal és gyakorlati támogatással
    - hosszú távú együttműködésben gondolkodunk

    Ne maradjon le róla!

    Hívjon most, és beszéljük át az elképzelését – egy jó koncepcióval ez a hely gyorsan sikeressé tehető!

    A bérleti szerződés közjegyzői okiratba foglalással készül. Három havi kaució szükséges.

    Hirdetés feltöltve: 2026. 04. 25. Utoljára módosítva: 2026. 05. 10.

    üzlethelyiségek ára Zamárdiban

    Ebből az összehasonlításból megtudhatod, hogyan viszonyul a lakás ára a környékbeli üzlethelyiségek átlagos árához. Ez nem azt jelenti, hogy ennyivel olcsóbb vagy drágább, mint amennyit a lakás ér, hanem hogy ennyivel tér el a környékbeli átlagtól.

    Ennek a m² ára
    Zamárdi m² ár
    2 e Ft
    1171 e Ft 100%
    Ennek az ára
    Zamárdi átlagár
    270 E Ft / hó m Ft
    237.7 m Ft 100%

    Az ingatlan elhelyezkedése

    Cím: Zamárdi, 10 felett

    Kiadó ingatlanok a környékről

    Kaposvár
    Kiadó téglalakás, albérlet

    Kaposvár

    140 E Ft / hó
    1 + 1 szoba
    43 m²
    Kaposvár, Belváros, Németh István fasor
    Kiadó téglalakás, albérlet

    Kaposvár

    180 E Ft / hó
    2 + 1 szoba
    68 m²
    Siófok
    Kiadó téglalakás, albérlet

    Siófok

    200 E Ft / hó
    2 szoba
    59 m²
    Kaposvár, Belváros, Hegyalja utca
    Kiadó téglalakás, albérlet

    Kaposvár

    195 E Ft / hó
    4 szoba
    107 m²
    Kaposvár
    Kiadó téglalakás, albérlet

    Kaposvár

    180 E Ft / hó
    3 szoba
    90 m²
    Kaposvár, Belváros, Petőfi tér
    Kiadó üzlethelyiség

    Kaposvár

    466 E Ft / hó
    115 m²
    Kaposvár, Északnyugati városrész, Béke utca
    Kiadó panellakás, albérlet

    Kaposvár

    130 E Ft / hó
    2 szoba
    49 m²
    Kaposvár, Belváros, Zárda utca
    Kiadó üzlethelyiség

    Kaposvár

    48 E Ft / hó
    23 m²
    Siófok
    Kiadó üzlethelyiség

    Siófok

    1000 E Ft / hó
    1 szoba
    500 m²
    Siófok
    Kiadó téglalakás, albérlet

    Siófok

    400 E Ft / hó
    3 szoba
    68 m²
    Kaposvár, Északnyugati városrész, Füredi utca
    Kiadó üzlethelyiség

    Kaposvár

    140 E Ft / hó
    89 m²
    Kaposvár
    Kiadó iroda

    Kaposvár

    75 E Ft / hó
    39 m²
    Kaposvár
    Kiadó téglalakás, albérlet

    Kaposvár

    150 E Ft / hó
    2 szoba
    55 m²
    Kaposvár
    Kiadó téglalakás, albérlet

    Kaposvár

    130 E Ft / hó
    2 szoba
    55 m²
    Siófok
    Kiadó téglalakás, albérlet

    Siófok

    180 E Ft / hó
    1 szoba
    46 m²
    Siófok
    Kiadó üzlethelyiség

    Siófok

    270 E Ft / hó
    2 szoba
    28 m²
    Kaposvár, Északnyugati városrész, Béke utca
    Kiadó panellakás, albérlet

    Kaposvár

    130 E Ft / hó
    2 szoba
    49 m²
    Balatonföldvár
    Kiadó téglalakás, albérlet

    Balatonföldvár

    590 E Ft / hó
    4 szoba
    120 m²
    Kaposvár, Belváros, Zárda utca
    Kiadó ipari ingatlan

    Kaposvár

    165 E Ft / hó
    2 + 1 szoba
    50 m²
    Kaposvár, Belváros, Irányi Dániel utca
    Kiadó iroda

    Kaposvár

    110 E Ft / hó
    1 szoba
    25 m²
    Kaposújlak
    Kiadó ipari ingatlan

    Kaposújlak

    900 E Ft / hó
    3000 m²
    634 m²
    Kaposvár, Belváros, Teleki utca
    Kiadó üzlethelyiség

    Kaposvár

    200 E Ft / hó
    56 m²
    56 m²
    Kaposvár
    Kiadó panellakás, albérlet

    Kaposvár

    150 E Ft / hó
    2 + 1 szoba
    57 m²
    Kaposvár, Belváros, Csokonai u
    Kiadó téglalakás, albérlet

    Kaposvár

    130 E Ft / hó
    1 szoba
    42 m²

    Falusi CSOK ingatlanok

    Nagykarácsony
    Eladó családi ház

    Nagykarácsony

    34.9 M Ft
    3 szoba
    112 m²
    Galgahévíz
    Eladó családi ház

    Galgahévíz

    43 M Ft
    3 szoba
    115 m²
    Bagod
    Eladó családi ház

    Bagod

    52 M Ft
    2 + 2 szoba
    112 m²
    Csurgó
    Eladó családi ház

    Csurgó

    19.9 M Ft
    4 szoba
    136 m²
    Jászkarajenő
    Eladó családi ház

    Jászkarajenő

    17 M Ft
    3 szoba
    81 m²
    Mesztegnyő
    Eladó családi ház

    Mesztegnyő

    23.8 M Ft
    2 szoba
    70 m²
    Hosszúpereszteg
    Eladó családi ház

    Hosszúpereszteg

    27.9 M Ft
    4 szoba
    0 m²
    Mezőszilas
    Eladó családi ház

    Mezőszilas

    24.9 M Ft
    3 szoba
    175 m²