Avico Greentop

Kiadó téglalakás, albérlet
Salgótarján, 3. emelet

+ 9 kép 1/12
120 000 Ft120 E Ft / hó 2 400 Ft/m2
2 + 1 szoba
50 m²
3. emelet
építés éve:1976

Részletes adatok

Fűtés: Gázkonvektor
Emelet: 3. emelet
Energetikai besorolás: F

Az OTP Bank lakáshitel ajánlataFizetett hirdetés

Hitelösszeg 10 millió Ft
Futamidő 20 év
Induló törlesztőrészlet 67 508 Ft
Törlesztőrészlet a 13. hónaptól 86 071 Ft
THM 8,6 %

A tájékoztatás nem teljes körű és nem minősül ajánlattételnek. Az OTP Évnyerő Lakáshitelei 1 éves türelmi idős kölcsönök, amellyel az első 12 hónapban alacsonyabb a havi törlesztőrészlet. A tőke törlesztését a 13. hónaptól kell megkezdeni.

    Részletes kalkuláció
    +36 70 439
    Tatár Tamás
    Városi Ingatlaniroda - VING

    Érdekel az OTP Bank kedvezményes lakáshitel ajánlata? *

    * A kérdésre „Igen” válasz bejelölése esetén, az „Üzenet küldése” gombra kattintva kijelentem, hogy az OTP Bank Nyrt. Adatkezelési tájékoztatójának tartalmát megismertem és tudomásul vettem.

    Kiadó téglalakás, albérlet leírása

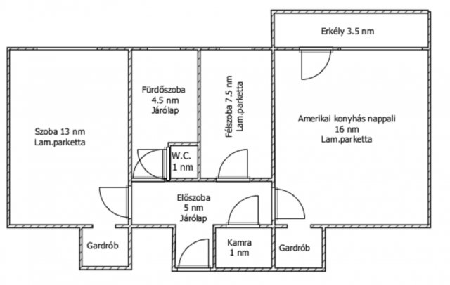
    Salgótarján (Kemerovó lakótelep), 50 nm-es, felújított, berendezett, gépesített, klimatizált, 3. emeleti lakás kiadó!

    A lakásban amerikai konyhás nappali, 2 hálószoba, fürdőszoba, kamra, előszoba, erkély található.

    A fűtést gázkonvektorok, a meleg víz ellátást átfolyós gázos vízmelegítő biztosítja.

    A bérleti szerződés határozott időre, minimum 1 évre létesíthető. A szerződéskötés feltétele 2 havi kaució+tárgyhavi bérleti díj megfizetése.

    A lakásba maximum 2 felnőtt személy költözhet, kisállat NEM hozható, a dohányzás NEM megengedett.

    Hirdetés feltöltve: 2026. 04. 17. Utoljára módosítva: 2026. 04. 19.

    Az ingatlan elhelyezkedése

    Cím: Salgótarján, 3. emelet

    Kiadó ingatlanok, albérletek a környékről

    Salgótarján
    Kiadó iroda

    Salgótarján

    50 E Ft / hó
    14 m²
    Salgótarján
    Kiadó üzlethelyiség

    Salgótarján

    1650 E Ft / hó
    425 m²
    Salgótarján
    Kiadó panellakás, albérlet

    Salgótarján

    110 E Ft / hó
    2 szoba
    48 m²
    Salgótarján
    Kiadó téglalakás, albérlet

    Salgótarján

    130 E Ft / hó
    2 szoba
    55 m²
    Salgótarján
    Kiadó üzlethelyiség

    Salgótarján

    546 E Ft / hó
    91 m²
    Szécsény
    Kiadó családi ház, albérlet

    Szécsény

    130 E Ft / hó
    2 szoba
    60 m²
    Salgótarján
    Kiadó üzlethelyiség

    Salgótarján

    260 E Ft / hó
    200 m²
    76 m²
    Salgótarján
    Kiadó iroda

    Salgótarján

    250 E Ft / hó
    4 szoba
    105 m²
    Erdőkürt
    Kiadó családi ház, albérlet

    Erdőkürt

    125 E Ft / hó
    2 szoba
    65 m²
    Salgótarján
    Kiadó iroda

    Salgótarján

    125 E Ft / hó
    2 szoba
    49 m²
    Karancsság
    Kiadó családi ház, albérlet

    Karancsság

    100 E Ft / hó
    6 + 1 szoba
    180 m²
    Balassagyarmat
    Kiadó panellakás, albérlet

    Balassagyarmat

    120 E Ft / hó
    2 szoba
    52 m²
    Bér
    Kiadó téglalakás, albérlet

    Bér

    250 E Ft / hó
    4 szoba
    100 m²
    Bátonyterenye
    Kiadó ipari ingatlan

    Bátonyterenye

    1000 E Ft / hó
    1 ha
    8000 m²
    Salgótarján
    Kiadó iroda

    Salgótarján

    650 E Ft / hó
    190 m²
    Salgótarján
    Kiadó üzlethelyiség

    Salgótarján

    325 E Ft / hó
    110 m²
    Salgótarján
    Kiadó panellakás, albérlet

    Salgótarján

    100 E Ft / hó
    2 szoba
    52 m²
    Salgótarján
    Kiadó üzlethelyiség

    Salgótarján

    90 E Ft / hó
    12 m²
    Salgótarján
    Kiadó üzlethelyiség

    Salgótarján

    430 E Ft / hó
    105 m²
    Salgótarján
    Kiadó üzlethelyiség

    Salgótarján

    195 E Ft / hó
    50 m²
    Szécsény
    Kiadó családi ház, albérlet

    Szécsény

    130 E Ft / hó
    2 szoba
    60 m²
    Salgótarján
    Kiadó téglalakás, albérlet

    Salgótarján

    130 E Ft / hó
    2 szoba
    55 m²
    Salgótarján
    Kiadó téglalakás, albérlet

    Salgótarján

    130 E Ft / hó
    2 szoba
    55 m²
    Bátonyterenye
    Kiadó ipari ingatlan

    Bátonyterenye

    4235 E Ft / hó
    5000 m²

    Falusi CSOK ingatlanok

    Érpatak
    Eladó családi ház

    Érpatak

    35 M Ft
    4 szoba
    160 m²
    Szigliget
    Eladó családi ház

    Szigliget

    299 M Ft
    3 szoba
    95 m²
    Nagyszénás, Bajcsy-Zsilinszky utca 60
    Eladó családi ház

    Nagyszénás

    11.7 M Ft
    1 + 1 szoba
    128 m²
    Isztimér
    Eladó családi ház

    Isztimér

    105 M Ft
    6 szoba
    138 m²
    Dombrád, Rákóczi út 22
    Eladó családi ház

    Dombrád

    12.74 M Ft
    1 + 1 szoba
    125 m²
    Belezna
    Eladó családi ház

    Belezna

    9.5 M Ft
    2 szoba
    86 m²
    Kétegyháza
    Eladó családi ház

    Kétegyháza

    37.5 M Ft
    2 + 1 szoba
    98 m²
    Szarvaskő, Rózsa utca
    Eladó családi ház

    Szarvaskő

    54.9 M Ft
    1 + 3 szoba
    140 m²