Aerogate Homes

Kiadó panellakás, albérlet
Salgótarján, 2. emelet

+ 15 kép 1/18
100 000 Ft100 E Ft / hó 1 923 Ft/m2
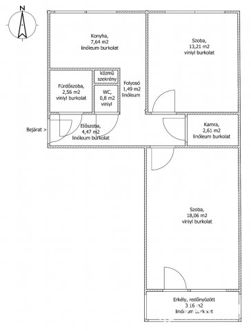
2 szoba
52 m²
2. emelet
építés éve:1980

Részletes adatok

Állapot: Felújított
Fűtés: Házközponti
Emelet: 2. emelet
Energetikai besorolás: G

Az OTP Bank lakáshitel ajánlataFizetett hirdetés

Hitelösszeg 10 millió Ft
Futamidő 20 év
Induló törlesztőrészlet 67 508 Ft
Törlesztőrészlet a 13. hónaptól 86 071 Ft
THM 8,6 %

A tájékoztatás nem teljes körű és nem minősül ajánlattételnek. Az OTP Évnyerő Lakáshitelei 1 éves türelmi idős kölcsönök, amellyel az első 12 hónapban alacsonyabb a havi törlesztőrészlet. A tőke törlesztését a 13. hónaptól kell megkezdeni.

    Részletes kalkuláció
    +36 70 423
    Butkai Ottó
    Városi Ingatlaniroda - VING

    Érdekel az OTP Bank kedvezményes lakáshitel ajánlata? *

    * A kérdésre „Igen” válasz bejelölése esetén, az „Üzenet küldése” gombra kattintva kijelentem, hogy az OTP Bank Nyrt. Adatkezelési tájékoztatójának tartalmát megismertem és tudomásul vettem.

    Kiadó panellakás, albérlet leírása

    Salgótarjánban kedvező áron kiadó egy 52 m2-es, 2. emeleti, erkélyes lakás!
    A bérleti díj 100 000 Ft/hó
    A tulajdonos azt a bérlőt keresi, aki
    - nagykorú,
    - legfeljebb másodmagával, kiskorú nélkül kíván beköltözni,
    - rendelkezik állandó havi jövedelemmel és TB jogviszonnyal,
    - hosszabb időre, legalább 1 évre kívánja igénybe venni!
    - A bérlés feltétele 2 havi kaúció, és az első havi bérleti díj megfizetése.
    A lakás távfűtéses, kedvező elrendezésű, kényelmes ingatlan, a képeken látható bútorokkal, hűtőgéppel, mosógéppel, gáztűzhellyel felszerelve kiadó.
    A bérleti díjon kívül, a közüzemi díjakat és a közös költséget a bérlő köteles megfizetni a bérleti díjjal együtt, havonta a tulajdonos által megküldött elszámolás alapján.
    Érdeklődni a +36 70 423 1304-es telefonszámon lehet.

    Hirdetés feltöltve: 2026. 03. 16. Utoljára módosítva: 2026. 04. 06.

    Az ingatlan elhelyezkedése

    Cím: Salgótarján, 2. emelet

    Kiadó ingatlanok, albérletek a környékről

    Salgótarján
    Kiadó üzlethelyiség

    Salgótarján

    1500 E Ft / hó
    425 m²
    Salgótarján
    Kiadó iroda

    Salgótarján

    125 E Ft / hó
    2 szoba
    49 m²
    Salgótarján
    Kiadó iroda

    Salgótarján

    50 E Ft / hó
    14 m²
    Karancsság
    Kiadó családi ház, albérlet

    Karancsság

    100 E Ft / hó
    6 + 1 szoba
    180 m²
    Szécsény
    Kiadó családi ház, albérlet

    Szécsény

    130 E Ft / hó
    2 szoba
    60 m²
    Salgótarján
    Kiadó iroda

    Salgótarján

    650 E Ft / hó
    190 m²
    Bátonyterenye
    Kiadó ipari ingatlan

    Bátonyterenye

    4235 E Ft / hó
    5000 m²
    Salgótarján
    Kiadó üzlethelyiség

    Salgótarján

    195 E Ft / hó
    50 m²
    Erdőkürt
    Kiadó családi ház, albérlet

    Erdőkürt

    120 E Ft / hó
    2 szoba
    60 m²
    Salgótarján
    Kiadó téglalakás, albérlet

    Salgótarján

    130 E Ft / hó
    2 szoba
    55 m²
    Balassagyarmat
    Kiadó panellakás, albérlet

    Balassagyarmat

    120 E Ft / hó
    2 szoba
    52 m²
    Salgótarján
    Kiadó iroda

    Salgótarján

    250 E Ft / hó
    4 szoba
    105 m²
    Bátonyterenye
    Kiadó ipari ingatlan

    Bátonyterenye

    1000 E Ft / hó
    1 ha
    8000 m²
    Salgótarján
    Kiadó üzlethelyiség

    Salgótarján

    430 E Ft / hó
    105 m²
    Salgótarján
    Kiadó üzlethelyiség

    Salgótarján

    325 E Ft / hó
    110 m²
    Salgótarján
    Kiadó téglalakás, albérlet

    Salgótarján

    120 E Ft / hó
    2 szoba
    53 m²
    Salgótarján
    Kiadó üzlethelyiség

    Salgótarján

    546 E Ft / hó
    91 m²
    Salgótarján
    Kiadó üzlethelyiség

    Salgótarján

    90 E Ft / hó
    12 m²
    Balassagyarmat
    Kiadó panellakás, albérlet

    Balassagyarmat

    120 E Ft / hó
    2 szoba
    52 m²
    Szécsény
    Kiadó családi ház, albérlet

    Szécsény

    130 E Ft / hó
    2 szoba
    60 m²
    Salgótarján
    Kiadó garázs

    Salgótarján

    15 E Ft / hó
    18 m²
    Bér
    Kiadó téglalakás, albérlet

    Bér

    250 E Ft / hó
    4 szoba
    100 m²
    Salgótarján
    Kiadó üzlethelyiség

    Salgótarján

    260 E Ft / hó
    200 m²
    76 m²

    Falusi CSOK ingatlanok

    Balatonszemes
    Eladó téglalakás

    Balatonszemes

    125.2 M Ft
    2 szoba
    50 m²
    Kenderes
    Eladó családi ház

    Kenderes

    130 M Ft
    6 + 2 szoba
    420 m²
    Nagykarácsony
    Eladó családi ház

    Nagykarácsony

    34.9 M Ft
    3 szoba
    112 m²
    Tápióság
    Eladó családi ház

    Tápióság

    59.9 M Ft
    4 szoba
    99 m²
    Kenyeri
    Eladó családi ház

    Kenyeri

    21.8 M Ft
    2 szoba
    75 m²
    Bőny
    Eladó sorház

    Bőny

    37.8 M Ft
    3 szoba
    63 m²
    Kadarkút
    Eladó családi ház

    Kadarkút

    27.8 M Ft
    4 szoba
    109 m²
    Fonyód, Virág utca
    Eladó ikerház

    Fonyód

    58.9 M Ft
    2 szoba
    36 m²