River Life

Kiadó téglalakás, albérlet
Göd, 2. emelet

+ 5 kép 1/8
300 000 Ft300 E Ft / hó 4 286 Ft/m2
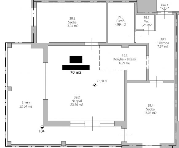
3 szoba
70 m²
2. emelet
építés éve:2022

Részletes adatok

Állapot: Újszerű
Fűtés: Egyéb
Emelet: 2. emelet
Közmű: Víz, Villany, Csatorna, Szélessáv
Extrák: Lift
Energetikai besorolás: A

Az OTP Bank lakáshitel ajánlataFizetett hirdetés

Hitelösszeg 10 millió Ft
Futamidő 20 év
Induló törlesztőrészlet 67 508 Ft
Törlesztőrészlet a 13. hónaptól 86 071 Ft
THM 8,6 %

A tájékoztatás nem teljes körű és nem minősül ajánlattételnek. Az OTP Évnyerő Lakáshitelei 1 éves türelmi idős kölcsönök, amellyel az első 12 hónapban alacsonyabb a havi törlesztőrészlet. A tőke törlesztését a 13. hónaptól kell megkezdeni.

    Részletes kalkuláció
    +36 30 200
    Homeflow
    referens

    Érdekel az OTP Bank kedvezményes lakáshitel ajánlata? *

    * A kérdésre „Igen” válasz bejelölése esetén, az „Üzenet küldése” gombra kattintva kijelentem, hogy az OTP Bank Nyrt. Adatkezelési tájékoztatójának tartalmát megismertem és tudomásul vettem.

    Kiadó téglalakás, albérlet leírása

    Göd lakóparkjában hosszútávra kiadó, magára és környezetére is igényes, maximum 3 tagú család részére, egy liftes társasház 2. emeleti lakása. Az ingatlan 70 nm-es, 2022 környékén épült szigetelt téglafalazattal, házközponti hőszivattyús fűtéssel, vízellátással. Nyílászárói műanyag szerkezetűek. Az ingatlan gépesített konyhával, részben bútorozott nappalival, hálószobával és fürdőszobával várja új nem dohányzó bérlőjét. Szükség esetén bérleményhez autóbeálló plusz tárolóval 29.500.-Ft bérlehető.
    Az ingatlanba kisállat nem hozható!
    A lakásbérlet díja: 300.000. Ft/ hó, plusz 30.000.-Ft közösköltség, melyhez rezsiszámla évszaktól függően 30.000.-Ft és 10.000.-Ft körül mozog.
    Bérléshez egy havi bérleti díj+ 2 havi kaució és közjegyzői okiratba foglalt kiköltözési nyilatkozat szükséges.

    Hirdetés feltöltve: 2026. 04. 23. Utoljára módosítva: 2026. 05. 11.

    Az ingatlan elhelyezkedése

    Cím: Göd, 2. emelet

    Kiadó ingatlanok, albérletek a környékről

    Nagykáta
    Kiadó üzlethelyiség

    Nagykáta

    180 E Ft / hó
    47 m²
    Dunaharaszti
    Kiadó téglalakás, albérlet

    Dunaharaszti

    180 E Ft / hó
    1 szoba
    41 m²
    Csömör
    Kiadó iroda

    Csömör

    1605 E Ft / hó
    340 m²
    Leányfalu
    Kiadó családi ház, albérlet

    Leányfalu

    1200 E Ft / hó
    6 szoba
    400 m²
    Budaörs
    Kiadó ipari ingatlan

    Budaörs

    250 E Ft / hó
    150 m²
    Budaörs
    Kiadó ipari ingatlan

    Budaörs

    80 E Ft / hó
    46 m²
    Törökbálint, Balassi Bálint utca
    Kiadó téglalakás, albérlet

    Törökbálint

    510 E Ft / hó
    3 szoba
    78 m²
    Budakalász, József Attila utca
    Kiadó iroda

    Budakalász

    80 E Ft / hó
    15 m²
    Dunakeszi, Szent István park környéke, Csermely u
    Kiadó téglalakás, albérlet

    Dunakeszi

    220 E Ft / hó
    1 + 2 szoba
    45 m²
    Nagykőrös
    Kiadó téglalakás, albérlet

    Nagykőrös

    350 E Ft / hó
    4 szoba
    130 m²
    Érd
    Kiadó téglalakás, albérlet

    Érd

    225 E Ft / hó
    2 szoba
    40 m²
    Cegléd
    Kiadó téglalakás, albérlet

    Cegléd

    220 E Ft / hó
    2 szoba
    67 m²
    Cegléd
    Kiadó téglalakás, albérlet

    Cegléd

    250 E Ft / hó
    2 szoba
    40 m²
    Vác
    Kiadó családi ház, albérlet

    Vác

    460 E Ft / hó
    6 + 1 szoba
    184 m²
    Sülysáp
    Kiadó ipari ingatlan

    Sülysáp

    570 E Ft / hó
    285 m²
    Budaörs
    Kiadó ipari ingatlan

    Budaörs

    495 E Ft / hó
    144 m²
    Budaörs
    Kiadó iroda

    Budaörs

    439 E Ft / hó
    150 m²
    Cegléd
    Kiadó téglalakás, albérlet

    Cegléd

    250 E Ft / hó
    2 szoba
    40 m²
    Budaörs
    Kiadó ipari ingatlan

    Budaörs

    80 E Ft / hó
    46 m²
    Budaörs
    Kiadó téglalakás, albérlet

    Budaörs

    310 E Ft / hó
    2 szoba
    52 m²
    Érd
    Kiadó téglalakás, albérlet

    Érd

    200 E Ft / hó
    2 szoba
    30 m²
    Gyál, Bánki Donát utca
    Kiadó téglalakás, albérlet

    Gyál

    180 E Ft / hó
    1 szoba
    21 m²
    Budaörs, Nefelejcs utca
    Kiadó téglalakás, albérlet

    Budaörs

    300 E Ft / hó
    3 + 1 szoba
    92 m²
    Szigetszentmiklós
    Kiadó téglalakás, albérlet

    Szigetszentmiklós

    240 E Ft / hó
    2 szoba
    82 m²

    Falusi CSOK ingatlanok

    Balatonkeresztúr, Kaposvári utca
    Eladó családi ház

    Balatonkeresztúr

    81 M Ft
    5 szoba
    140 m²
    Németkér
    Eladó családi ház

    Németkér

    149.9 M Ft
    2 szoba
    540 m²
    Győrság
    Eladó családi ház

    Győrság

    79.9 M Ft
    4 szoba
    92 m²
    Mikepércs
    Eladó családi ház

    Mikepércs

    56 M Ft
    3 + 1 szoba
    87 m²
    Sásd
    Eladó családi ház

    Sásd

    35.9 M Ft
    4 + 1 szoba
    71 m²
    Kánya
    Eladó családi ház

    Kánya

    5.5 M Ft
    3 szoba
    70 m²
    Vid
    Eladó családi ház

    Vid

    29.99 M Ft
    4 szoba
    100 m²
    Ásványráró
    Eladó családi ház

    Ásványráró

    42.5 M Ft
    703 m²
    69 m²