Astora Márvány8

Kiadó téglalakás, albérlet
Budapest, VI. kerület, Külső Terézváros, Andrássy út, 4. emelet

1 116 500 Ft1117 E Ft / hó 10 338 Ft/m2
3 szoba
108 m²
4. emelet
építés éve:1910

Részletes adatok

Fűtés: Gázkazán
Emelet: 4. emelet
Közmű: Gáz, Villany, Csatorna
Energetikai besorolás: Nem adta meg a hirdető

Az OTP Bank lakáshitel ajánlataFizetett hirdetés

Hitelösszeg 10 millió Ft
Futamidő 20 év
Induló törlesztőrészlet 67 508 Ft
Törlesztőrészlet a 13. hónaptól 86 071 Ft
THM 8,6 %

A tájékoztatás nem teljes körű és nem minősül ajánlattételnek. Az OTP Évnyerő Lakáshitelei 1 éves türelmi idős kölcsönök, amellyel az első 12 hónapban alacsonyabb a havi törlesztőrészlet. A tőke törlesztését a 13. hónaptól kell megkezdeni.

    Részletes kalkuláció
    +36 70 454
    Dr. Salamon Noémi
    referens

    Érdekel az OTP Bank kedvezményes lakáshitel ajánlata? *

    * A kérdésre „Igen” válasz bejelölése esetén, az „Üzenet küldése” gombra kattintva kijelentem, hogy az OTP Bank Nyrt. Adatkezelési tájékoztatójának tartalmát megismertem és tudomásul vettem.

    Kiadó téglalakás, albérlet leírása

    Letisztult terek, finom részletek, és egy olyan otthon, ahol minden a nyugalomról és a minőségről szól. Üdv itthon!

    RÖVID ÖSSZEFOGLALÓ
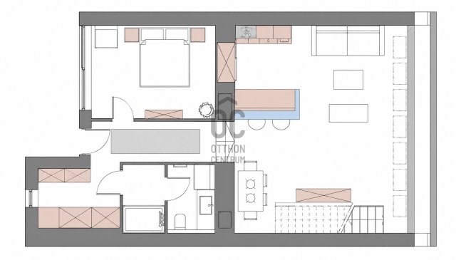
    4 emeletes, liftes társasház legfelső szintjén található, belső kétszintes, klimatizált, nettó 108 m²-es, nappali + 2 szobás azonnal birtokba vehető lakás kiadó. Teljes körűen bútorozott és gépesített, 2 fürdőszobával, két gardróbbal, és belső udvar felé néző erkéllyel. Közös költség: 33 000 Ft/hó.

    LOKÁCIÓ
    Az Andrássy úton élni nemcsak presztízst, hanem valódi, nemzetközi életminőséget is jelent. Ez a környék Budapest egyik legkeresettebb zónája a diplomaták és külföldi expatok körében, ahol minden a kényelmes, magas színvonalú mindennapokat szolgálja.

    A közvetlen környezetben:
    - nagykövetségek, nemzetközi irodák és képviseletek
    - prémium éttermek, speciality kávézók, fine dining helyek
    - designer üzletek és exkluzív szolgáltatások
    - kulturális intézmények: Operaház, színházak, galériák

    A Városliget néhány perc alatt elérhető, amely sportolási, kikapcsolódási és rekreációs lehetőségeket kínál – ideális egy aktív, városi életforma kiegészítésére.

    Közlekedés szempontjából is kiemelkedő:
    - M1-es metró (kisföldalatti) gyalogosan elérhető
    - gyors kapcsolat a belváros minden irányába
    - könnyű kijutás autóval a főbb városi tengelyekre

    Az elhelyezkedés egyszerre reprezentatív és praktikus: egy olyan városi közeg, ahol a napi élet gördülékeny, a környezet pedig kifinomult és inspiráló.

    LAKÁS
    Letisztult elegancia és tudatosan megkomponált kényelem határozza meg a lakás belső világát.
    Az alsó szinten egy nyitott, mégis jól tagolt élettér fogad, ahol a nappali, a konyha és az étkező természetes egységet alkot. Tetőtéri ablakokon keresztül áramlik be a fény, ami egész nap élővé teszi a teret – világos, levegős, mégis otthonos. Magas minőségű, beépített gépekkel felszerelt konyha került kialakításra, praktikus bárpult kapcsolattal. Egyszerre szolgálja a mindennapi kényelmet és a vendéglátást, így jól használható akár egy nyugodt vacsorához, akár kisebb társasági alkalmakhoz.
    Kiegyensúlyozott arányok jellemzik a nappalit, ahol a bútorozás visszafogottan elegáns. Világos felületek, meleg tónusú fa és finom textíliák adják meg azt a harmonikus atmoszférát, amely hosszabb távon is komfortos marad.

    Fent egyértelműen elkülönül a privát zóna: tágas hálószoba, beépített tárolók és gardrób biztosítják a rendezett, átlátható életteret. Az elrendezés csendes, jól szeparált, valódi visszavonulást kínál. Két fürdőszoba növeli a komfortot: egy kádas, márványhatású burkolatokkal kialakított tér a pihenéshez, valamint egy zuhanyzós, praktikus megoldás a mindennapokra.

    Teljes bútorozottság és gépesítettség teszi azonnal költözhetővé, különösebb ráfordítás nélkül. A klimatizálás biztosított, így a tetőtéri kialakítás ellenére is kellemes a hőérzet. Végül az erkély ad egy csendes, belső udvar felé nyíló kitekintést – egy nyugodt pontot a városi élet ritmusában.

    KINEK AJÁNLJUK
    Ideális választás azok számára, akik Budapesten nemcsak egy lakást, hanem egy jól működő, magas színvonalú életteret keresnek.

    Kifejezetten illeszkedik:
    - diplomaták és nagykövetségi munkatársak életformájához
    - felsővezetők igényeihez
    - multinacionális cégek vezetői, relocation keretében érkező bérlők számára
    - külföldi expatoknak, akik hosszabb távra terveznek és azonnal költözhető, berendezett otthont keresnek

    Az elrendezés és a méret ideális egyedülállóknak vagy pároknak, akik számára fontos a különválasztható privát és közösségi tér, valamint a reprezentatív környezet.

    Azoknak szól, akik értékelik:
    - a belvárosi, mégis élhető lokációt
    - a kulturális és gasztronómiai kínálat közelségét
    - a letisztult, elegáns enteriőrt
    és azt, ha egy lakás nem igényel további ráfordítást

    Amennyiben a fentiek alapján úgy érzi, ez a lakás akár az Ön otthona is lehetne az elkövetkezendő évre, keressen bizalommal!

    Hirdetés feltöltve: 2026. 04. 08.

    3 szobás téglalakások ára Budapesten

    Ebből az összehasonlításból megtudhatod, hogyan viszonyul a lakás ára a környékbeli téglalakások átlagos árához. Ez nem azt jelenti, hogy ennyivel olcsóbb vagy drágább, mint amennyit a lakás ér, hanem hogy ennyivel tér el a környékbeli átlagtól.

    Ennek a m² ára
    Külső Terézváros m² ár
    VI. kerület m² ár
    Budapest m² ár
    10 e Ft
    6 e Ft -72%
    7 e Ft -47%
    7 e Ft -58%
    Ennek az ára
    Külső Terézváros átlagár
    VI. kerület átlagár
    Budapest átlagár
    1117 E Ft / hó m Ft
    0.5 m Ft -129%
    0.6 m Ft -78%
    0.5 m Ft -104%

    Az ingatlan elhelyezkedése

    Cím: Budapest, VI. kerület, Külső Terézváros, Andrássy út, 4. emelet

    Kiadó ingatlanok, albérletek a környékről

    III. kerület, Óbuda, Selmeci utca
    Kiadó téglalakás, albérlet

    Budapest, III. kerület

    240 E Ft / hó
    2 szoba
    39 m²
    IX. kerület, Ferencváros, Bokréta utca
    Kiadó téglalakás, albérlet

    Budapest, IX. kerület

    200 E Ft / hó
    1 szoba
    32 m²
    XIII. kerület, Újlipótváros, Röppentyű utca
    Kiadó téglalakás, albérlet

    Budapest, XIII. kerület

    471 E Ft / hó
    3 szoba
    80 m²
    VI. kerület
    Kiadó téglalakás, albérlet

    Budapest, VI. kerület

    767 E Ft / hó
    3 szoba
    67 m²
    VI. kerület, Belső Terézváros, Andrássy út
    Kiadó téglalakás, albérlet

    Budapest, VI. kerület

    4620 E Ft / hó
    3 szoba
    318 m²
    VI. kerület
    Kiadó téglalakás, albérlet

    Budapest, VI. kerület

    751 E Ft / hó
    4 szoba
    129 m²
    VI. kerület
    Kiadó téglalakás, albérlet

    Budapest, VI. kerület

    1348 E Ft / hó
    7 szoba
    160 m²
    VI. kerület
    Kiadó téglalakás, albérlet

    Budapest, VI. kerület

    1348 E Ft / hó
    4 szoba
    130 m²
    VI. kerület, Belső Terézváros, Andrássy út
    Kiadó téglalakás, albérlet

    Budapest, VI. kerület

    886 E Ft / hó
    3 szoba
    101 m²
    VI. kerület
    Kiadó téglalakás, albérlet

    Budapest, VI. kerület

    750 E Ft / hó
    3 szoba
    150 m²
    VI. kerület, Külső Terézváros, Bajcsy-Zsilinszky út
    Kiadó téglalakás, albérlet

    Budapest, VI. kerület

    693 E Ft / hó
    4 + 1 szoba
    115 m²
    VI. kerület
    Kiadó téglalakás, albérlet

    Budapest, VI. kerület

    1907 E Ft / hó
    3 szoba
    141 m²
    XII. kerület
    Kiadó ikerház, albérlet

    Budapest, XII. kerület

    1000 E Ft / hó
    5 szoba
    233 m²
    VI. kerület, Külső Terézváros, Vasvári Pál utca
    Kiadó téglalakás, albérlet

    Budapest, VI. kerület

    770 E Ft / hó
    4 szoba
    100 m²
    VI. kerület
    Kiadó téglalakás, albérlet

    Budapest, VI. kerület

    1425 E Ft / hó
    5 szoba
    206 m²
    V. kerület, Belváros, Régi posta utca
    Kiadó téglalakás, albérlet

    Budapest, V. kerület

    963 E Ft / hó
    3 + 1 szoba
    170 m²
    VI. kerület
    Kiadó téglalakás, albérlet

    Budapest, VI. kerület

    844 E Ft / hó
    5 szoba
    150 m²
    VI. kerület
    Kiadó téglalakás, albérlet

    Budapest, VI. kerület

    480 E Ft / hó
    2 szoba
    56 m²
    V. kerület, Lipótváros, Honvéd utca
    Kiadó téglalakás, albérlet

    Budapest, V. kerület

    599 E Ft / hó
    3 + 1 szoba
    72 m²
    VI. kerület, Belső Terézváros, Bajcsy-Zsilinszky út
    Kiadó téglalakás, albérlet

    Budapest, VI. kerület

    649 E Ft / hó
    4 szoba
    114 m²
    VI. kerület
    Kiadó téglalakás, albérlet

    Budapest, VI. kerület

    950 E Ft / hó
    2 szoba
    80 m²
    VII. kerület, Külső Erzsébetváros, István utca
    Kiadó téglalakás, albérlet

    Budapest, VII. kerület

    280 E Ft / hó
    3 szoba
    60 m²
    VII. kerület, Külső Erzsébetváros, Holló utca
    Kiadó téglalakás, albérlet

    Budapest, VII. kerület

    315 E Ft / hó
    2 szoba
    56 m²
    VI. kerület, Külső Terézváros, Aradi utca
    Kiadó téglalakás, albérlet

    Budapest, VI. kerület

    1425 E Ft / hó
    5 szoba
    206 m²

    Falusi CSOK ingatlanok

    Kocsér
    Eladó családi ház

    Kocsér

    27.9 M Ft
    4 szoba
    108 m²
    Kenyeri
    Eladó családi ház

    Kenyeri

    21.8 M Ft
    2 szoba
    75 m²
    Markotabödöge
    Eladó családi ház

    Markotabödöge

    49.8 M Ft
    4 szoba
    95 m²
    Vasvár
    Eladó téglalakás

    Vasvár

    40.4 M Ft
    2 szoba
    0 m²
    Ceglédbercel
    Eladó családi ház

    Ceglédbercel

    65.9 M Ft
    3 szoba
    97 m²
    Seregélyes
    Eladó családi ház

    Seregélyes

    75 M Ft
    6 szoba
    160 m²
    Balatonszemes
    Eladó téglalakás

    Balatonszemes

    119.9 M Ft
    2 szoba
    81 m²
    Nagyréde
    Eladó családi ház

    Nagyréde

    69.5 M Ft
    4 szoba
    110 m²