NapForrás 20 - Buda

Kiadó ipari ingatlan
Tata, földszint

1/1
550 000 Ft550 E Ft / hó 1 407 Ft/m2
391 m²
földszint
építés éve:1970

Részletes adatok

Telekméret: 600 m2
Fűtés: Házközponti
Emelet: földszint
Energetikai besorolás: Nem adta meg a hirdető

Az OTP Bank lakáshitel ajánlataFizetett hirdetés

Hitelösszeg 10 millió Ft
Futamidő 20 év
Induló törlesztőrészlet 67 508 Ft
Törlesztőrészlet a 13. hónaptól 86 071 Ft
THM 8,6 %

A tájékoztatás nem teljes körű és nem minősül ajánlattételnek. Az OTP Évnyerő Lakáshitelei 1 éves türelmi idős kölcsönök, amellyel az első 12 hónapban alacsonyabb a havi törlesztőrészlet. A tőke törlesztését a 13. hónaptól kell megkezdeni.

    Részletes kalkuláció
    +36 70 947
    Szabó Gábor
    Dot-Ing 2001 Ingatlanirodák Kft.

    Érdekel az OTP Bank kedvezményes lakáshitel ajánlata? *

    * A kérdésre „Igen” válasz bejelölése esetén, az „Üzenet küldése” gombra kattintva kijelentem, hogy az OTP Bank Nyrt. Adatkezelési tájékoztatójának tartalmát megismertem és tudomásul vettem.

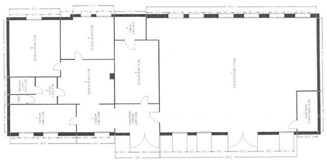
    Kiadó ipari ingatlan leírása

    Tatán Ipari Övezetben Csarnok Kiadó

    Az épület teljes területe 391 nm, melyből 180 négyzetméter a munkaterület, a többi részen irodák, öltözők, vizesblokkok találhatók:
    Öltöző: 18,76 nm
    Irodák (3db): 29,6 nm, 28,5 nm, 10,1 nm
    Vizes blokk: 10 nm

    Műszaki jellemzők:
    Tégla épület, Nagy kapukkal
    Nenon világítás
    Villany: 3 X 240A
    Tűzivíz van
    Levegős rendszer kiépítve
    Targoncázható: Belmagasság 3,65 m
    Teherautóval megközelíthető
    Fűtés: 2 db Klíma, Elektromos fűtés, Gáz fűtés
    Belső zárt udvar, elktromos kapuval

    Bérleti díj: 550.000,- Ft + ÁFA

    Hirdetés feltöltve: 2026. 04. 01. Utoljára módosítva: 2026. 04. 01.

    Ipari ingatlanok ára Tatán

    Ebből az összehasonlításból megtudhatod, hogyan viszonyul a lakás ára a környékbeli ipari ingatlanok átlagos árához. Ez nem azt jelenti, hogy ennyivel olcsóbb vagy drágább, mint amennyit a lakás ér, hanem hogy ennyivel tér el a környékbeli átlagtól.

    Ennek a m² ára
    Tata m² ár
    1 e Ft
    1 e Ft 5%
    Ennek az ára
    Tata átlagár
    550 E Ft / hó m Ft
    2.2 m Ft 75%

    Az ingatlan elhelyezkedése

    Cím: Tata, földszint

    Kiadó ingatlanok a környékről

    Tatabánya
    Kiadó téglalakás, albérlet

    Tatabánya

    200 E Ft / hó
    2 szoba
    44 m²
    Komárom
    Kiadó családi ház, albérlet

    Komárom

    450 E Ft / hó
    4 szoba
    106 m²
    Tatabánya
    Kiadó ipari ingatlan

    Tatabánya

    800 E Ft / hó
    1 szoba
    800 m²
    Tata
    Kiadó ipari ingatlan

    Tata

    280 E Ft / hó
    3 szoba
    110 m²
    Naszály
    Kiadó családi ház, albérlet

    Naszály

    700 E Ft / hó
    5 szoba
    148 m²
    Tatabánya
    Kiadó panellakás, albérlet

    Tatabánya

    150 E Ft / hó
    2 szoba
    36 m²
    Tarján
    Kiadó ipari ingatlan

    Tarján

    446 E Ft / hó
    280 m²
    Tatabánya
    Kiadó téglalakás, albérlet

    Tatabánya

    140 E Ft / hó
    1 szoba
    35 m²
    Esztergom
    Kiadó téglalakás, albérlet

    Esztergom

    160 E Ft / hó
    2 szoba
    43 m²
    Tatabánya, Kertváros, Építők útja
    Kiadó ipari ingatlan

    Tatabánya

    390 E Ft / hó
    240 m²
    Tatabánya
    Kiadó panellakás, albérlet

    Tatabánya

    165 E Ft / hó
    2 szoba
    49 m²
    Tata, Agostyáni út
    Kiadó ipari ingatlan

    Tata

    4736 E Ft / hó
    3000 m²
    Oroszlány
    Kiadó ipari ingatlan

    Oroszlány

    495 E Ft / hó
    4 szoba
    350 m²
    Tatabánya, Sárberek, Szepesi Gusztáv utca
    Kiadó téglalakás, albérlet

    Tatabánya

    250 E Ft / hó
    49 m²
    Tatabánya
    Kiadó ipari ingatlan

    Tatabánya

    663 E Ft / hó
    1 szoba
    780 m²
    Esztergom, Dobogókői út
    Kiadó ipari ingatlan

    Esztergom

    1768 E Ft / hó
    560 m²
    Tata
    Kiadó ipari ingatlan

    Tata

    4500 E Ft / hó
    2000 m²
    3000 m²
    Tatabánya
    Kiadó ipari ingatlan

    Tatabánya

    500 E Ft / hó
    880 m²
    Tata
    Kiadó ipari ingatlan

    Tata

    550 E Ft / hó
    360 m²
    Tatabánya, Bánhida, Búzavirág út
    Kiadó ipari ingatlan

    Tatabánya

    2605 E Ft / hó
    2000 m²
    Tatabánya
    Kiadó téglalakás, albérlet

    Tatabánya

    200 E Ft / hó
    2 szoba
    60 m²
    Tatabánya
    Kiadó ipari ingatlan

    Tatabánya

    600 E Ft / hó
    263 m²
    Sárisáp
    Kiadó ipari ingatlan

    Sárisáp

    340 E Ft / hó
    230 m²
    Tatabánya
    Kiadó üzlethelyiség

    Tatabánya

    95 E Ft / hó
    1 + 1 szoba
    12 m²

    Falusi CSOK ingatlanok

    Fonyód, Virág utca
    Eladó ikerház

    Fonyód

    58.9 M Ft
    2 szoba
    36 m²
    Újlengyel
    Eladó ikerház

    Újlengyel

    78 M Ft
    4 szoba
    88 m²
    Bag
    Eladó családi ház

    Bag

    110 M Ft
    5 szoba
    320 m²
    Osztopán
    Eladó családi ház

    Osztopán

    26.6 M Ft
    2 szoba
    73 m²
    Balatonszemes
    Eladó téglalakás

    Balatonszemes

    125.2 M Ft
    2 szoba
    50 m²
    Pécsvárad, Kossuth Lajos utca
    Eladó téglalakás

    Pécsvárad

    64.99 M Ft
    3 szoba
    89 m²
    Balatonberény
    Eladó családi ház

    Balatonberény

    290 M Ft
    12 szoba
    214 m²
    Balatonszemes
    Eladó téglalakás

    Balatonszemes

    125.2 M Ft
    2 szoba
    50 m²