Aerogate Homes

Kiadó ipari ingatlan
Göd

+ 5 kép 1/8
726 040 Ft726 E Ft / hó 1 415 Ft/m2
513 m²
építés éve:1963

Részletes adatok

Állapot: Átlagos
Fűtés: Egyéb
Közmű: Víz, Gáz, Villany, Csatorna
Energetikai besorolás: Nem adta meg a hirdető

Az OTP Bank lakáshitel ajánlataFizetett hirdetés

Hitelösszeg 10 millió Ft
Futamidő 20 év
Induló törlesztőrészlet 67 508 Ft
Törlesztőrészlet a 13. hónaptól 86 071 Ft
THM 8,6 %

A tájékoztatás nem teljes körű és nem minősül ajánlattételnek. Az OTP Évnyerő Lakáshitelei 1 éves türelmi idős kölcsönök, amellyel az első 12 hónapban alacsonyabb a havi törlesztőrészlet. A tőke törlesztését a 13. hónaptól kell megkezdeni.

    Részletes kalkuláció
    +36 30 495
    Takács Zsuzsanna
    referens

    Érdekel az OTP Bank kedvezményes lakáshitel ajánlata? *

    * A kérdésre „Igen” válasz bejelölése esetén, az „Üzenet küldése” gombra kattintva kijelentem, hogy az OTP Bank Nyrt. Adatkezelési tájékoztatójának tartalmát megismertem és tudomásul vettem.

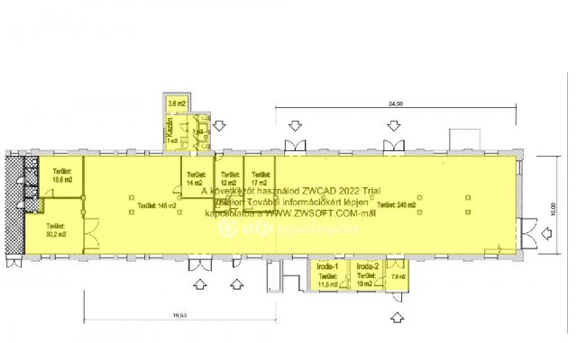
    Kiadó ipari ingatlan leírása

    Göd ipari részén hatalmas telephelyen bérbeadásra kínálunk különböző méretű és állapotú gyártócsarnokokat, raktárakat, irodákat.
    Ez a csarnok átlagos állapotú, 320 cm magas, 3 db 320x270 ipari kapuval rendelkezik, gáz fűtés nem megoldott, külön öltözők, irodák,rendelkezésre állnak, teherforgalommal korlátozottan megközelíthető.
    Lehetőség van akár autószerelő műhely kialakítására, tárolásra, gyártásra. Az ingatlanok egy része targoncázható, teherautóval megközelíthető, fűthető, ipari kapuval ellátott, több bejárattal rendelkezik.
    Kialakítástól és elhelyezkedéstől függően az itt megadott árak, alaprajzok esetlegesen változhatnak, eltérhetnek az itt megadottól (a konkrét igények alapján tud a tulajdonos megadni végleges árat és tudja kialakítani az elrendezést.)
    Egyes esetekben közös területi szorzó is felszámolásra kerülhet.
    A feltüntetett bérleti díjak nettók, NEM tartalmazzák az ÁFÁ-t, + 27 % ÁFA fizetendő!
    Bérléshez szükséges 2 illetve kaució + 1 havi bérleti díj.
    A tulajdonos a bérlő választás jogát fenntartja és a bérleti szerződést közjegyzői okiratba foglaltatja.

    Hirdetés feltöltve: 2026. 03. 07. Utoljára módosítva: 2026. 05. 06.

    Ipari ingatlanok ára Gödön

    Ebből az összehasonlításból megtudhatod, hogyan viszonyul a lakás ára a környékbeli ipari ingatlanok átlagos árához. Ez nem azt jelenti, hogy ennyivel olcsóbb vagy drágább, mint amennyit a lakás ér, hanem hogy ennyivel tér el a környékbeli átlagtól.

    Ennek a m² ára
    Göd m² ár
    1 e Ft
    2 e Ft 23%
    Ennek az ára
    Göd átlagár
    726 E Ft / hó m Ft
    1.8 m Ft 59%

    Az ingatlan elhelyezkedése

    Cím: Göd

    Kiadó ingatlanok a környékről

    Felsőpakony
    Kiadó ipari ingatlan

    Felsőpakony

    1870 E Ft / hó
    5090 m²
    2700 m²
    Solymár
    Kiadó ipari ingatlan

    Solymár

    300 E Ft / hó
    125 m²
    Felsőpakony, Nincs utca
    Kiadó ipari ingatlan

    Felsőpakony

    799 E Ft / hó
    540 m²
    Solymár
    Kiadó ipari ingatlan

    Solymár

    500 E Ft / hó
    161 m²
    161 m²
    Göd
    Kiadó ipari ingatlan

    Göd

    1831 E Ft / hó
    1293 m²
    Vác
    Kiadó ipari ingatlan

    Vác

    3996 E Ft / hó
    1300 m²
    Göd
    Kiadó ipari ingatlan

    Göd

    2190 E Ft / hó
    1020 m²
    Göd
    Kiadó ipari ingatlan

    Göd

    2307 E Ft / hó
    1632 m²
    Solymár
    Kiadó ipari ingatlan

    Solymár

    400 E Ft / hó
    0 m²
    Göd
    Kiadó ipari ingatlan

    Göd

    2320 E Ft / hó
    1632 m²
    Szigetszentmiklós
    Kiadó ipari ingatlan

    Szigetszentmiklós

    5312 E Ft / hó
    1.74 ha
    Göd
    Kiadó ipari ingatlan

    Göd

    1834 E Ft / hó
    1293 m²
    Tököl
    Kiadó ipari ingatlan

    Tököl

    121 E Ft / hó
    115 m²
    Sülysáp
    Kiadó ipari ingatlan

    Sülysáp

    570 E Ft / hó
    285 m²
    Törökbálint, LogStar Park -logisztikai központ, gyárcsarnok-cégközpont
    Kiadó ipari ingatlan

    Törökbálint

    2105 E Ft / hó
    9.4 ha
    1000 m²
    Gyál, M5 Logisztikai Bázis
    Kiadó ipari ingatlan

    Gyál

    180 E Ft / hó
    200 m²
    Göd
    Kiadó ipari ingatlan

    Göd

    1610 E Ft / hó
    750 m²
    Tököl
    Kiadó ipari ingatlan

    Tököl

    1081 E Ft / hó
    1400 m²
    676 m²
    Göd
    Kiadó ipari ingatlan

    Göd

    1002 E Ft / hó
    563 m²
    Göd
    Kiadó ipari ingatlan

    Göd

    692 E Ft / hó
    560 m²
    Dunakeszi
    Kiadó téglalakás, albérlet

    Dunakeszi

    200 E Ft / hó
    1 szoba
    41 m²
    Göd
    Kiadó ipari ingatlan

    Göd

    683 E Ft / hó
    553 m²
    Göd
    Kiadó ipari ingatlan

    Göd

    1345 E Ft / hó
    750 m²
    Gomba
    Kiadó ipari ingatlan

    Gomba

    290 E Ft / hó
    324 m²

    Falusi CSOK ingatlanok

    Újszilvás
    Eladó családi ház

    Újszilvás

    18 M Ft
    3 szoba
    55 m²
    Nagyhegyes
    Eladó családi ház

    Nagyhegyes

    92900 M Ft
    3 + 1 szoba
    120 m²
    Újudvar
    Eladó családi ház

    Újudvar

    29.9 M Ft
    4 szoba
    83 m²
    Csány, Központi elhelyezkedés
    Eladó családi ház

    Csány

    48.5 M Ft
    3 szoba
    97 m²
    Kaposgyarmat
    Eladó családi ház

    Kaposgyarmat

    695 M Ft
    6 szoba
    610 m²
    Bácsbokod
    Eladó családi ház

    Bácsbokod

    55 M Ft
    6 szoba
    250 m²
    Elek
    Eladó családi ház

    Elek

    18 M Ft
    4 szoba
    180 m²
    Ádánd
    Eladó családi ház

    Ádánd

    67 M Ft
    6 szoba
    251 m²