Astora Art House

Eladó üzlethelyiség
Tótkomlós

+ 14 kép 1/17
34 900 000 Ft34.9 M Ft 170 244 Ft/m2
5 szoba
205 m²
építés éve:1988

Részletes adatok

Állapot: Felújítandó
Fűtés: Gázkonvektor
Energetikai besorolás: Nem adta meg a hirdető

Az OTP Bank lakáshitel ajánlataFizetett hirdetés

+36 70 402
Vas Edit
referens

Érdekel az OTP Bank kedvezményes lakáshitel ajánlata? *

* A kérdésre „Igen” válasz bejelölése esetén, az „Üzenet küldése” gombra kattintva kijelentem, hogy az OTP Bank Nyrt. Adatkezelési tájékoztatójának tartalmát megismertem és tudomásul vettem.

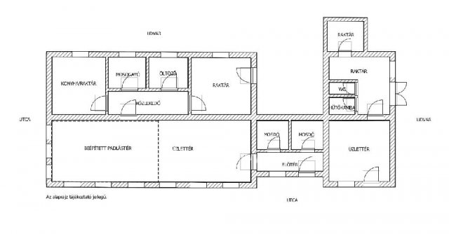
Eladó üzlethelyiség leírása

Többféle hasznosítási lehetőséget kínáló üzlethelyiség eladó Tótkomlós belvárosában, frekventált helyen.
Az 1988-ban épült kifogástalan szerkezeti állapotú tégla főépület egy sarok telken áll, forgalmas főút mellett. Ennek köszönhetően kiválóan megközelíthető és könnyű parkolási és rakodási lehetőséget kínál. A főépület mögött egy kisebb vályog építésű épület is található, amely felújítandó, de jelenlegi állapotában akár raktárként hasznosítható. A telek területe 552m2, autó beállási lehetőség adott. Található még rajta egy közel 50m2-es fedett beálló, ami akár parkolásra, akár raktározásra alkalmas.
A főépület 2 üzlethelyiségből áll, amely egybe is nyitható. A legutóbbi hasznosítás szerint 2 utcai bejáratú üzlethelyiség van kialakítva külön vizes helyiségekkel, raktárakkal, kiszolgáló helyiségekkel. A nagyobb üzlet tetőterének egy része be van építve, amely tovább növelheti a vendégteret, de iroda, tárgyaló kialakítására is alkalmas.
Fűtése gázkonvektorokkal megoldott, a melegvíz ellátást villanybojlerek biztosítják. A telken minden közmű megtalálható, 2 gázóra és 3 villanyóra (ipari áram), víz, csatorna rendelkezésre áll.
Az ingatlan alkalmas üzletnek, vendéglátó egységnek, közösségi háznak, irodának, vagy akár nagyobb rendezvények lebonyolítására is, de kisebb átalakítással különböző helyi koncertek, közérdekű városi rendezvények, vagy kulturális (irodalmi estek, vagy más jellegű) összejövetelek alkalmából is bérbe adható. Lakóingatlanná is átalakítható.
A tulajdoni lapon Kivett lakóház, udvar, kereskedelmi egység.
Tótkomlós Békés megyében található, Szegedtől 62km, Hódmezővásárhelytől 33km, Orosházától 20km, Aradtól 57km távolságra. A Békés megyei kisváros élhető lakókörnyezetet biztosít, óvoda, iskola, üzletek, egészségügyi ellátás, gyógyfürdő helyben megtalálhatók.
További információért hívjon bizalommal!
Az OTP Ingatlanpont teljes körű ügyintézéssel áll az eladók és vevők rendelkezésére. A kínálatunkból választott ingatlan finanszírozásához kedvezményes hitelkonstrukciót biztosítunk. Az OTP Banknál elérhető Otthon Start Program, Babaváró, falusi CSOK, CSOK Plusz hitel és egyéb kölcsönök intézését díjmentesen vállaljuk. Az adásvételi szerződés megkötéséhez igény szerint ügyvédet biztosítunk. Irodáink Szentes, Petőfi utca 12. a buszmegálló felől, és Csongrád, Fő utca 54. szám alatt várjuk a személyes érdeklődőket. Válasszuk ki együtt az Önnek legmegfelelőbb ajánlatot banki sorban állás nélkül! Legyen Ön is megbízónk, és adja el rajtunk keresztül ingatlanát!

Hirdetés feltöltve: 2026. 04. 18. Utoljára módosítva: 2026. 04. 29.

Az ingatlan elhelyezkedése

Cím: Tótkomlós

Eladó családi házak a környékről

Tótkomlós
Eladó családi ház

Tótkomlós

39.9 M Ft
4 + 1 szoba
169 m²
Tótkomlós
Eladó családi ház

Tótkomlós

9.5 M Ft
3 szoba
120 m²
Orosháza
Eladó családi ház

Orosháza

79.9 M Ft
3 szoba
115 m²
Tótkomlós
Eladó családi ház

Tótkomlós

15 M Ft
3 szoba
100 m²
Elek
Eladó családi ház

Elek

28.7 M Ft
12 + 6 szoba
390 m²
Doboz
Eladó családi ház

Doboz

10 M Ft
4 szoba
100 m²
Tótkomlós
Eladó családi ház

Tótkomlós

13.9 M Ft
4 szoba
211 m²
Tótkomlós
Eladó családi ház

Tótkomlós

42.75 M Ft
1 szoba
155 m²
Tótkomlós
Eladó családi ház

Tótkomlós

4.9 M Ft
3 szoba
100 m²
Tótkomlós
Eladó családi ház

Tótkomlós

5.5 M Ft
3 szoba
90 m²
Tótkomlós
Eladó családi ház

Tótkomlós

19 M Ft
4 szoba
123 m²
Tótkomlós
Eladó családi ház

Tótkomlós

19 M Ft
4 szoba
123 m²
Békéscsaba
Eladó családi ház

Békéscsaba

88.51 M Ft
4 szoba
106 m²
Tótkomlós
Eladó családi ház

Tótkomlós

39.9 M Ft
4 + 1 szoba
169 m²
Tótkomlós, Ótemető sor
Eladó családi ház

Tótkomlós

17.5 M Ft
2 szoba
82 m²
Tótkomlós
Eladó családi ház

Tótkomlós

5.5 M Ft
3 szoba
80 m²
Tótkomlós
Eladó családi ház

Tótkomlós

23 M Ft
4 szoba
134 m²
Szarvas
Eladó családi ház

Szarvas

4.9 M Ft
1 + 1 szoba
40 m²
Békéscsaba
Eladó családi ház

Békéscsaba

35.9 M Ft
3 szoba
130 m²
Tótkomlós
Eladó családi ház

Tótkomlós

18 M Ft
4 szoba
150 m²
Tótkomlós
Eladó családi ház

Tótkomlós

13 M Ft
3 szoba
100 m²
Tótkomlós
Eladó családi ház

Tótkomlós

17.5 M Ft
3 szoba
90 m²
Tótkomlós
Eladó családi ház

Tótkomlós

39.9 M Ft
4 + 1 szoba
169 m²
Gyula, Vár utca
Eladó családi ház

Gyula

85.9 M Ft
4 szoba
180 m²

Falusi CSOK ingatlanok

Szigetújfalu
Eladó családi ház

Szigetújfalu

66 M Ft
3 szoba
118 m²
Nagyhegyes
Eladó családi ház

Nagyhegyes

92900 M Ft
3 + 1 szoba
120 m²
Törtel
Eladó családi ház

Törtel

20 M Ft
2 szoba
63 m²
Kánya
Eladó családi ház

Kánya

5.5 M Ft
3 szoba
70 m²
Somogygeszti
Eladó családi ház

Somogygeszti

38.6 M Ft
3 + 1 szoba
98 m²
Tóalmás
Eladó családi ház

Tóalmás

38.9 M Ft
3 szoba
62 m²
Csány, Központi elhelyezkedés
Eladó családi ház

Csány

48.5 M Ft
3 szoba
97 m²
Balatonakali
Eladó ikerház

Balatonakali

550 M Ft
4 szoba
94 m²