Eladó üzlethelyiség
Tápióság

Figyelem!

Ez az ingatlan a 2019.07.01-től induló falusi CSOK által támogatott településen található

+ 17 kép 1/20
29 900 000 Ft29.9 M Ft 190 446 Ft/m2
157 m2
építés éve:1980

Részletes adatok

Fűtés: Gázkazán
Energetikai besorolás: Nem adta meg a hirdető

Az OTP Bank lakáshitel ajánlataFizetett hirdetés

+36 70 374
Koltainé Szentpéteri Emőke
referens

Érdekel az OTP Bank kedvezményes lakáshitel ajánlata? *

* A kérdésre „Igen” válasz bejelölése esetén, az „Üzenet küldése” gombra kattintva kijelentem, hogy az OTP Bank Nyrt. Adatkezelési tájékoztatójának tartalmát megismertem és tudomásul vettem.

Eladó üzlethelyiség leírása

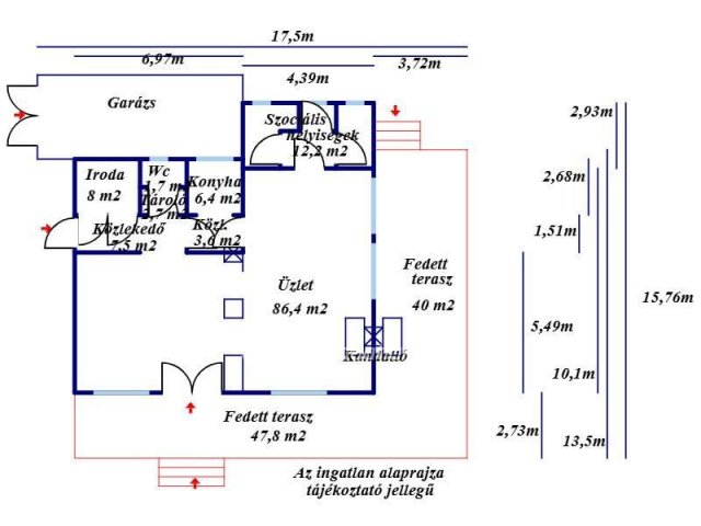
Pest vármegye, Tápióság központban 157 m2 hasznos alapterületű, családi házzá alakítható kereskedelmi egység 617 m2 telken eladó. Az 1980-ban épült összkomfortos, többfunkciós lehetőséget magában rejtő ingatlan, átalakítása után alkalmas lehet egy, illetve két külön bejáratú család lakhatására vagy egyéb célú hasznosításra, befektetésre egyaránt. A korábban vendéglátóipari egységként működő épület beton alapon tégla falazattal beton födémmel, vörös fenyő tetőszerkezettel, valamint pala héjazattal készült, körben csatornával ellátott. Családi házként, a válaszfalak megváltoztatásával igény szerint tágas amerikai konyhás nappali, több szoba és egyéb helyiség alakíható ki. A jelenlegi fedett terasz, a külső és belső kandallók, a meglévő közművek, a garázs, valamint az épület minősége és Kádár kocka jellege kiváló költséghatékony alapot jelenthetnek az átalakítás során. A helyiségek aljzatai jelenleg járólap borításúak. A homlokzat eredeti, jó minőségű kőporozott, a külső nyílászárók normál dupla, fa szerkezetűek, redőnnyel ellátottak, a belsők normál állapotú fa szerkezetűek. Az ingatlan összközműves: a háromfázisú villany (3x20 Amper), a gáz, a vezetékes víz és a csatorna rendelkezésre állnak. Az otthon melegét és a melegvíz ellátást Westen kombi gáz-cirko kazán biztosítja radiátoros hőleadással, alternatív fűtésként helyiségenként kiépített elektromos radiátoros rendszer, valamint vegyestüzelésű kandalló is rendelkezésre áll. Az ingatlan közepén egy falazott kémény is felépítésre került. A melegvíz alternatív ellátására Hajdú villanybojler került beépítésre. A házat három oldalról út határolja, melyből kettő aszfaltozott, az ingatlan körben bekerített. Az udvar parkosított, gondozott, két oldalról gépjárművek behajtására kapubejáró biztosított, a garázs közvetlen az aszfaltozott útról nyitható. Az ingatlan előtti közterületen 7 gépjármű nyílt parkolása biztosított. A családi ház elhelyezkedése kiváló, településközponti: pár méteren belül Polgármesteri Hivatal, élelmiszerbolt, vegyes kereskedés, posta, gyógyszertár, óvoda megtalálható, a tömegközlekedés megoldott.
A hirdetés tájékoztató jellegű, az ingatlanról pontos adatokat a megtekintést követően a tulajdonos által elmondottak alapján tudunk garantálni!
Az ingatlan jelenleg üres, birtokba adása a kifizetést követően azonnal lehetséges. A vásárlás finanszírozásában az OTP kedvezőbb kamatozású hitelkonstrukcióival tudunk segíteni. Az adásvételi szerződés lebonyolításához korrekt ügyvédi közreműködést tudunk ajánlani. Amennyiben felkeltettem érdeklődését, hívjon bizalommal! Eladó ingatlanokat keresünk meglévő és külföldi partnereink számára!

Hirdetés feltöltve: 2025. 06. 19. Utoljára módosítva: 2025. 10. 03.

Az ingatlan elhelyezkedése

Cím: Tápióság

Eladó ingatlanok a környékről

Eladó üzlethelyiség
Eladó üzlethelyiség

Tápióság

29.9 M Ft
170 m2
Eladó családi ház
Eladó családi ház

Budajenő

154.9 M Ft
6 szoba
220 m2
Eladó ikerház
Eladó ikerház

Tahitótfalu

84.9 M Ft
4 szoba
98 m2
Eladó üzlethelyiség
Eladó üzlethelyiség

Budaörs, Szabadság út

220 M Ft
Eladó családi ház
Eladó családi ház

Pécel

96 M Ft
6 szoba
211 m2
Eladó családi ház
Eladó családi ház

Halásztelek

135 M Ft
4 szoba
156 m2
Eladó üzlethelyiség
Eladó üzlethelyiség

Tápiószele

34.9 M Ft
3 szoba
77 m2
Eladó családi ház
Eladó családi ház

Budakalász

185 M Ft
5 szoba
198 m2
Eladó családi ház
Eladó családi ház

Kóka

34.9 M Ft
4 szoba
101 m2
Eladó családi ház
Eladó családi ház

Szentendre

149.9 M Ft
5 szoba
135 m2
Eladó ikerház
Eladó ikerház

Inárcs

85 M Ft
4 szoba
94 m2
Eladó családi ház
Eladó családi ház

Diósd

194.5 M Ft
8 szoba
260 m2
Eladó családi ház
Eladó családi ház

Vecsés, Városközpont közeli utca

73.5 M Ft
7 szoba
110 m2
Eladó családi ház
Eladó családi ház

Vecsés

146.5 M Ft
4 szoba
238 m2
Eladó ipari ingatlan
Eladó ipari ingatlan

Alsónémedi

335.646 M Ft
548 m²
967 m2
Eladó családi ház
Eladó családi ház

Göd

280 M Ft
5 szoba
304 m2
Eladó családi ház
Eladó családi ház

Halásztelek

62 M Ft
4 + 2 szoba
135 m2
Eladó üzlethelyiség
Eladó üzlethelyiség

Tápiószele

34.9 M Ft
3 szoba
77 m2
Eladó üzlethelyiség
Eladó üzlethelyiség

Budaörs, Szabadság út

135 M Ft
139 m2
Eladó üzlethelyiség
Eladó üzlethelyiség

Törökbálint, Törökbálint

3910 M Ft
120000 m²
800 m2
Eladó üzlethelyiség
Eladó üzlethelyiség

Nagykáta

45 M Ft
2 szoba
73 m2
Eladó családi ház
Eladó családi ház

Szigetszentmiklós

149.99 M Ft
8 + 1 szoba
250 m2
Eladó üzlethelyiség
Eladó üzlethelyiség

Verőce, Csattogó völgy

199 M Ft
Eladó családi ház
Eladó családi ház

Ecser, Központ közeli utca

133 M Ft
5 szoba
130 m2

Falusi CSOK ingatlanok

Eladó családi ház
Eladó családi ház

Tiszaalpár

29 M Ft
4 szoba
132 m2
Eladó családi ház
Eladó családi ház

Bakháza

4.5 M Ft
1 szoba
50 m2
Eladó ikerház
Eladó ikerház

Győrság

54.95 M Ft
3 szoba
72 m2
Eladó családi ház
Eladó családi ház

Balatonőszöd

55 M Ft
5 szoba
148 m2
Eladó családi ház
Eladó családi ház

Homokbödöge

49.9 M Ft
4 + 1 szoba
167 m2
Eladó családi ház
Eladó családi ház

Törtel

39 M Ft
1 + 1 szoba
118 m2
Eladó családi ház
Eladó családi ház

Jászkarajenő

11 M Ft
2 szoba
52 m2
Eladó családi ház
Eladó családi ház

Nagybajom

22.9 M Ft
2 + 1 szoba
93 m2

Falusi CSOK ingatlanok

Eladó ikerház
Eladó ikerház

Adony

35 M Ft
3 szoba
102 m2
Eladó családi ház
Eladó családi ház

Fonyód

79.9 M Ft
7 szoba
149 m2
Eladó családi ház
Eladó családi ház

Enese

72.025 M Ft
4 szoba
75 m2
Eladó családi ház
Eladó családi ház

Ceglédbercel

63 M Ft
3 szoba
70 m2
Eladó családi ház
Eladó családi ház

Drágszél, Petőfi utca 12

5.58 M Ft
1 + 1 szoba
106 m2
Eladó családi ház
Eladó családi ház

Mezőgyán, Árpád utca 48.

2.55 M Ft
1 + 1 szoba
107 m2
Eladó téglalakás
Eladó téglalakás

Besnyő

42.9 M Ft
2 szoba
40 m2
Eladó családi ház
Eladó családi ház

Ábrahámhegy

59.9 M Ft
0 + 5 szoba
68 m2